Bildegalleri

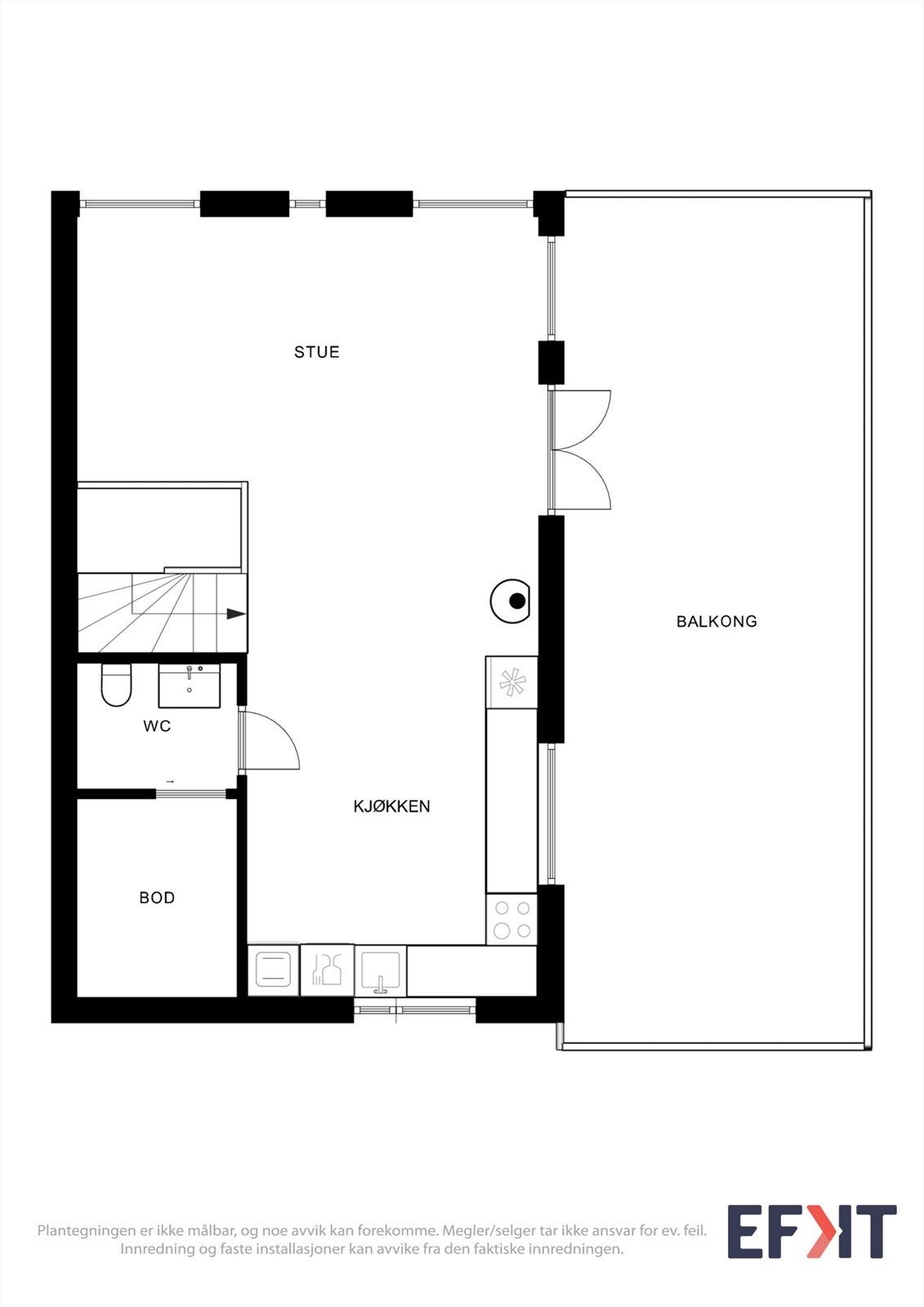
Fra stuen er det direkte utgang til takterrassen via en 2-fløyet terrassedør.
Storhamar
Tiltalende enebolig fra 2022 | Stor takterrasse, åpen løsning og peisovn | Carport | 3 soverom
Prisantydning6 200 000 kr
Nøkkelinfo
- Boligtype
- Enebolig
- Eieform
- Selveier
- Soverom
- 3
- Internt bruksareal
- 96 m² (BRA-i)
- Bruksareal
- 104 m²
- Eksternt bruksareal
- 8 m² (BRA-e)
- Balkong/Terrasse
- 50 m² (TBA)
- Byggeår
- 2022
- Energimerking
- Tomteareal
- 1 242 m² (eiet)
Fasiliteter
Balkong/Terrasse
Barnevennlig
Garasje/P-plass
Hage
Kjæledyr tillatt
Offentlig vann/kloakk
Peis/Ildsted
Sentralt
Turterreng
Balansert ventilasjon
Visning
tirsdag, 07. april
18:30 – 19:00
Ønsker du å delta på visningen ber vi deg melde deg på slik at vi vet at du kommer. Da kan vi bistå alle best mulig og gi deg tiden du trenger på visningen. Dersom ingen er påmeldt innen kl. 12 på annonsert visningsdag, vil visningen bli avlyst. Ta gjerne kontakt med megler før visning hvis du har noen spørsmål eller ønsker å se på et annet tidspunkt. Velkommen!
VisningspåmeldingOm boligen
Velkommen til Nordvikvegen 34! En nyere, stilren enebolig fra 2022 med sentral og familievennlig beliggenhet på Storhamar.
Her bor du i et trygt og veletablert nabolag med gangavstand til alt du trenger i hverdagen, som skoler, barnehager og Maxi Storsenter. Boligen har en arealeffektiv planløsning over to plan. Andre etasje er det sosiale hjertet med åpen stue- og kjøkkenløsning, peisovn og utgang til en stor takterrasse. Første etasje er den private sonen med tre soverom og et moderne bad.
Høydepunkter:
- Stor takterrasse på 32 m²
- Stilrent kjøkken med integrerte hvitevarer
- Balansert ventilasjon og varmepumpe (2023)
- Varmekabler i entré, bad og toalettrom
- Carport ved inngangen og utvendig bod
- Tre soverom og separat WC
Her bor du i et trygt og veletablert nabolag med gangavstand til alt du trenger i hverdagen, som skoler, barnehager og Maxi Storsenter. Boligen har en arealeffektiv planløsning over to plan. Andre etasje er det sosiale hjertet med åpen stue- og kjøkkenløsning, peisovn og utgang til en stor takterrasse. Første etasje er den private sonen med tre soverom og et moderne bad.
Høydepunkter:
- Stor takterrasse på 32 m²
- Stilrent kjøkken med integrerte hvitevarer
- Balansert ventilasjon og varmepumpe (2023)
- Varmekabler i entré, bad og toalettrom
- Carport ved inngangen og utvendig bod
- Tre soverom og separat WC
NB: Knappen for å vise hele beskrivelsen har kun en visuell effekt.
NB: Knappen for å vise hele beskrivelsen har kun en visuell effekt.
Salgsoppgaven beskriver vesentlig og lovpålagt informasjon om eiendommen
Se komplett salgsoppgaveNyttige lenker
Nærområdet
EiendomsMegler 1 Hamar
Vi loser deg trygt gjennom hele boligsalget
Annonseinformasjon
| FINN-kode | 453584050 |
|---|---|
| Sist endret | 26. mars 2026 21:54 |
| Referanse | 6019260332 |
Annonsene kan være mangelfulle i forhold til lovpålagt opplysningsplikt. Før bindende avtale inngås oppfordres interessenter til å innhente komplett informasjon fra meglerforetaket, selger eller utleier.































