Bildegalleri

EiendomsMegler 1 ved Trude Gunnlaugsson har gleden av å presentere Solbakken 9. Foto: Mood foto.

Ytre Sandviken

Leilighet over to plan med biloppstillingsplass | 2 soverom | Sjarmerende nabolag med barnehage et steinkast unna

Prisantydning3 750 000 kr
Totalpris
3 941 950 kr
Omkostninger
2 100 kr
Fellesgjeld
189 850 kr
Felleskost/mnd.
6 201 kr
Fellesformue
14 566 kr
Formuesverdi
1 793 022 kr

Nøkkelinfo

Boligtype
Leilighet
Eieform
Aksje
Soverom
2
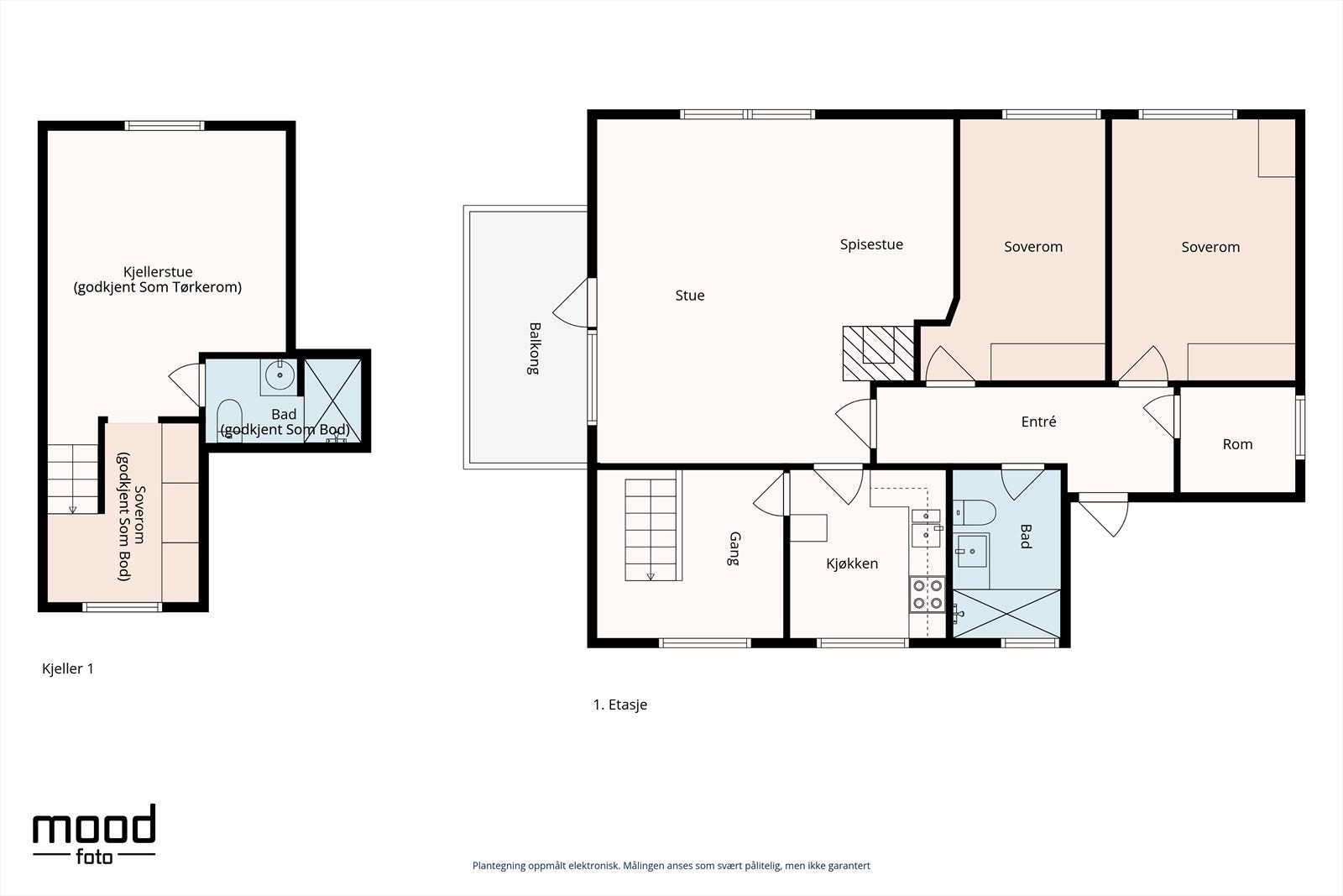
Internt bruksareal
117 m² (BRA-i)
Bruksareal
130 m²
Eksternt bruksareal
13 m² (BRA-e)
Balkong/Terrasse
8 m² (TBA)
Byggeår
1950
Energimerking
G - Rød
Rom
3
Tomteareal
24 390 m² (eiet)

Les mer om bruksareal her

Fasiliteter

Balkong/Terrasse
Barnevennlig
Garasje/P-plass
Offentlig vann/kloakk
Peis/Ildsted
Sentralt
Bademulighet
Turterreng

Visning

mandag, 02. mars
16:15 – 17:00
Visningspåmelding

Om boligen

Leiligheten ligger i et sjarmerende område av Ytre Sandviken med barnevennlig beliggenhet med barnehage regelrett et steinkast unna-rett over veien.
Av høydepunkter kan det her nevnes:
-Altandør fra 2021
-Vindu i stue og soverom er byttet
-Sørvendt altan på 7,6m² - denne må utbedres før bruk
-2 romslige soverom med arealer på 10,9m² og 13m²
-Egen biloppstillingsplass
-Kort vei til nærmeste dagligvarebutikk
-Kort vei til skole
-Solrik beliggenhet
-Flotte turmuligheter
Denne Leiligheten har eldre standard og vedlikehold/rehabilitering må påregnes. Det foreligger skaderapport på badet etter fuktskader denne kan besiktiges hos megler. Ny eier må selv bekoste renovering av både bad og altan, mens forsikringen vil dekke følgeskadene som fukt i vegger og etasjeskillere ifølge styre

Salgsoppgaven beskriver vesentlig og lovpålagt informasjon om eiendommen

Se komplett salgsoppgave

Nærområdet

Annonseinformasjon

FINN-kode452554533
Sist endret25. feb. 2026 15:55
Referanse2712260006

Rapporter annonse

Annonsene kan være mangelfulle i forhold til lovpålagt opplysningsplikt. Før bindende avtale inngås oppfordres interessenter til å innhente komplett informasjon fra meglerforetaket, selger eller utleier.