


Velkommen til Asbjørn Øverås veg 15 B, presentert av EiendomsMegler 1 ved Sigbjørn Shaswar-Vestå.
Velkommen til Asbjørn Øverås veg 15 B!
EiendomsMegler 1 ved Sigbjørn Shaswar-Vestå har gleden av å presentere en moderne og gjennomført andelsbolig over tre etasjer - helt klart for en ny eier som ønsker en innflytningsklar bolig med svært høy standard. Boligen er betydelig oppgradert mellom 2020 og 2025, med nytt elektrisk anlegg, moderne vannsystem, flotte bad, to terrasser, lys og luftig hovedetasje og en stor, innredet kjeller.
Boligen ligger i et rolig og barnevennlig område i Risvollan borettslag, med interne gangstier, flere lekeplasser og fotballbane i den grønne dalen rett bak boligen. Her bor du tilbaketrukket, men med kort vei til skole, barnehager, kollektivtransport, butikker og flotte turområder.
Kvaliteter:
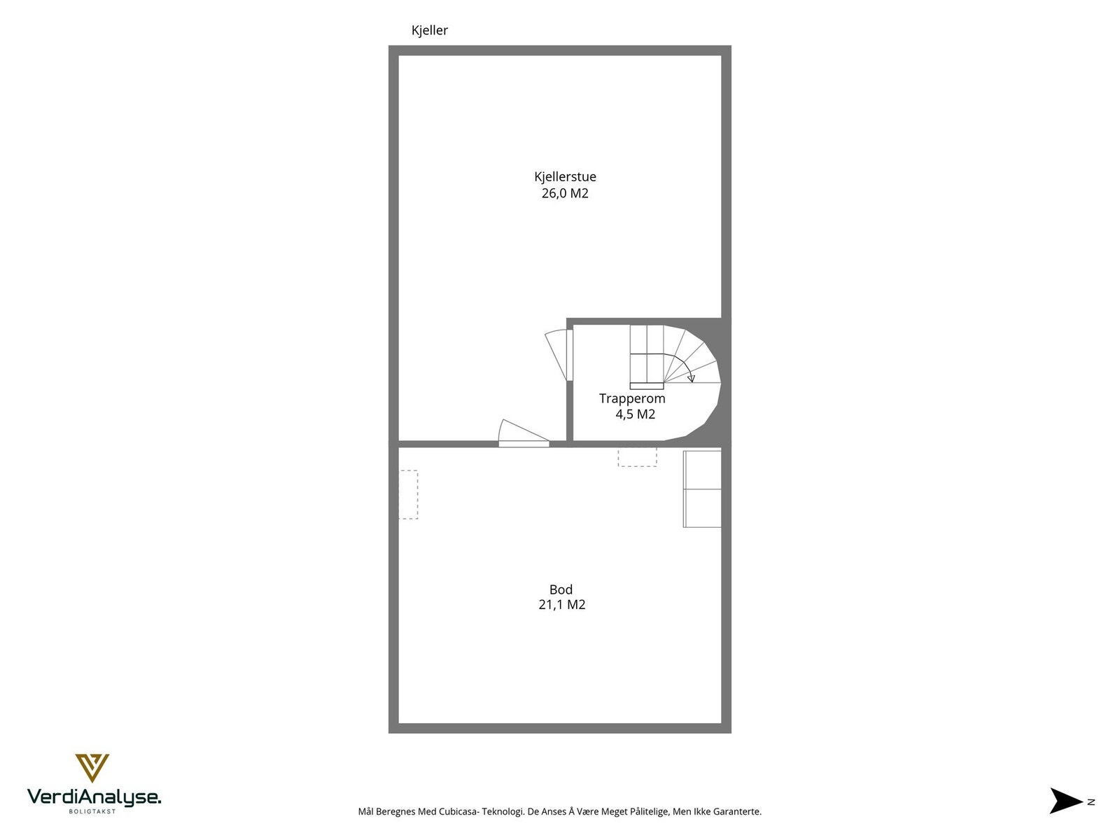
Kjeller
Internt bruksareal: Kjellerstue, trapperom og bod.
1. etasje
Internt bruksareal: Entré, vaskerom, kjøkken og stue.
Eksternt bruksareal: Sportsbod.
2. etasje
Internt bruksareal: Bad, 3 stk. soverom, gang og garderobe.
Standard kjeller (ca. 54 m2):
Kjellerstue (26,0 m²):
Laminat på gulv. Malte panelplater på vegger. Plater i himling med downlights belysning.
Innredning: Radiator.
Trapperom (4,5 m²):
Laminat på gulv. Malt panel og malte panelplater på vegger. Malt slett himlingsflate.
Innredning: Trapp.
Bod (21,1 m²):
Malt betonggulv. Malte betongvegger og malt panel på vegg. Malt slett himlingsflate.
Innredning: Rørskap. Diverse hyller og innredninger.
1. etasje (ca. 55 m2):
Entré (5,5 m²):
Laminat på gulv. Malte slette veggflater. Malt slett himlingsflate.
Innredning: Sikringsskap. Garderobeskap. Radiator.
Vaskerom (3,0 m²):
Flislagt gulvflate. Baderomsplater over sokkelflis på vegger. Malt slett himlingsflate med downlights belysning.
Vaskerommet har servantinnredning med plane fronter. Helstøpt servantskål med 1-greps blandebatteri samt speil med integrert belysning, høyskap og laminert benkeplate. Kran og avløp for vaskemaskin. Veggmontert toalett.
Mekanisk avtrekk.
Kjøkken (15,1 m²):
Laminat på gulv. Malte slette veggflater. Malt slett himlingsflate.
Kjøkkeninnredningen har plane fronter og laminerte benkeplater med nedfelt oppvaskkum og 1-greps blandebatteri.
Integrert platetopp, stekeovn, oppvaskmaskin og kjøle-/fryseskap.
Veggmontert kjøkkenventilator med kullfilter over stekesonen.
Stue (31,8 m²):
Laminat på gulv. Malte slette veggflater og malt panel på vegg. Malt slett himlingsflate.
Innredning: Radiator. Utgang til terrasse. Trapp.
2. etasje (ca. 55 m2):
Bad (5,3 m²):
Flislagt gulv over gulvvarme. Flislagte veggflater. Malt slett flate i himling med downlights belysning.
Badet har servantinnredning med plane fronter. Helstøpt servantplate med 1-greps blandebatteri samt speil med integrert belysning. Veggmontert toalett.
Dusjhjørne med 2 stk. dusjdører i glass samt veggmontert blandebatteri og dusjgarnityr.
Mekanisk avtrekk.
Soverom 1 (15,7 m²):
Laminat på gulv. Malte slette veggflater. Malt slett himlingsflate.
Innredning: Plassbygd sengegavl. Garderobeskap. Radiator.
Soverom 2 (11,5 m²):
Laminat på gulv. Malte slette veggflater. Malt slett himlingsflate.
Innredning: Garderobeskap. Radiator.
Soverom 3 (10,5 m²):
Laminat på gulv. Malte slette veggflater. Malt slett himlingsflate.
Innredning: Garderobeskap. Radiator.
Gang (6,8 m²):
Laminat på gulv. Malte slette veggflater og malt panel på vegg. Malt slett himlingsflate.
Innredning: Trapp.
Garderobe (2,8 m²):
Laminat på gulv. Malte slette veggflater. Malt slett himlingsflate.
Innredning: Garderobeskap.
Standard iht. takstmann.
Elektrisk og fjernvarme.
Det er ikke inngått avtale om Norgespris på strøm for boligen.
Informasjon om Norgespris:
https://www.regjeringen.no/no/tema/energi/strom/sporsmal-og-svar-om-norgespris/id3089310/?expand=factbox3113088
Felles eiet tomt.
Borettslagets omfattende fellesarealer er godt tilrettelagt for barna med store opparbeidede områder med plen, flere lekeplasser, ballbaner, sittegruper og diverse beplanting.
Fra rekkehuset er det kort avstand til Risvollan senter og Nardosenteret med dagligvarebutikker, frisør, legesenter, tannlege, apotek, treningssenter, bank, restauranter, blomsterbutikker m.m. Det er også kort avstand til flere barnhager, barne- og ungdomsskoler. Utleirhallen med flerbrukshall og kunstgressbaner er like i nærheten. Fra boligen er det kun 2 minutter gangavstand til store grøntområder med kunstgressbane, ballbinge, tennisbane, tursti og frisbeegolfbane. Rett utenfor inngangsdøra er det en stor lekeplass som er populær for barnefamilier.
Med gode bussforbindelser i nærheten kan man ta seg ned til Trondheim sentrum og benytte seg av shoppingmuligheter og kulturtilbud. Det er sykkelavstand til byen og flere store arbeidsplasser som bla. Sintef, NTNU og St. Olavs hospital.
For den turglade har man populære Estenstadmarka i kort avstand fra leiligheten. Marka byr på et rikt rekreasjonstilbud sommer som vinter. Estendstadhytta er et populært turmål for mange med bademuligheter om sommeren og lysløpe samt flere oppkjørte skiløyper om vinteren. Her er det muligheter for kjøp av kaffe og boller på café.
For adkomst til boligen henvises det til kartløsninger som Google Maps, 1881, gulesider og finn.no.
Det vil bli skiltet i regi av EiendomsMegler1 ved annonsert fellesvisning.
Det medfølger en parkeringsplass i felles parkeringskjeller.
Elaway eier ladeboksen som en montert på parkeringsplassen. Beboer leier ladeboksen gjennom et ladeabonnement.
Det gjøres oppmerksom på at det er begrenset adgang til å leie ut leiligheter i borettslag jfr. lov om borettslag §§ 5-5 og 5-6.
Alle utleieboliger som ligger i 3. etasje eller lavere, er pålagt radonmåling. Eier har ikke gjennomført radonmåling av utleiedelen. Radonmåling må gjennomføres over en periode på minst 2 måneder i tidsrommet 15.10. - 15.04 hvert år. Kjøper overtar ansvaret/risikoen av for høyt radonnivå (tiltaksgrense er p.t 100 Bq) fra overtakelsen, samt for ev. utbedringstiltak som må igangsettes. Kjøper er gjort kjent med at for høye verdier kan være oppsigelsesgrunn for leietaker. For nærmere informasjon: www.dsa.no
Eiendommen ligger i område som iht. Kommuneplanens arealdel 2022-2034 (27.3.2025) er avsatt til:
- Bebyggelse og anlegg - Framtidig
- Bevaring kulturmiljø
- Blå/grønnstruktur - Nåværende
- Turvegtrasè - Framtidig
- Turvegtrasè - Nåværende
Eiendommen ligger i et regulert område:
- r1112f Eiendommene Risvold, Blaklieggen, Blakli, Uteiren, deler av Hoeggen m.fl. mellom Utleirvegen, Ytre Ringveg (18.11.1970)
Det er igangsatt planleggingsarbeid på et område som inkluderer/berører eiendommen:
- r20230023 Marie Sørdals veg
Kopi av situasjonskart, reguleringsplaner m/bestemmelser etc. ligger vedlagt salgsoppgaven. Vi oppfordrer interessenter til å gjøre seg kjent med disse.
Det foreligger midlertidig brukstillatelse fra 10.05.1972 og byggegodkjente tegninger datert 10.02.1970.
Ferdigattest utstedes ikke lenger for tiltak som er omsøkt før 01.01.1998, jfr. plan- og bygningslovens §21-10, 5.ledd. Dette innebærer at byggverkene lovlig kan brukes og omsettes slik de opprinnelig ble godkjent, selv om det ikke foreligger ferdigattest.
Rekkehus
Bygningen, som er et rekkehus, ble oppført i 1972 og er på 2 etasjer over kjeller. Grunnmuren og etasjeskillere består av støpt betong. Yttervegger består av tre og betong. Utvendige fasader er kledd med liggende trekledning.
Flat takkonstruksjon som er tekket med takmembran.
Vinduer med 2-lags glass.
Byggemåte iht. takstmann.
Bruksareal per etasje: Kjeller: 54 kvm
1. etasje: 58 kvm
2. etasje: 55 kvm
Meglers kommentar til areal:
Det er ikke samsvar mellom byggegodkjente tegninger mottatt fra kommunen og dagens utnyttelse av eiendommen. Dette gjelder bl.a:
1. etasje:
- Opprinnelig dør mellom entré og kjøkken er fjernet
2. etasje:
- Badet er litt utvidet mot opprinnelig bod (loft)
- Opprinnelig bod (loft) er innlemmet i soverom 1
Kjeller:
- Det foreligger ingen byggemeldte tegninger for kjelleretasjen i kommunens arkiv, og megler har derfor ikke kunnet foreta kontroll av dagens bruk opp mot eventuelle godkjente tegninger.
Bruksendring fra tilleggsdel til hoveddel/hoveddel til tilleggsdel er søknadspliktig tiltak, tiltaket er ikke omsøkt og det gis ingen garanti for at ev. søknad vil bli godkjent. Kjøper overtar ansvar, risiko og eventuelle konsekvenser knyttet til dette/ulovligheten, kfr. oppdragsansvarlig.
I tillegg har boenheten tilgang på en bod på 1,9 m2 i bakkant av parkeringsplass i felles parkeringskjeller som er medregnet i BRA.
Sameiets/Borettslagets økonomiske status for 2024:
Driftsinntekter: 75 710 893,-
Driftskostnader: 64 314 041,-
Driftsresultat: 11 396 852,-
Årsresultat: 6 168 334,-
Sameiets/Borettslagets budsjett for 2025:
Driftsinntekter: 78 005 548,-
Driftskostnader: 138 312 928,-
Driftsresultat: -60 307 380,-
Årsresultat: -66 858 214,-
Det negative årsresultatet i budsjettet skyldes at det ble tatt opp nytt lån på 60 millioner kroner i april 2025 i forbindelse med bygging av garasjer.
Borettslaget har et pågående maleprosjekt av rekkehusene, og Asbjørn Øverås veg 15 skal males ila. våren 2026.
Integrerte hvitevarer på kjøkken medfølger og overtas i den tilstand de har vært benyttet av selger. Det gis ingen garanti utover dette. Øvrige hvitevarer og brunevarer medfølger ikke i salget med mindre det tydelig fremgår av salgsoppgaven.
Total fellesgjeld
Gjeld kr 138 947,- pr. 31.12.24
Andel fellesgjeld
Gjeld kr 144 169,- pr. 19.01.26
IN-Ordning
Borettslaget tilbyr ikke IN-ordning (individuell nedbetaling av fellesgjeld).
Lånebetingelser
Lån: Husbanken 14631092
Type: Serielån
Terminer: 4
Innfrielse: 03.11.2033
Lån: Danske Bank 1088788
Type: Serielån
Terminer: 4
Innfrielse: 03.11.2033
Det er tatt opp nytt lån på 60 millioner kroner i april 2025 i forbindelse med bygging av garasjer.
Sikringsordning
Borettslaget er ikke tilknyttet sikringsfond. Andelseierne er ansvarlig for å dekke borettslagets kostnader, og dette gjøres ved betaling av månedlige felleskostnader. Hvis borettslaget lider tap som følge av at en andelseier ikke betaler sine felleskostnader, vil et ev. tap kunne medføre økte felleskostnader for de øvrige andelseiere. Dersom en andelseier ikke betaler sin andel av fellesgjeld har borettslaget 1. prioritets pant i andelen for inntil 2G (folketrygdens grunnbeløp). Ved vesentlig mislighold kan borettslaget kreve tvangssalg av andelen.
Forkjøpsrett
Andelseier(e) kan kun eie en andel. Andelseier må selv bebo leiligheten. Kun fysiske personer kan eie andel. Stat, kommune, fylkeskommune m.fl. kan likevel eie andel
eller andeler opp til 10% av andelene i borettslaget, der det er fem eller flere andeler. Det kan være fastsatt i vedtektene at stat, kommune, fylkeskommune, boligbyggelag, institusjon eller sammenslutning med samfunnsnyttig formål og
dessuten arbeidsgiver som skal leie ut boligen til sine ansatte, kan eie opp til 20% av andelene i tillegg. Kjøper av andelen må godkjennes av borettslagets styre for at ervervet skal bli gyldig. Kjøper bærer selv risikoen for at godkjenning blir gitt og må videreselge boligen for egen regning og risiko dersom styret ikke godkjenner kjøper som ny andelseier.
Dersom borettslaget er tilknyttet et boligbyggelag, så er det ofte et krav fra boligbyggelagets side at kjøper må melde seg inn i boligbyggelaget før kjøper kan bli godkjent som ny andelseier i det aktuelle borettslaget. Det gjøres i den forbindelse oppmerksom på at det vil kunne påløpe et innmeldingsgebyr til boligbyggelaget, og de fleste boligbyggelagene krever at innmeldingsavgiften skal være innbetalt før godkjenningen blir gitt. Innmeldingsgebyret faktureres kjøper direkte.
Forkjøpsretten på boligen er ferdig forhåndsprøvd. Ta kontakt med megler for å få opplyst hvor mange som har meldt interesse.
Primær formuesverdi kr 970 047,-
Sekundær formuesverdi kr 3 880 189,-
Formuesverdi årstall 2024
Skattemessig formuesverdi er oppgitt av Altinn. Verdien gjelder som primærbolig.
Selger har tegnet boligselgerforsikring hos Fremtind. Forsikringen dekker selgerens økonomiske ansvar hvis du oppdager feil eller mangler som omfattes av avhendingsloven. Forsikringen gjelder fra kjøpers overtagelse av eiendommen og varer i fem år. I tillegg dekker forsikringen perioden mellom budaksept og overtagelse begrenset til 12 måneder. Forsikringsdekningen er begrenset til salgssum, maksimalt 14 millioner kroner. For kombinasjonseiendommer gjelder forsikringen kun for boligdelen. Salgsdokumentasjon innhentes av forsikringsselskapet etter tinglysning. Se nettsidene til Sparebank 1 for mer informasjon om hva forsikringen dekker og hvilke begrensninger som gjelder.
Utdrag fra selgers egenerklæring:
2. Vet du om det er gjort arbeid på bad eller våtrom, enten av deg eller tidligere eiere?
- Ja
Faglært arbeid:
1. Hvilket år ble jobben fullført?: 2020
Firmanavn: Rørfunn AS
Beskrivelse av arbeidet: Slukbytte på bad og vaskerom. Videre ble det lagt opp nytt avløpsrør til ny plassering
av vask på bad.
Ufaglært arbeid:
1. Hvilket år ble jobben fullført?: 2020
Beskrivelse av arbeidet: Totalrehabilitering av bad. Som elektriker og interessert i oppussing gjorde jeg det
meste selv. Rørfunn gjorde som nevnt arbeidene med slukbytte og tilpasning av avløpsrør. En faglært venn
bisto med rørarbeidene, mens et familiemedlem som er byggmester bisto med avretting, membran og
flislegging. Det er installert baderomsvifte som starter på enten fuktdeteksjon eller bevegelse. Badet har
varmekabler som er styrt av termostat. Spotter i taket. Speil med varmetråder for å hindre dugg. Ny eier kan
sendes en fyldig mappe med bilder fra oppussingsarbeidene slik at man ser hvordan badet er bygd opp og
hvor rørføringer går i veggene.
2. Hvilket år ble jobben fullført?: 2022
Beskrivelse av arbeidet: Rehabilitering av vaskerom utført delvis i 2020, men ferdigstilt i 2022. Utført av
undertegnende, men med faglig bistand på rørarbeidene. Bilder fra oppussingsarbeidene kan forelegges om
ønskelig.
Vet du om tettesjikt, membran eller sluk ble fornyet eller oppgradert?
- Ja
Spesifiser hva som er gjort med henholdsvis membran, tettesjikt og sluk
Baderom: Sluk er skiftet. Gulv er avrettet og det er smørt membran på gulvet. Det er benyttet slukmansjett
tilknyttet klemring på sluk. Vegger er bygd opp med Litex membranplater som igjen er helsmurt med membran.
Vaskerom: Sluk er skiftet. Gulv er avrettet og det er smørt membran på gulvet og litt opp på veggen. Det er
benyttet slukmansjett tilknyttet klemring på sluk. Vegger er bygd opp av Fibo våtromsplater. Som en ekstra
sikkerhet er det installert lekkasjeføler på gulvet bak vaskemaskinen som kobler ut vannforsyningen til
vannskapet.
5. Vet du om det er, eller har vært, feil eller skader på vinduene, som for eksempel kondens, fuktskader eller
vanninntrengning? Eller er noen av vinduene i boligen punktert?
- Ja
Værtfall et vindu er punktert og må byttes ut den nærmeste tiden. Dette er meldt inn til borettslaget som både vil
skifte det defekte vinduet og ta kostnaden med dette. Eventuelle nye funn av defekte vinduer (av takstmann) vil
meldes inn til borettslaget for utskiftning så snart vi blir klar over dette.
Er det gjort tiltak, eller er feilen/skaden utbedret?
- Ja
Faglært arbeid:
1. Hvilket år ble jobben fullført?: 2020
Firmanavn: Risvollan borettslag
Beskrivelse av arbeidet: Et vindu ble byttet av borettslaget etter overtakelse i
2020.
10. Vet du om det er, eller har vært, feil på vann- eller avløpsanlegg?
- Ja
Rør til utvendig vannkran var ødelagt på et tidspunkt som følge av frost (på stuesiden).
Er det gjort tiltak, eller er feilen/skaden utbedret?
- Ja
Faglært arbeid:
1. Hvilket år ble jobben fullført?: 2024
Firmanavn: Risvollan borettslag
Beskrivelse av arbeidet: Utbedret av vaktmester i
borettslaget.
11. Vet du om det er gjort arbeid på vann og avløp, enten av deg eller tidligere eiere?
- Ja
Faglært arbeid:
1. Hvilket år ble jobben fullført?: 2020
Firmanavn: Rørfunn
Beskrivelse av arbeidet: Slukbytte og tilpasning av avløpsrør på bad og
vaskerom.
2. Hvilket år ble jobben fullført?: 2025
Firmanavn: Risvollan borettslag
Beskrivelse av arbeidet: Vaktmester (rørlegger) i borettslaget skiftet samtlige stengekraner på rørstammene
som går til fjernvarmeradiatorene.
Ufaglært arbeid:
1. Hvilket år ble jobben fullført?: 2020
Beskrivelse av arbeidet: Røranlegget for tappevann inne i boligen er skiftet ut. Det er etablert vannskap i
kjellerboden hvor det er installert magnetventil på hovedtilførselen med lekkasjeføler i vannskap, kjøkken (ved
oppvaskmaskin) og vaskerom (ved vaskmaskin) som kobler ut vanntilførselen ved detektert lekkasje. Fra
vannskapet er det trukket rør i rør opp til kjøkken, vaskerom og bad. Undertegnede har trukket rørene og gjort
"grovarbeidet", mens en faglært venn har bistått med visuell kontroll og koblinger. Det kan fremlegges
bildedokumentasjon på hvordan røranlegget er utført.
13. Vet du om det er gjort arbeid på sentralfyr, radiator, ventilasjon, varmepumpe eller andre installasjoner, enten
av deg eller tidligere eiere?
- Ja
Ufaglært arbeid:
1. Hvilket år ble jobben fullført?: 2020
Beskrivelse av arbeidet: Radiatorer er skiftet ut til nye. Utført av undertegnede sammen med faglært venn.
Radiatorer er levert av Lyngson.
2. Hvilket år ble jobben fullført?: 2025
Beskrivelse av arbeidet: Radiator i kjeller er skiftet ut i forbindelse med oppussing. Utført av undertegnede
sammen med faglært venn. Radiatorer er levert av Lyngson.
17. Vet du om det er gjort arbeid på det elektriske anlegget, enten av deg eller tidligere eiere?
- Ja
Faglært arbeid:
1. Hvilket år ble jobben fullført?: 2020
Firmanavn: Erik Pedersen
Beskrivelse av arbeidet: Som elektriker har jeg iht. DSB installasjonsrett i egen bolig. Hele det elektriske
anlegget er rehabilitert av undertegnede. Dette inkluderer blant annet utskifting av skrusikringer til
jordfeilautomater på samtliger kurser. Nytt skjultanlegg og nye ledere/kabler til samtlige kurser. Installasjon av
komfyrvakt på kjøkken. Varmekabler på bad. Avtrekksvifte på både bad. Spotter på bad. Spotter utvendig over
inngangsdør. En del dimmere er smartdimmere som kan kobles opp mot Philips Hue eller Google Home.
Dette følger med boligen, med mindre kjøper ønsker at jeg heller skifter til vanlig av/på styring. Videre er det
lagt opp en del trekkerør utvendig for potensielt utvendig lys under overbygg, ved rekkverk mot gaten
(inngangsparti) og for potensielt spotter i trappetrinn på terrasse på stuesiden.
2. Hvilket år ble jobben fullført?: 2022
Firmanavn: Erik Pedersen
Beskrivelse av arbeidet: Rehabilitering av elektroinstallasjonen på vaskerom som følge oppussing av nevnte
rom. Nye stikk, spotter, avtrekksvifte og lekkasjevakt ble installert.
3. Hvilket år ble jobben fullført?: 2025
Firmanavn: Erik Pedersen
Beskrivelse av arbeidet: Rehabilitering av elektroinstallasjonen i kjeller som følge av oppussing av nevnte rom.
Nye stikk, spotter, dimmer, trekkerør til potensiell datakabel, løsning for skjult hdmi/nettverkskabel mellom TV og TV-benk.
20. Vet du om boligen eller eiendommen har blitt endret eller bygget ut etter opprinnelig byggeår, enten av deg
eller tidligere eiere?
- Ja
Hele boligen har blitt rehabilitert innvendig av undertegnede siden overtakelse i 2020. Dette inkluderer riving av
så og si alle innvendige vegger (bortsett fra veggene tilknyttet bad, vaskerom og kjellerbod), samt innvendig
kledning på yttervegger og bygd opp på nytt. På barnerommene er walls-to-paint benyttet for robusthet, i kjeller
er Deco smartpanel benyttet og utover dette er vegger utført med gips.
Terrasse på kjøkkensiden ble bygd av undertegnede i 2023. Samtidig med dette ble det også bygd et takoverbygg
inntil eksisterende bod. Her er det lagt fram strøm som er avsluttet i koblingsboks for eventuell framtidig
utebelysning. Det er også lagt fram trekkerør under terrassebord for eventuelle belysning i rekkverk ut mot gaten.
For å komme til det nevnte må man demontere terrassebord, samt vite hvor trekkerørene/koblingsboksene er plassert. Terrassen er delvis bygd oppå eksisterende bjelker (øverste nivå) og på terrasseføtter plassert på
eksisterende brostein (nederste nivå)
Terrasse på stuesiden ble bygd i 2022. Her er det øverste nivået bygd på eksisterende betongplate og støpte
søylefundament, nederste nivået er forankret med jordskruer. Det er lagt trekkerør fra hjørnet av platten (mot
stuevegg) til trappetrinnene, dette som mulig framføring dersom man ønsker å anrette spotbelysning i trinnene.
Kjeller ble pusset opp høsten 2025. Ny radiator til varmeanlegget. Nytt elektrisk anlegg inkludert spotter i taket.
En stor katalog med bilder fra de ulike oppussingsarbeidene kan oversendes ved forespørsel.
25. Vet du om det finnes skaderapporter, tilstandsvurderinger, boligsalgsrapporter eller om det er utført målinger
for boligen?
- Ja
Det ble laget en tilstandsrapport i forbindelse med salg/kjøp i 2020. Undertegnede har både prospektet liggende,
og har den på pdf. Kan sendes over på forespørsel.
29. Har boligen garasje eller øvrige tilleggsbygninger?
- Ja
32. Er det bestilt Norgespris på strøm?
- Nei
33. Har du andre opplysninger om boligen eller eiendommen, utover det du har svart?
- Ja
Borettslaget holder på å male rekkehusene. Rekkehuset som ligger nedenfor vår rekke ble malt i fjor sommer.
Forhåpentligvis er Asbjørn Øverås Veg 15 neste rekke ut til sommeren. Dette til info.
Det er lagt opp trekkerør som gjør eventuelle ønsker om utvendig belysning enklere. Se punkt om terrassene.
Videre er det lagt trekkerør fra fiberinntak/router til to punkt nede i kjeller (tenkt kontorplass og tv-plassering) -
dette som en mulighet for kablet nett (ethernet-kabel) ned til arbeidsplass og/eller TV/spillkonsoll.
Lyset i front av stekeovnen (styrepanel) har blitt svakere. Mulig det er mulig å skifte ut ei pære her. Undertegnede
har ikke fått sjekket ut av dette på nåværende tidspunkt. Integrert oppvaskmaskin ble skiftet ut høsten 2025.
Det er installert elbillader på boligens parkeringsplass i parkeringskjelleren.
EiendomsMegler 1 formidler Boligkjøperforsikring fra HELP Forsikring AS. Det er en rettshjelpsforsikring som gir trygghet og profesjonell juridisk hjelp dersom det oppdages uventede feil eller mangler de neste fem årene. Du kan ta kontakt med megler for å få informasjon om boligkjøperforsikring eller lese mer på help.no. Forsikringen tilbys kun til privatpersoner som kjøper eiendom til eget eller nærmeste families bruk, og det er en forutsetning at kjøpsavtalen reguleres av avhendingsloven. Ved kjøp av landbrukseiendom/ småbruk, er det kun forhold tilknyttet til våningshuset som omfattes av forsikringen. For nærmere detaljer henvises det til forsikringsvilkårene. Megler mottar tegningsprovisjon fra HELP.
Overtakelse kan ikke finne sted før borettslaget har godkjent ny andelseier eller eventuelt er godkjent etter loven.
Salgsoppgaven beskriver vesentlig og lovpålagt informasjon om eiendommen
Se komplett salgsoppgaveAsbjørn Øverås veg 15B
på annonsen
prisantydning per kvadratmeter
Pris per m² ligger 12 256 kr under snittet for rekkehus i Trondheim Øst.
Grafen viser antall rekkehus solgt i Trondheim Øst siste året fordelt på pris per m² - totalt 213 rekkehus
Antall boliger
Kvadratmeterpris tilsvarer prisantydning pluss fellesgjeld per kvadratmeter (p-rom eller BRA-i). Prisene i grafen er avrundet til nærmeste 1000 kr.












| FINN-kode | 451638850 |
|---|---|
| Sist endret | 06. mars 2026 13:19 |
| Referanse | 35260018 |
Annonsene kan være mangelfulle i forhold til lovpålagt opplysningsplikt. Før bindende avtale inngås oppfordres interessenter til å innhente komplett informasjon fra meglerforetaket, selger eller utleier.