Bildegalleri

Velkommen til Karl Jonssons veg 2 C - Et innholdsrikt og oppgradert rekkehus i barnevennlige omgivelser!
NIDARVOLL
Innholdsrikt rekkehus med hage, god planløsning og attraktiv beliggenhet | Garasje | Terrasse | 3 sov
Prisantydning4 490 000 kr
Nøkkelinfo
- Boligtype
- Rekkehus
- Eieform
- Eier (Selveier)
- Soverom
- 3
- Internt bruksareal
- 114 m² (BRA-i)
- Bruksareal
- 129 m²
- Eksternt bruksareal
- 15 m² (BRA-e)
- Balkong/Terrasse
- 16 m² (TBA)
- Byggeår
- 1962
- Energimerking
- E - Gul
- Rom
- 4
- Renovert år
- 2022
- Tomteareal
- 127 m² (eiet)
Fasiliteter
Balkong/Terrasse
Barnevennlig
Garasje/P-plass
Hage
Kjæledyr tillatt
Peis/Ildsted
Sentralt
Om boligen
Velkommen til Karl Jonssons veg 2C
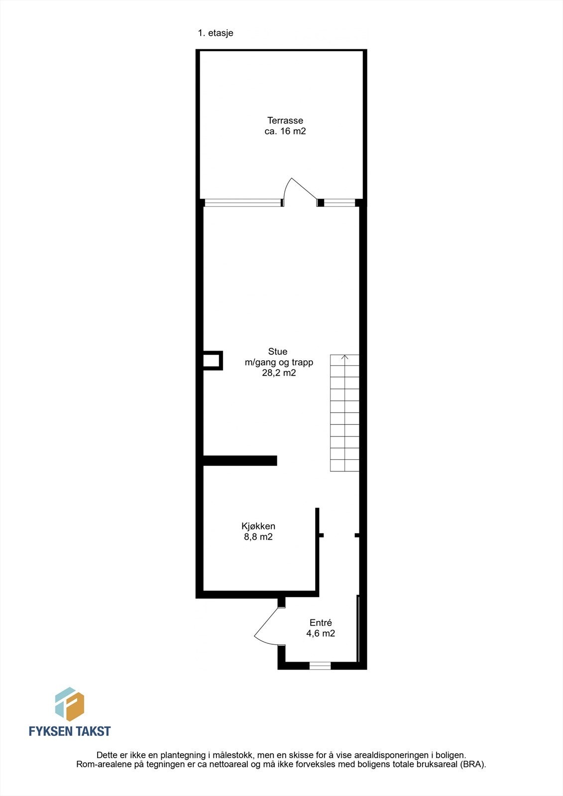
Et praktisk rekkehus med god beliggenhet og solrik hage. Boligen har en funksjonell planløsning og ligger i et etablert boligområde med kort vei til både sentrum, skoler og barnehager. Kjøkken og bad er oppgradert i 2022.
Kvaliteter av boligen:
- Egen garasje
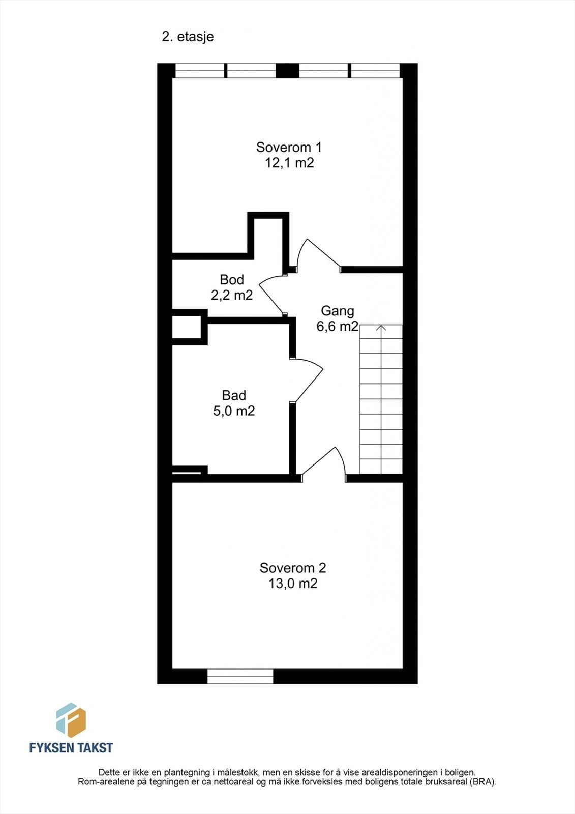
- Tre soverom med god størrelse
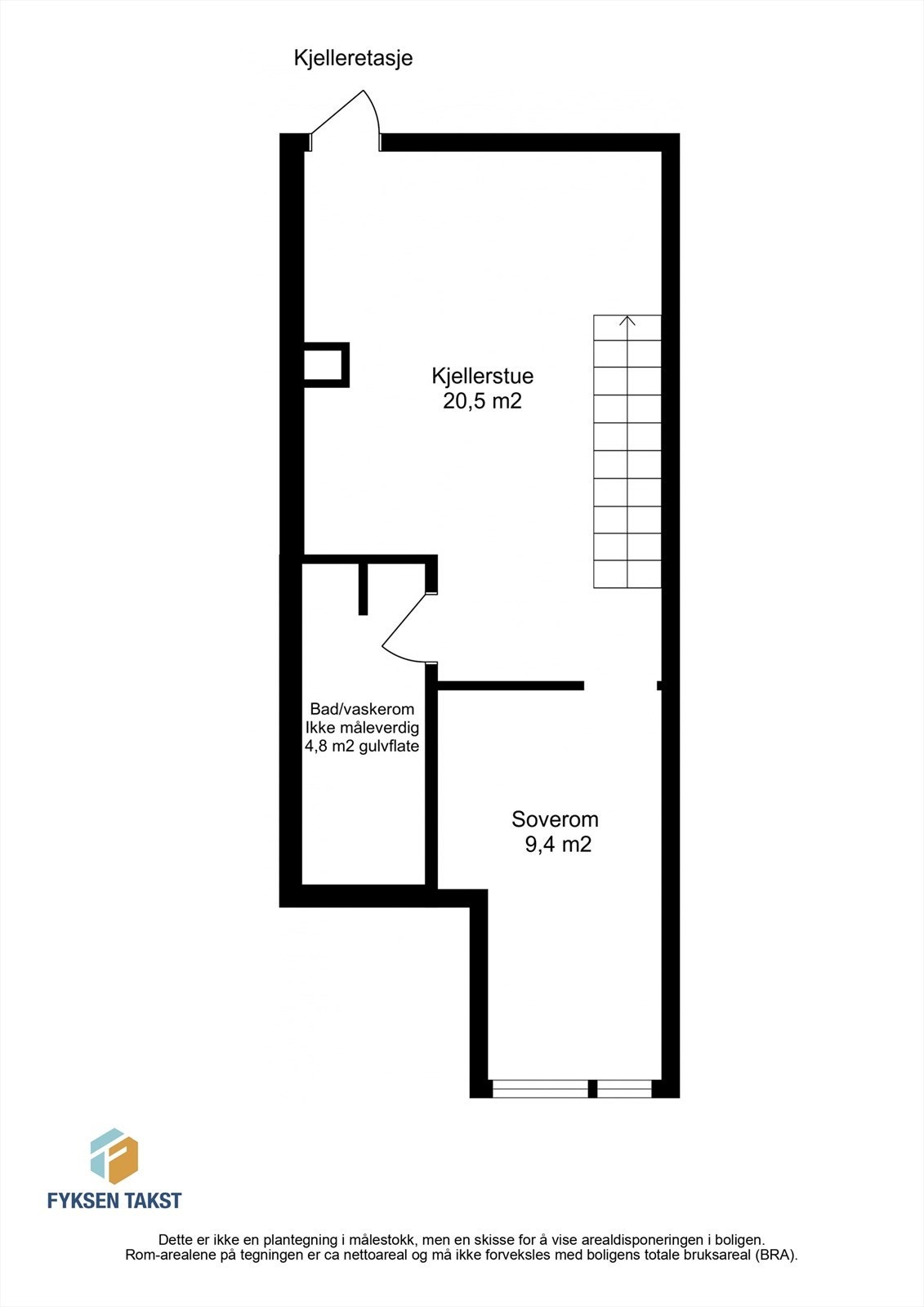
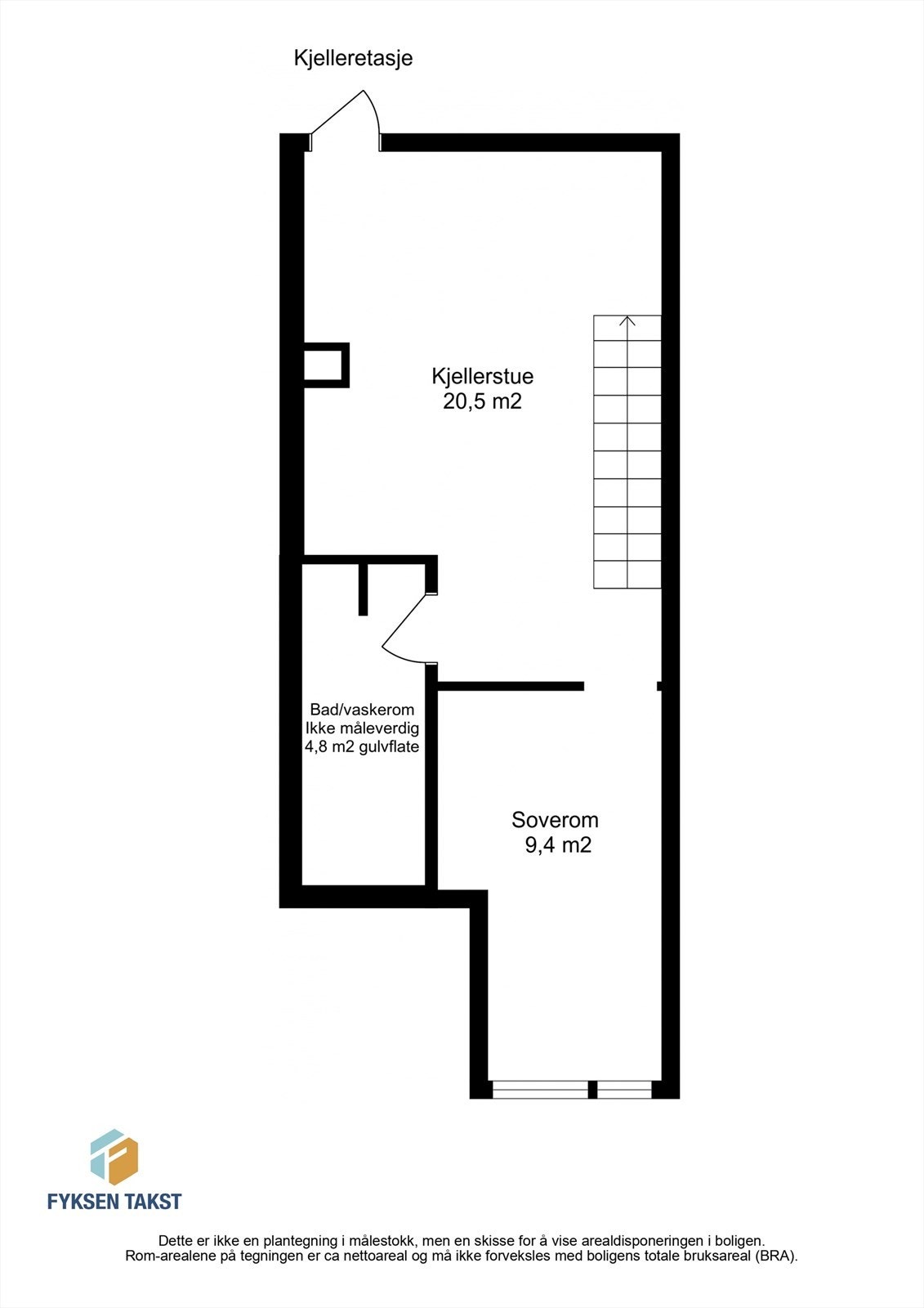
- Rikelig lagringsplass fordelt på loft og innvendig bod
- Innredet underetasje med kjellerstue, soverom og vaskerom
- Solrik terrasse og hage
- Vedfyring
- To barnehager innen 300 meter (Nidarvoll og Sunnland)
- Nidarvoll barneskole og Sunnland ungdomsskole innen 700 meter
- Sykkelvei fra Klæbuveien til Solsiden
- Gangavstand til dagligvarebutikker som Bunnpris (søndagsåpen), Rema 1000 og Coop Extra
Velkommen til visning - Husk visningspåmelding!
Et praktisk rekkehus med god beliggenhet og solrik hage. Boligen har en funksjonell planløsning og ligger i et etablert boligområde med kort vei til både sentrum, skoler og barnehager. Kjøkken og bad er oppgradert i 2022.
Kvaliteter av boligen:
- Egen garasje
- Tre soverom med god størrelse
- Rikelig lagringsplass fordelt på loft og innvendig bod
- Innredet underetasje med kjellerstue, soverom og vaskerom
- Solrik terrasse og hage
- Vedfyring
- To barnehager innen 300 meter (Nidarvoll og Sunnland)
- Nidarvoll barneskole og Sunnland ungdomsskole innen 700 meter
- Sykkelvei fra Klæbuveien til Solsiden
- Gangavstand til dagligvarebutikker som Bunnpris (søndagsåpen), Rema 1000 og Coop Extra
Velkommen til visning - Husk visningspåmelding!
NB: Knappen for å vise hele beskrivelsen har kun en visuell effekt.
NB: Knappen for å vise hele beskrivelsen har kun en visuell effekt.
Salgsoppgaven beskriver vesentlig og lovpålagt informasjon om eiendommen
Se komplett salgsoppgaveNyttige lenker
Nærområdet
DNB Eiendom AS
Verdifulle salg
Annonseinformasjon
| FINN-kode | 433313205 |
|---|---|
| Sist endret | 27. feb. 2026 10:55 |
| Referanse | 823250294 |
Annonsene kan være mangelfulle i forhold til lovpålagt opplysningsplikt. Før bindende avtale inngås oppfordres interessenter til å innhente komplett informasjon fra meglerforetaket, selger eller utleier.



























