Bildegalleri

Velkommen til Skallestadveien 25D, Presentert av Aktiv Eiendomsmegling v/ André Norrøne Volla. Foto: Fotograf Magik.
Hårkollen
Andelsleilighet i 2. Etasje med vestvendt balkong, nærhet til skole og barnehage og gode solforhold.
Prisantydning1 650 000 kr
Nøkkelinfo
- Boligtype
- Leilighet
- Eieform
- Andel
- Soverom
- 2
- Internt bruksareal
- 58 m² (BRA-i)
- Bruksareal
- 63 m²
- Eksternt bruksareal
- 5 m² (BRA-e)
- Balkong/Terrasse
- 6 m² (TBA)
- Etasje
- 2
- Byggeår
- 2005
- Energimerking
- D - Oransje
- Rom
- 3
- Tomteareal
- 5 319 m² (eiet)
Fasiliteter
Balkong/Terrasse
Barnevennlig
Bredbåndstilknytning
Garasje/P-plass
Kabel-TV
Offentlig vann/kloakk
Visning
tirsdag, 17. februar
15:30 – 16:30
Alle våre visninger har påmelding. På denne måten sikrer vi at megler har god oversikt og tid til å imøtekomme alle interessenter. Meld deg på visning ved å trykke på lenken visningspåmelding. Påmelding til megler innen kl 12:00 visningsdagen. Annonserte visninger hvor det ikke er noen påmeldte kan bli avlyst.
Velkommen!
VisningspåmeldingOm boligen
Velkommen til Skallestadveien 25D, beliggende i det attraktive området Hårkollen. Leiligheten ligger i et familievennlig nabolag med kort avstand til både dagligvarebutikk, barnehager og skoler, samt gode offentlige transportmuligheter. Området byr på nærhet til naturen med turmuligheter og en trygg atmosfære, perfekt for etablerere og godt voksne.
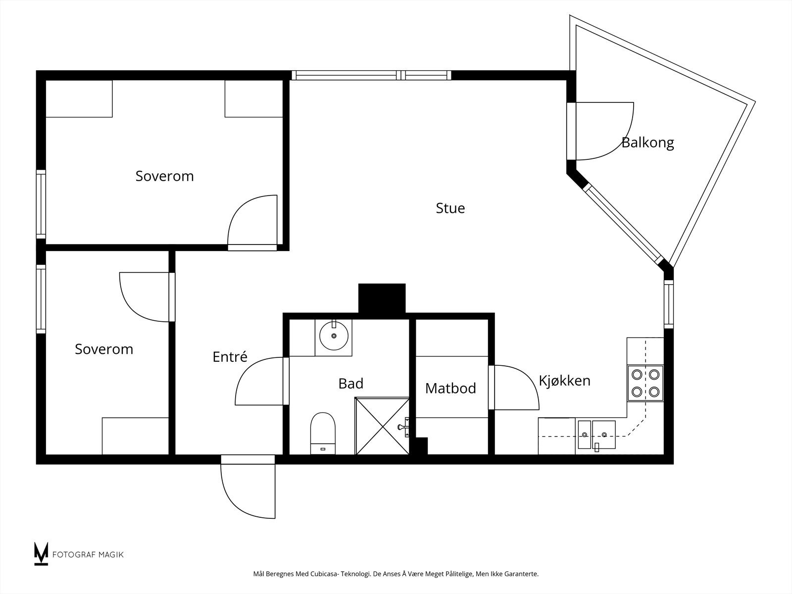
Leiligheten ligger i 2. etasje og har en praktisk planløsning med entré, stue/kjøkken, bad/vaskerom, to soverom, loft samt innvendig bod i tilknytning til kjøkkenet. Balkongen på 6 m² er vestvendt og har utgang fra stuen, ideell for solrike dager.
Utvendig bod i felles rekke på 5 m² og egen parkering på felles parkeringsplass. Leiligheten har en varmepumpe fra 2019 og termostatstyrte varmekabler på badet.
Leiligheten ligger i 2. etasje og har en praktisk planløsning med entré, stue/kjøkken, bad/vaskerom, to soverom, loft samt innvendig bod i tilknytning til kjøkkenet. Balkongen på 6 m² er vestvendt og har utgang fra stuen, ideell for solrike dager.
Utvendig bod i felles rekke på 5 m² og egen parkering på felles parkeringsplass. Leiligheten har en varmepumpe fra 2019 og termostatstyrte varmekabler på badet.
NB: Knappen for å vise hele beskrivelsen har kun en visuell effekt.
NB: Knappen for å vise hele beskrivelsen har kun en visuell effekt.
Salgsoppgaven beskriver vesentlig og lovpålagt informasjon om eiendommen
Se komplett salgsoppgaveNærområdet
Aktiv Tønsberg og Re
Annonseinformasjon
| FINN-kode | 450464058 |
|---|---|
| Sist endret | 10. feb. 2026 13:25 |
| Referanse | 1312250075 |
Annonsene kan være mangelfulle i forhold til lovpålagt opplysningsplikt. Før bindende avtale inngås oppfordres interessenter til å innhente komplett informasjon fra meglerforetaket, selger eller utleier.



































