Bildegalleri

Velkommen til Saupstadringen 8 C, presentert av Johannes Tømmerås!
Saupstad
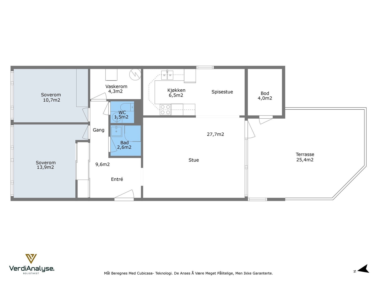
FLOTT & ROMSLIG 3-ROMS MED KJØKKEN FRA 2014. Stor, skjermet og solrik terrasse. Bad + eget vaskerom. 4 boder totalt
Prisantydning2 790 000 kr
Nøkkelinfo
- Boligtype
- Leilighet
- Eieform
- Andel
- Soverom
- 2
- Internt bruksareal
- 78 m² (BRA-i)
- Bruksareal
- 108 m²
- Eksternt bruksareal
- 30 m² (BRA-e)
- Balkong/Terrasse
- 25 m² (TBA)
- Etasje
- 1
- Byggeår
- 1972
- Energimerking
- F - Oransje
- Rom
- 3
- Tomteareal
- 14 560 m² (eiet)
Fasiliteter
Barnevennlig
Balkong/Terrasse
Garasje/P-plass
Kabel-TV
Offentlig vann/kloakk
Ingen gjenboere
Turterreng
Utsikt
Vaktmester-/vektertjeneste
Sentralt
Bredbåndstilknytning
Rolig
Lademulighet
Visning
onsdag, 07. januar
18:45 – 19:30
Våre visninger har påmelding. Dette gjør vi for å kunne yte bedre service for våre kunder. Verdifullt for boligkjøper og for oss. Vi anbefaler at salgsoppgaven lastes ned digitalt før visning, og ring oss gjerne på forhånd for spørsmål om boligen. Passer ikke angitt tidspunkt, ta kontakt så finner vi en løsning. Skulle det mot formodning ikke være påmeldte til angitt visningstidspunkt vil ikke visning bli gjennomført.
Om boligen
Velkommen til Saupstadringen 8C, presentert av Johannes Tømmerås. Flott 3-roms i et veldrevet og populært borettslag på Saupstad.
Kvaliteter vi ønsker å fremheve:
- Flott kjøkken oppgradert i 2014
- 2 gode soverom
- Bad + eget praktisk vaskerom
- Romslig stue med flere møbleringsmuligheter
- Varmepumpe fra 2020
- Varmtvannstank fra 2013
- Stor, vestvendt balkong på ca. 25 kvm.
- Rikelig med lagringsplass med 4 boder totalt
- Fine turmuligheter og aktivitetstilbud i nærheten.
- Gode bussforbindelser med hyppige avganger til Sentrum like utenfor døren
- Borettslaget har parkeringsplass for beboerne, samt rikelig med gjesteparkering
Boligen befinner seg i et populært boområde på Saupstad med alle nødvendige fasiliteter rett i nærheten.
Velkommen til en hyggelig visning!
Kvaliteter vi ønsker å fremheve:
- Flott kjøkken oppgradert i 2014
- 2 gode soverom
- Bad + eget praktisk vaskerom
- Romslig stue med flere møbleringsmuligheter
- Varmepumpe fra 2020
- Varmtvannstank fra 2013
- Stor, vestvendt balkong på ca. 25 kvm.
- Rikelig med lagringsplass med 4 boder totalt
- Fine turmuligheter og aktivitetstilbud i nærheten.
- Gode bussforbindelser med hyppige avganger til Sentrum like utenfor døren
- Borettslaget har parkeringsplass for beboerne, samt rikelig med gjesteparkering
Boligen befinner seg i et populært boområde på Saupstad med alle nødvendige fasiliteter rett i nærheten.
Velkommen til en hyggelig visning!
NB: Knappen for å vise hele beskrivelsen har kun en visuell effekt.
NB: Knappen for å vise hele beskrivelsen har kun en visuell effekt.
Salgsoppgaven beskriver vesentlig og lovpålagt informasjon om eiendommen
Se komplett salgsoppgaveNyttige lenker
Nærområdet
EiendomsMegler 1 Lerkendal
Vi loser deg trygt gjennom hele boligsalget
Annonseinformasjon
| FINN-kode | 443555537 |
|---|---|
| Sist endret | 29. des. 2025 17:46 |
| Referanse | 37250232 |
Annonsene kan være mangelfulle i forhold til lovpålagt opplysningsplikt. Før bindende avtale inngås oppfordres interessenter til å innhente komplett informasjon fra meglerforetaket, selger eller utleier.



































