Bildegalleri

Velkommen på visning i Ensjøveien 21L.
Ensjø Torg
Romslig 3-r i populære Ensjø torg I Fantastisk utsikt fra 11 etg. I Stor balkong I "Alt ink" I Heis I Lekker takterasse
Prisantydning7 500 000 kr
Nøkkelinfo
- Boligtype
- Leilighet
- Eieform
- Eier (Selveier)
- Soverom
- 2
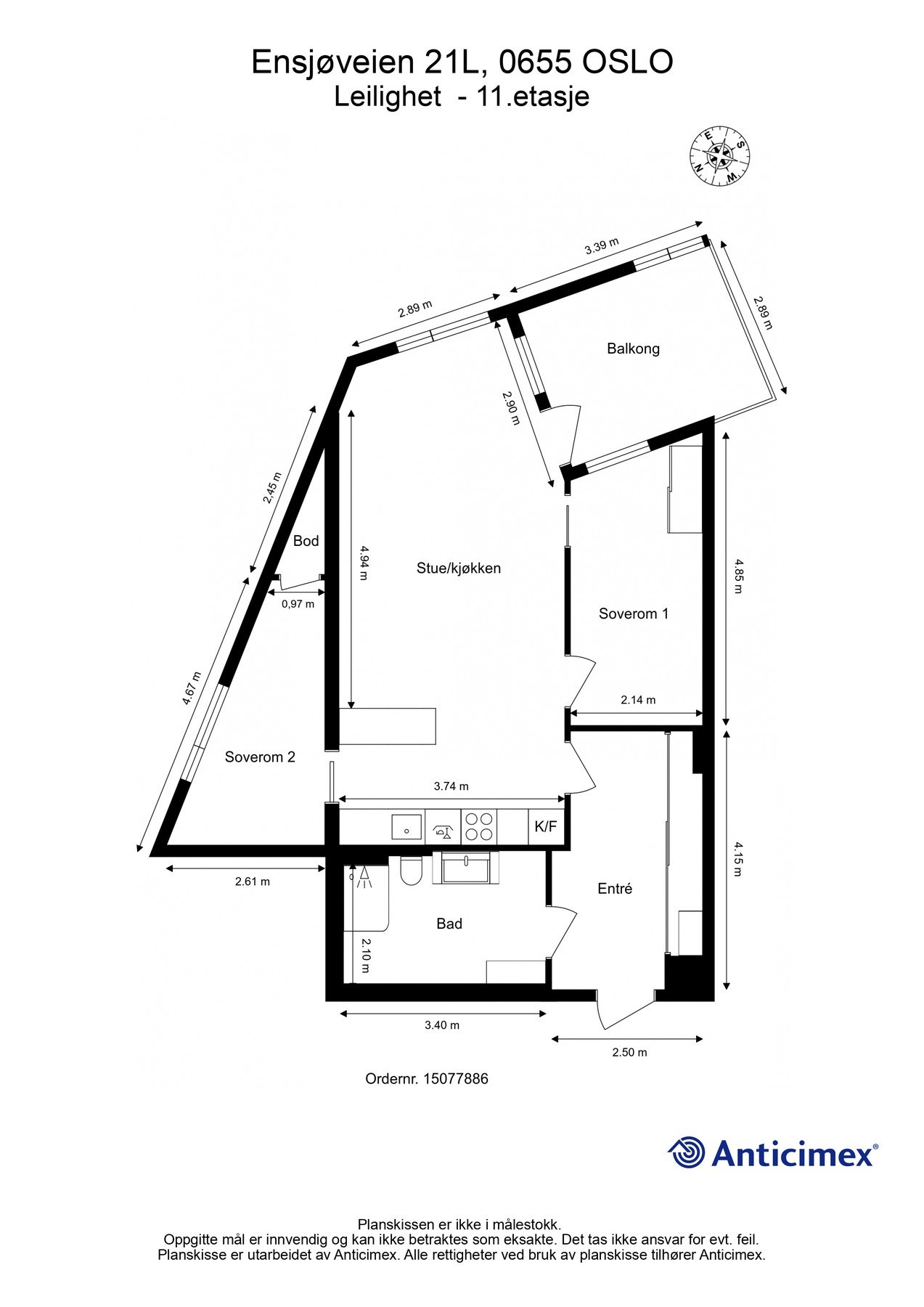
- Internt bruksareal
- 71 m² (BRA-i)
- Bruksareal
- 78 m²
- Eksternt bruksareal
- 7 m² (BRA-e)
- Balkong/Terrasse
- 9 m² (TBA)
- Etasje
- 11
- Byggeår
- 2019
- Energimerking
- B - Mørkegrønn
- Rom
- 3
- Tomteareal
- 4 702 m² (eiet)
Fasiliteter
Barnevennlig
Balkong/Terrasse
Garasje/P-plass
Kabel-TV
Heis
Offentlig vann/kloakk
Ingen gjenboere
Parkett
Turterreng
Utsikt
Vaktmester-/vektertjeneste
Sentralt
Bredbåndstilknytning
Moderne
Balansert ventilasjon
Visning
søndag, 11. januar
12:00 – 12:45
Meld deg på visning eller kontakt eiendomsmegler for privatvisning.
Visning blir ikke gjennomført uten påmeldte.
mandag, 12. januar
18:00 – 18:30
Meld deg på visning eller kontakt eiendomsmegler for privatvisning.
Visning blir ikke gjennomført uten påmeldte.
Om boligen
Vi har for salg en strøken 3-roms med god standard fra 2019. Leiligheten ligger i 11. etasje med fantastisk utsikt fra samtlige vinduer.
Rommene har en god størrelse og er enkle å møblere. Store vindusflater slipper lyset inn.
Om sommeren er den romslige balkongen med morgen, og formiddagssol plassen å sitte. Nå om vinteren er det lunt og godt med vannbåren varme i alle gulv som er inkludert i de lave felleskostnadene.
Ensjø Torg kan ellers vise til to heiser i bygget, en fantastisk felles takterrasse med panorama utsikt og både T-bane, baker, matvareforretning og andre servicetilbud i umiddelbar nærhet.
Det ligger ofte garasjeplasser ute for både salg og leie.
- Lave felleskostnader
- Utsikt
- Standard fra 2019
- Kjellerbod + innvendig bod
Rommene har en god størrelse og er enkle å møblere. Store vindusflater slipper lyset inn.
Om sommeren er den romslige balkongen med morgen, og formiddagssol plassen å sitte. Nå om vinteren er det lunt og godt med vannbåren varme i alle gulv som er inkludert i de lave felleskostnadene.
Ensjø Torg kan ellers vise til to heiser i bygget, en fantastisk felles takterrasse med panorama utsikt og både T-bane, baker, matvareforretning og andre servicetilbud i umiddelbar nærhet.
Det ligger ofte garasjeplasser ute for både salg og leie.
- Lave felleskostnader
- Utsikt
- Standard fra 2019
- Kjellerbod + innvendig bod
NB: Knappen for å vise hele beskrivelsen har kun en visuell effekt.
NB: Knappen for å vise hele beskrivelsen har kun en visuell effekt.
Salgsoppgaven beskriver vesentlig og lovpålagt informasjon om eiendommen
Se komplett salgsoppgaveNyttige lenker
Nærområdet
Schala &Partners Sagene
Verdien av lokalkunnskap
Annonseinformasjon
| FINN-kode | 441882015 |
|---|---|
| Sist endret | 05. jan. 2026 08:46 |
| Referanse | 19251003 |
Annonsene kan være mangelfulle i forhold til lovpålagt opplysningsplikt. Før bindende avtale inngås oppfordres interessenter til å innhente komplett informasjon fra meglerforetaket, selger eller utleier.










































