Bildegalleri

Velkommen til Ensjøveien 4G, presentert av Silje Heggø v/ Nordvik bolig! Foto: Joakim Karlsen
Moderne og lekker 3-roms med høy standard, balkong og heis | Nybygg fra 2023 | Akonto fyring/v.vann | Felles takterrasse
Prisantydning8 500 000 kr
Nøkkelinfo
- Boligtype
- Leilighet
- Eieform
- Andel
- Soverom
- 2
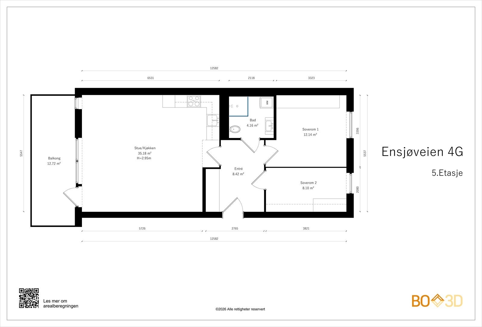
- Internt bruksareal
- 71 m² (BRA-i)
- Bruksareal
- 76 m²
- Eksternt bruksareal
- 5 m² (BRA-e)
- Balkong/Terrasse
- 13 m² (TBA)
- Etasje
- 5
- Byggeår
- 2023
- Energimerking
- Rom
- 3
- Tomteareal
- 4 520 m² (eiet)
Fasiliteter
Takterrasse
Balkong/Terrasse
Barnevennlig
Bredbåndstilknytning
Garasje/P-plass
Heis
Kabel-TV
Offentlig vann/kloakk
Parkett
Sentralt
Utsikt
Vaktmester-/vektertjeneste
Lademulighet
Balansert ventilasjon
Visning
søndag, 12. april
15:45 – 16:30
mandag, 13. april
18:00 – 18:45
Meld deg på visning ved å trykke på lenken visningspåmelding.
VisningspåmeldingOm boligen
Velkommen til Ensjøveien 4G!
Lekker og moderne 3-roms leilighet i 5. etasje med heis, store vindusflater og en herlig balkong. Leiligheten har en svært god planløsning med innbydende entré, romslig åpen stue- og kjøkkenløsning med utgang til balkong, to soverom og flislagt bad med opplegg for vaskemaskin.
Bygget stod ferdig i 2023, noe som gir deg moderne standard, tidsriktige materialvalg og minimale vedlikeholdsbehov i mange år fremover.
Ensjø er et populært område i vekst!
Fasiliteter:
- Høy standard
- Nybyggaranti
- Kjellerbod på 5m²
- Felles takterrasse
- A-konto varme inkludert
- God takhøyde på 2,9 meter
- Herlig balkong på ca. 13 m²
- Mulighet for kjøp av garasjeplass
- Vannbåren gulvvarme og balansert ventilasjon
- Elektrisk utvendig solskjerming på soverommene
Lekker og moderne 3-roms leilighet i 5. etasje med heis, store vindusflater og en herlig balkong. Leiligheten har en svært god planløsning med innbydende entré, romslig åpen stue- og kjøkkenløsning med utgang til balkong, to soverom og flislagt bad med opplegg for vaskemaskin.
Bygget stod ferdig i 2023, noe som gir deg moderne standard, tidsriktige materialvalg og minimale vedlikeholdsbehov i mange år fremover.
Ensjø er et populært område i vekst!
Fasiliteter:
- Høy standard
- Nybyggaranti
- Kjellerbod på 5m²
- Felles takterrasse
- A-konto varme inkludert
- God takhøyde på 2,9 meter
- Herlig balkong på ca. 13 m²
- Mulighet for kjøp av garasjeplass
- Vannbåren gulvvarme og balansert ventilasjon
- Elektrisk utvendig solskjerming på soverommene
NB: Knappen for å vise hele beskrivelsen har kun en visuell effekt.
NB: Knappen for å vise hele beskrivelsen har kun en visuell effekt.
Salgsoppgaven beskriver vesentlig og lovpålagt informasjon om eiendommen
Se komplett salgsoppgaveNyttige lenker
Nærområdet
Nordvik Torshov
Vi vet hva det er verdt
Annonseinformasjon
| FINN-kode | 457922709 |
|---|---|
| Sist endret | 02. apr. 2026 09:09 |
| Referanse | 29-0051/26 |
Annonsene kan være mangelfulle i forhold til lovpålagt opplysningsplikt. Før bindende avtale inngås oppfordres interessenter til å innhente komplett informasjon fra meglerforetaket, selger eller utleier.






















































