Bildegalleri

Privatmegleren Hallingdal v/ Merethe Jonsen og Thea Viko Eidsgård har gleden av å presentere boligtype D på Svøo. Foto: Terje Bjørnsen.
Nyoppført og moderne enebolig på Leikvin | Innflyttingsklar | 4 soverom og 2 bad | Dobbel carport
Prisantydning5 950 000 kr
Nøkkelinfo
- Boligtype
- Enebolig
- Eieform
- Eier (Selveier)
- Soverom
- 4
- Internt bruksareal
- 113 m² (BRA-i)
- Bruksareal
- 119 m²
- Eksternt bruksareal
- 5 m² (BRA-e)
- Balkong/Terrasse
- 46 m² (TBA)
- Byggeår
- 2025
- Rom
- 5
- Tomteareal
- 551 m² (eiet)
Fasiliteter
Barnevennlig
Balkong/Terrasse
Garasje/P-plass
Peis/Ildsted
Turterreng
Utsikt
Moderne
Rolig
Balansert ventilasjon
Om boligen
Velkommen til denne lekre eneboligen på Svøo. En del av et boligprosjekt som vil inspirere med et moderne design, høy standard og flotte fellesområder.
Hemsedal er et trygt og godt sted å bo og vokse opp, med idyllisk natur og en rekke fritidsaktiviteter tett på.
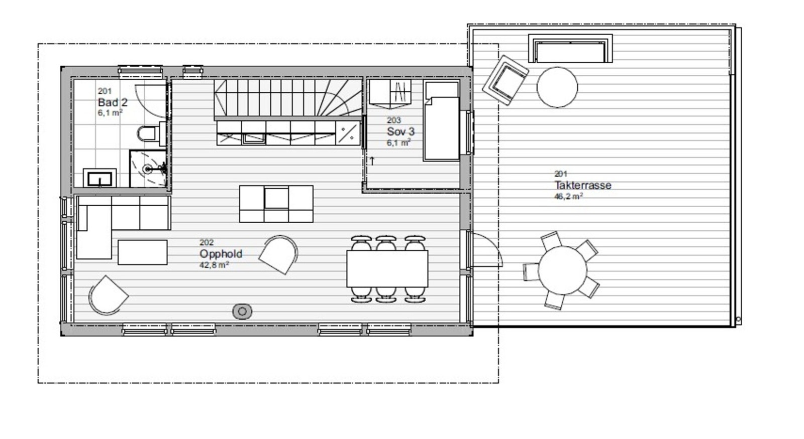
Boligen består av entre/gang, 4 soverom, 2 bad, vaskerom, bod og åpen stue- og kjøkkenløsning med utgang til svær terrasse med fantastiske sol- og utsiktsforhold. Det er også en praktisk utebod og dobbel carport.
Velkommen til visning!
Hemsedal er et trygt og godt sted å bo og vokse opp, med idyllisk natur og en rekke fritidsaktiviteter tett på.
Boligen består av entre/gang, 4 soverom, 2 bad, vaskerom, bod og åpen stue- og kjøkkenløsning med utgang til svær terrasse med fantastiske sol- og utsiktsforhold. Det er også en praktisk utebod og dobbel carport.
Velkommen til visning!
NB: Knappen for å vise hele beskrivelsen har kun en visuell effekt.
NB: Knappen for å vise hele beskrivelsen har kun en visuell effekt.
Salgsoppgaven beskriver vesentlig og lovpålagt informasjon om eiendommen
Se komplett salgsoppgaveNyttige lenker
Nærområdet
PrivatMegleren Hallingdal
Kun det beste på dine vegne
Annonseinformasjon
| FINN-kode | 426078150 |
|---|---|
| Sist endret | 18. nov. 2025 09:20 |
| Referanse | 96251145 |
Annonsene kan være mangelfulle i forhold til lovpålagt opplysningsplikt. Før bindende avtale inngås oppfordres interessenter til å innhente komplett informasjon fra meglerforetaket, selger eller utleier.














































