Bildegalleri

EIE Fjellmegleren har gleden av å presentere Skadvinvegen 52 - Oppussingsobjekt med store muligheter!! Foto: Aurelijus Photo.
Innholdsrik enebolig med utleiedel, dobbelgarasje og attraktiv beliggenhet i Bekkedalen - Oppussingsbehov.
Prisantydning5 950 000 kr
Nøkkelinfo
- Boligtype
- Enebolig
- Eieform
- Selveier
- Soverom
- 5
- Internt bruksareal
- 280 m² (BRA-i)
- Bruksareal
- 280 m²
- Balkong/Terrasse
- 61 m² (TBA)
- Byggeår
- 1998
- Rom
- 7
- Tomteareal
- 836 m² (eiet)
Fasiliteter
Barnevennlig
Balkong/Terrasse
Garasje/P-plass
Offentlig vann/kloakk
Peis/Ildsted
Turterreng
Utsikt
Sentralt
Rolig
Om boligen
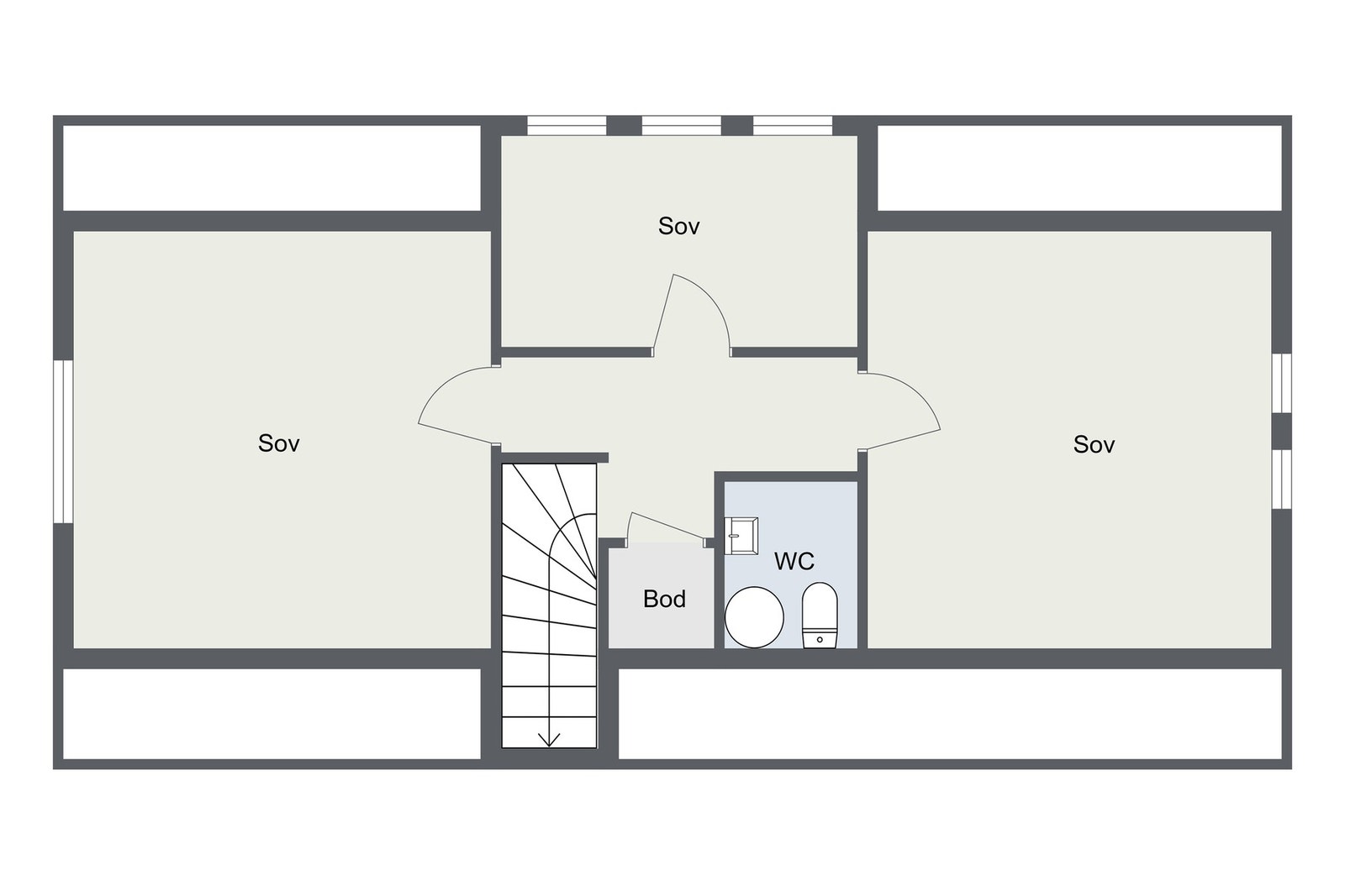
Boligen går over to plan og har en attraktiv, familievennlig planløsning med utleiedel i underetasjen - En smart løsning som gir mulighet for gode leieinntekter eller fleksibel bruk til storfamilien med tilsammen 5 (6) soverom - 2 bad og 2 sep. toalett.
Her ligger alt til rette for å skape et moderne og funksjonelt hjem tilpasset egne behov. Eiendommen er beliggende i attraktive Bekkedalen og har gangavstand til sentrum og kort vei til skibuss.
Stuen/spisestuen har utgang til romslig terrasse mot vest med gode solforhold, utsikt mot skianlegget og flott fjellutsikt - Det er også fin morgen terrasse mot øst.
I Skadvinvegen 52 finner du en bolig med solid grunnlag som gir deg en meget god mulighet til å sette ditt eget preg på eiendommen og tilpasse oppgraderinger og bruk etter eget behov og "lommebok". Utleiedelen gir også gode ekstra inntektsmuligheter.
Dobbelgarasje med tre rom (ett med vindu) over gir rikelig med lagringsplass.
Velkommen til visning!
Her ligger alt til rette for å skape et moderne og funksjonelt hjem tilpasset egne behov. Eiendommen er beliggende i attraktive Bekkedalen og har gangavstand til sentrum og kort vei til skibuss.
Stuen/spisestuen har utgang til romslig terrasse mot vest med gode solforhold, utsikt mot skianlegget og flott fjellutsikt - Det er også fin morgen terrasse mot øst.
I Skadvinvegen 52 finner du en bolig med solid grunnlag som gir deg en meget god mulighet til å sette ditt eget preg på eiendommen og tilpasse oppgraderinger og bruk etter eget behov og "lommebok". Utleiedelen gir også gode ekstra inntektsmuligheter.
Dobbelgarasje med tre rom (ett med vindu) over gir rikelig med lagringsplass.
Velkommen til visning!
NB: Knappen for å vise hele beskrivelsen har kun en visuell effekt.
NB: Knappen for å vise hele beskrivelsen har kun en visuell effekt.
Salgsoppgaven beskriver vesentlig og lovpålagt informasjon om eiendommen
Se komplett salgsoppgaveNærområdet
EIE Fjellmegleren Hemsedal
Annonseinformasjon
| FINN-kode | 454900536 |
|---|---|
| Sist endret | 30. mars 2026 04:07 |
| Referanse | 29260034 |
Annonsene kan være mangelfulle i forhold til lovpålagt opplysningsplikt. Før bindende avtale inngås oppfordres interessenter til å innhente komplett informasjon fra meglerforetaket, selger eller utleier.












































