Bildegalleri

Velkommen til Dynekilgata 19B - En tilbaketrukket 2(3)-roms med balkong rett ved torshovdalen!
Lys og attraktiv 2-roms | Balkong på 3,6 m² | Bad fra 2023 | Kjøkken fra 2020 | V.vann og fyring inkl. | Sentralt område
Nøkkelinfo
- Boligtype
- Leilighet
- Eieform
- Andel
- Soverom
- 1
- Internt bruksareal
- 44 m² (BRA-i)
- Bruksareal
- 47 m²
- Eksternt bruksareal
- 3 m² (BRA-e)
- Balkong/Terrasse
- 4 m² (TBA)
- Etasje
- 3
- Byggeår
- 1937
- Energimerking
- G - Mørkegrønn
- Rom
- 2
- Tomteareal
- 1 829 m² (eiet)
Fasiliteter
Om boligen
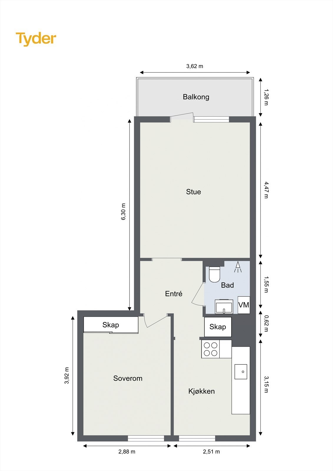
Lys og attraktiv 2-roms andelsleilighet i 3. etasje Leiligheten holder en god standard med stilrene overflater, store vindusflater og delikate fargevalg. Leiligheten har en gjennomgående planløsning. Badet ble oppusset i 2023, og kjøkkeninnredningen er fra 2020. I tillegg har leiligheten en flott balkong vendt ut mot en rolig bakgård. Boligen ligger sentralt og attraktivt til på Rosenhoff rett ved Torshovsdalen med kort vei til rekreasjonsmuligheter, servicetilbud og dagligvareforretninger.
Kort fortalt:
- Gjennomgående planløsning
- Bad i 2023
- Kjøkken fra 2020
- Balkong på 3,6 m²
- Mulighet for 3-roms*
- Internett, varmtvann og fyring inkl.
- Kjellerbod og loftsbod
- Flott felles bakgård
- Ingen dokumentavgift
- Parkeringskort med første mann til mølla
Salgsoppgaven beskriver vesentlig og lovpålagt informasjon om eiendommen
Se komplett salgsoppgaveNyttige lenker
Nærområdet
EiendomsMegler 1 Majorstuen
Prisstatistikk
Dynekilgata 19B
på annonsen
prisantydning per kvadratmeter
Prisfordeling
Pris per m² ligger 10 841 kr over snittet for leiligheter i Helsfyr - Sinsen.
Grafen viser antall leiligheter solgt i Helsfyr - Sinsen siste året fordelt på pris per m² - totalt 1 708 leiligheter
Antall boliger
Kvadratmeterpris tilsvarer prisantydning pluss fellesgjeld per kvadratmeter (p-rom eller BRA-i). Prisene i grafen er avrundet til nærmeste 1000 kr.
Annonseinformasjon
| FINN-kode | 421963558 |
|---|---|
| Sist endret | 27. okt. 2025 12:21 |
| Referanse | 3420250084 |
Annonsene kan være mangelfulle i forhold til lovpålagt opplysningsplikt. Før bindende avtale inngås oppfordres interessenter til å innhente komplett informasjon fra meglerforetaket, selger eller utleier.















































