Bildegalleri

EiendomsMegler 1 presenterer Bokfinkveien 6B - Del av tomannsbolig m/carport fra 2022 på Salhus
Brønnøysund
SALHUS | Strøken tomannsbolig fra 2022 | Carport m/elbillader | 3 soverom | Fredelig borettslag |
Prisantydning1 800 000 kr
Nøkkelinfo
- Boligtype
- Tomannsbolig
- Eieform
- Andel
- Soverom
- 3
- Internt bruksareal
- 102 m² (BRA-i)
- Bruksareal
- 112 m²
- Eksternt bruksareal
- 10 m² (BRA-e)
- Balkong/Terrasse
- 39 m² (TBA)
- Byggeår
- 2022
- Energimerking
- B - Oransje
- Rom
- 4
- Tomteareal
- 4 704 m² (eiet)
Fasiliteter
Barnevennlig
Balkong/Terrasse
Kabel-TV
Offentlig vann/kloakk
Parkett
Peis/Ildsted
Turterreng
Utsikt
Sentralt
Bredbåndstilknytning
Moderne
Rolig
Lademulighet
Balansert ventilasjon
Om boligen
Denne stilrene tomannsboligen byr på komfortabelt boareal over to flater og er det ideelle hjemmet for familien som søker ro, kvalitet og nærhet til alle fasiliteter. Boligen ble ferdigstilt i 2022 og holder gjennomgående høy standard, her er det bare å flytte rett inn!
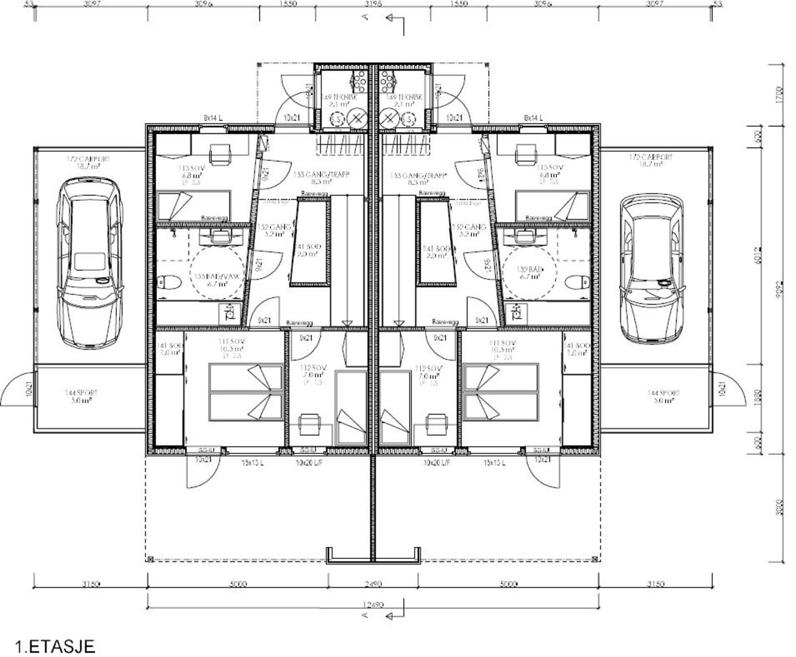
I 1. etasje kommer du inn til en romslig entré med flislagt gulv, videre finner du 3 store soverom hvorav det ene har egen utgang til en overbygd markterrasse. Badet holder god størrelse og er innredet med dusjkabinett, vegghengt toalett, servant med underskap og en stor vaskebenk med rikelig skapplass.
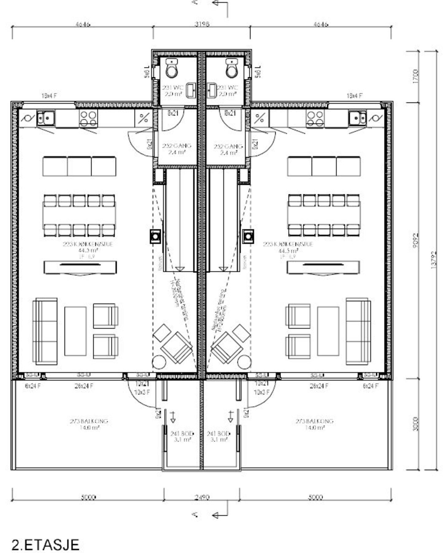
Opp i boligens 2. etasje møter du en luftig og åpen stue/kjøkkenløsning med god takhøyde og store vindusflater. Kjøkkenet har hvite slette fronter med integrerte hvitevarer fra Electrolux. Fra stuen er det utgang til en solrik veranda med tilhørende bod for oppbevaring av utemøblement.
I 1. etasje kommer du inn til en romslig entré med flislagt gulv, videre finner du 3 store soverom hvorav det ene har egen utgang til en overbygd markterrasse. Badet holder god størrelse og er innredet med dusjkabinett, vegghengt toalett, servant med underskap og en stor vaskebenk med rikelig skapplass.
Opp i boligens 2. etasje møter du en luftig og åpen stue/kjøkkenløsning med god takhøyde og store vindusflater. Kjøkkenet har hvite slette fronter med integrerte hvitevarer fra Electrolux. Fra stuen er det utgang til en solrik veranda med tilhørende bod for oppbevaring av utemøblement.
NB: Knappen for å vise hele beskrivelsen har kun en visuell effekt.
NB: Knappen for å vise hele beskrivelsen har kun en visuell effekt.
Salgsoppgaven beskriver vesentlig og lovpålagt informasjon om eiendommen
Se komplett salgsoppgaveNyttige lenker
Nærområdet
EiendomsMegler 1 Brønnøysund
Vi loser deg trygt gjennom hele boligsalget
Annonseinformasjon
| FINN-kode | 413405594 |
|---|---|
| Sist endret | 02. okt. 2025 15:43 |
| Referanse | 86250014 |
Annonsene kan være mangelfulle i forhold til lovpålagt opplysningsplikt. Før bindende avtale inngås oppfordres interessenter til å innhente komplett informasjon fra meglerforetaket, selger eller utleier.
























