


Velkommen til Øvre Gunnaråsen 59! Foto: Digit Media AS
Flott funkisbolig på Gunnaråsen, rett på oversiden av Sætre sentrum, som har Oslofjordens fineste skjærgård!
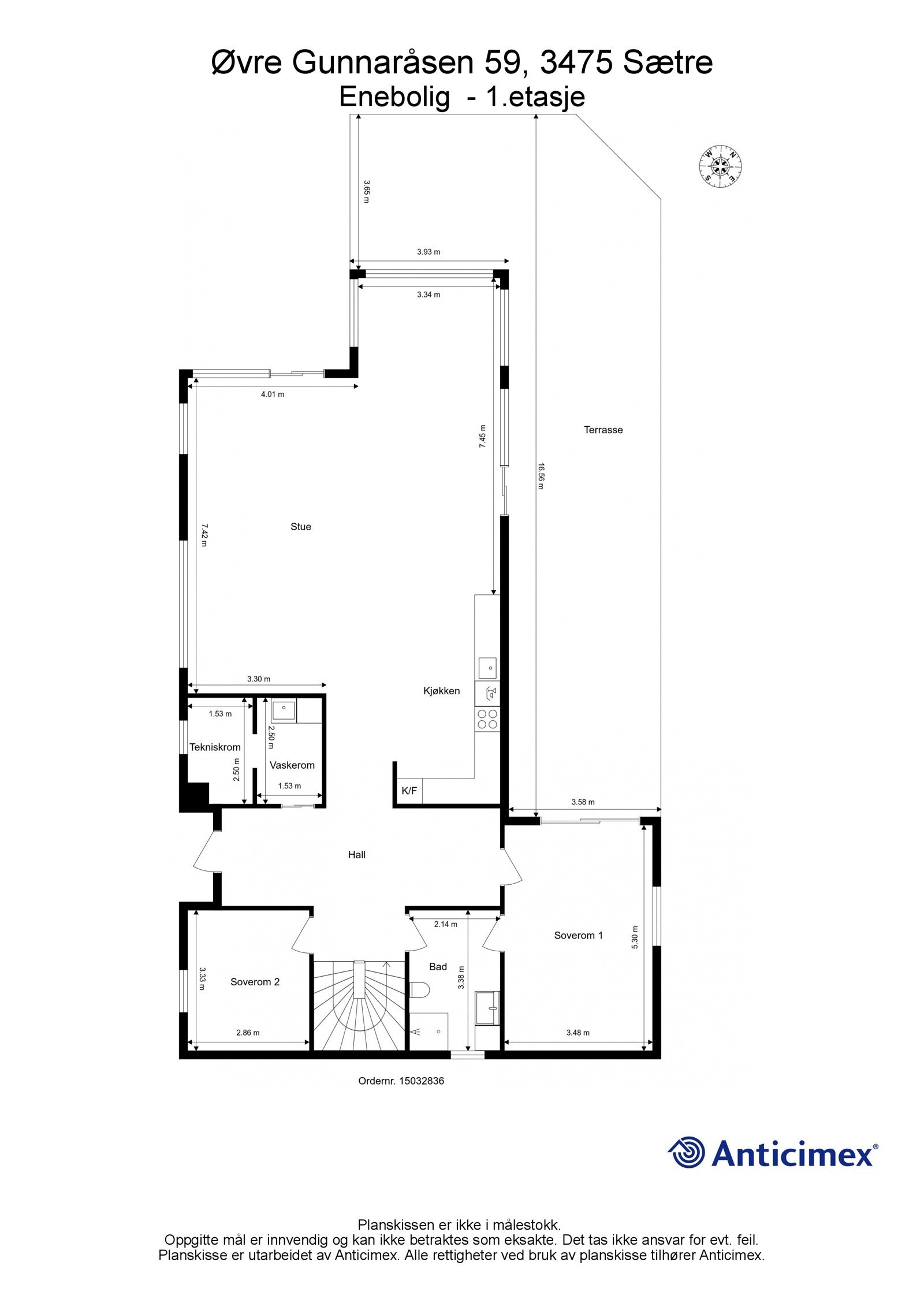
Boligen har høy standard, gjennomtenkte løsninger og mange muligheter. Her får du hele 342 m2 bolig fordelt på 3 plan, men likevel alt du trenger på hovedplanet, som er på 142 m2.
Deler av kjelleren er innredet med soverom, bad og badstue og denne delen passer perfekt til hjemmekontor, ungdomsstue, generasjonsdel eller hybel. Resten av kjelleren er på 80 m2, uinnredet og fullisolert med stort potensialet for utnyttelse!
* Tillatelse til oppføring av garasje
* Fantastisk utsikt og gode solforhold
* Blant annet 2 store stuer, 3 lekre bad, badstue og 4 store soverom
* Enstavs eikeparkett i alle gulv (1./2. etg)
* Sigdal kjøkken
* Elbillader
* Fibernett
* Ta kontakt hvis du ønsker båtplass!
Salgsoppgaven beskriver vesentlig og lovpålagt informasjon om eiendommen
Se komplett salgsoppgave
Øvre Gunnaråsen 59
på annonsen
prisantydning per kvadratmeter
Pris per m² ligger 3 053 kr under snittet for eneboliger i Hurum.
Grafen viser antall eneboliger solgt i Hurum siste året fordelt på pris per m² - totalt 97 eneboliger
Antall boliger
Kvadratmeterpris tilsvarer prisantydning pluss fellesgjeld per kvadratmeter (p-rom eller BRA-i). Prisene i grafen er avrundet til nærmeste 1000 kr.












Annonsene kan være mangelfulle i forhold til lovpålagt opplysningsplikt. Før bindende avtale inngås oppfordres interessenter til å innhente komplett informasjon fra meglerforetaket, selger eller utleier.