Bildegalleri

Velkommen til Plassen 16
Sætre
Fin og koselig enebolig med flott tomt - Påbygget og renovert i 2000 - Dbl. garasje - Hybel i u.etg
Prisantydning6 490 000 kr
Nøkkelinfo
- Boligtype
- Enebolig
- Eieform
- Selveier
- Soverom
- 3
- Internt bruksareal
- 217 m² (BRA-i)
- Bruksareal
- 267 m²
- Eksternt bruksareal
- 50 m² (BRA-e)
- Balkong/Terrasse
- 74 m² (TBA)
- Byggeår
- 1954
- Energimerking
- Tomteareal
- 1 235 m² (eiet)
Fasiliteter
Balkong/Terrasse
Barnevennlig
Garasje/P-plass
Hage
Offentlig vann/kloakk
Parkett
Peis/Ildsted
Rolig
Sentralt
Utsikt
Visning
For å delta på visning, ber vi om at du melder deg på innen kl 12 samme dag som visningen er. Da sikrer vi at du får nødvendig informasjon og at det er satt av tilstrekkelig med tid. Kontakt megler dersom annet tidspunkt ønskes. Husk å lese salgsoppgaven før visningen, så du stiller forberedt. NB. Visning utgår dersom det ikke er noen påmeldte.
Ønsker du kun å bli holdt orientert, kan du fra eiendommens hjemmeside få varsel om solgtpris, eller kontakte megler.
VisningspåmeldingOm boligen
Velkommen til Plassen 16!
Pen og romslig enebolig med god planløsning og et flott uteareal. Flott overbygget terrasse med Jacuzzi. God beliggenhet i Sætre med gangavstand til det du skulle trenge til dagliglivet i Sætre sentrum. Integrert dobbelgarasje og gode oppbevaringsmuligheter. Flat og flott hage og utsikt mot Øvredammen.
- Bygget i 1954, huset ble renovert og påbygget i 99/2000 - 2.etg påbygget helt i 2000
- Utvendig kledning, tak, drenering og vinduer fra 99/2000
- Vannbåren varme i u.etg og 1.etg
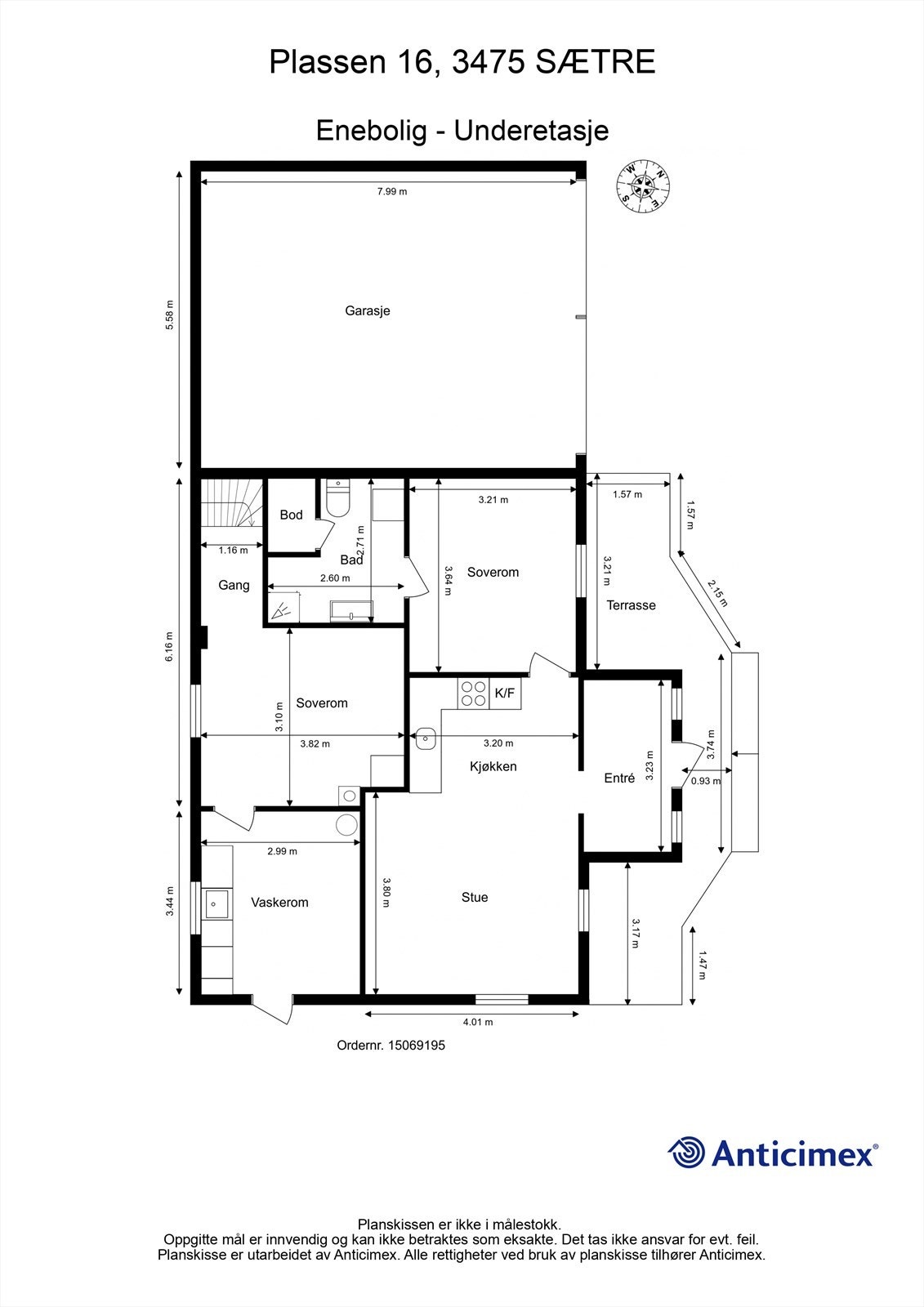
- Hybel i u.etg - utleid for 8.000,- + strøm
- Dobbel garasje
- Lettstelt, praktisk og pent opparbeidet tomt på 1235 kvm
- Flotte terrasser
- Kort vei til Oslofjorden
Dør mellom hybel og hovedhuset kan etableres så hele u.etg kan lett inkluderes inn i hovedenheten
Pen og romslig enebolig med god planløsning og et flott uteareal. Flott overbygget terrasse med Jacuzzi. God beliggenhet i Sætre med gangavstand til det du skulle trenge til dagliglivet i Sætre sentrum. Integrert dobbelgarasje og gode oppbevaringsmuligheter. Flat og flott hage og utsikt mot Øvredammen.
- Bygget i 1954, huset ble renovert og påbygget i 99/2000 - 2.etg påbygget helt i 2000
- Utvendig kledning, tak, drenering og vinduer fra 99/2000
- Vannbåren varme i u.etg og 1.etg
- Hybel i u.etg - utleid for 8.000,- + strøm
- Dobbel garasje
- Lettstelt, praktisk og pent opparbeidet tomt på 1235 kvm
- Flotte terrasser
- Kort vei til Oslofjorden
Dør mellom hybel og hovedhuset kan etableres så hele u.etg kan lett inkluderes inn i hovedenheten
NB: Knappen for å vise hele beskrivelsen har kun en visuell effekt.
NB: Knappen for å vise hele beskrivelsen har kun en visuell effekt.
Salgsoppgaven beskriver vesentlig og lovpålagt informasjon om eiendommen
Se komplett salgsoppgaveNyttige lenker
Nærområdet
Krogsveen Røyken
Verdien av en god megler.
Annonseinformasjon
| FINN-kode | 406768168 |
|---|---|
| Sist endret | 01. apr. 2026 07:23 |
| Referanse | KR16.24131 |
Annonsene kan være mangelfulle i forhold til lovpålagt opplysningsplikt. Før bindende avtale inngås oppfordres interessenter til å innhente komplett informasjon fra meglerforetaket, selger eller utleier.











































