Bildegalleri

DNB Eiendom v/Gina Granli (tlf. 99274052) presenterer Riihimækiveien 33!
Solgt
Skjetten
Attraktiv & innholdsrik 4-roms m/garasjeplass og innglasset balkong. Vedtatt våtromsrehabilitering. Populær beliggenhet!
Prisantydning3 800 000 kr
Nøkkelinfo
- Boligtype
- Leilighet
- Eieform
- Andel
- Soverom
- 3
- Internt bruksareal
- 96 m² (BRA-i)
- Bruksareal
- 111 m²
- Eksternt bruksareal
- 1 m² (BRA-e)
- Innglasset balkong
- 14 m² (BRA-b)
- Etasje
- 2
- Byggeår
- 1972
- Energimerking
- G - Rød
- Rom
- 4
- Tomteareal
- 12 949 m² (eiet)
Fasiliteter
Balkong/Terrasse
Barnevennlig
Bredbåndstilknytning
Garasje/P-plass
Kabel-TV
Offentlig vann/kloakk
Parkett
Rolig
Sentralt
Vaktmester-/vektertjeneste
Lademulighet
Om boligen
Velkommen til Riihimækiveien 33! Dette er en lys og romslig 4-roms andelsleilighet sentralt på Skjetten.
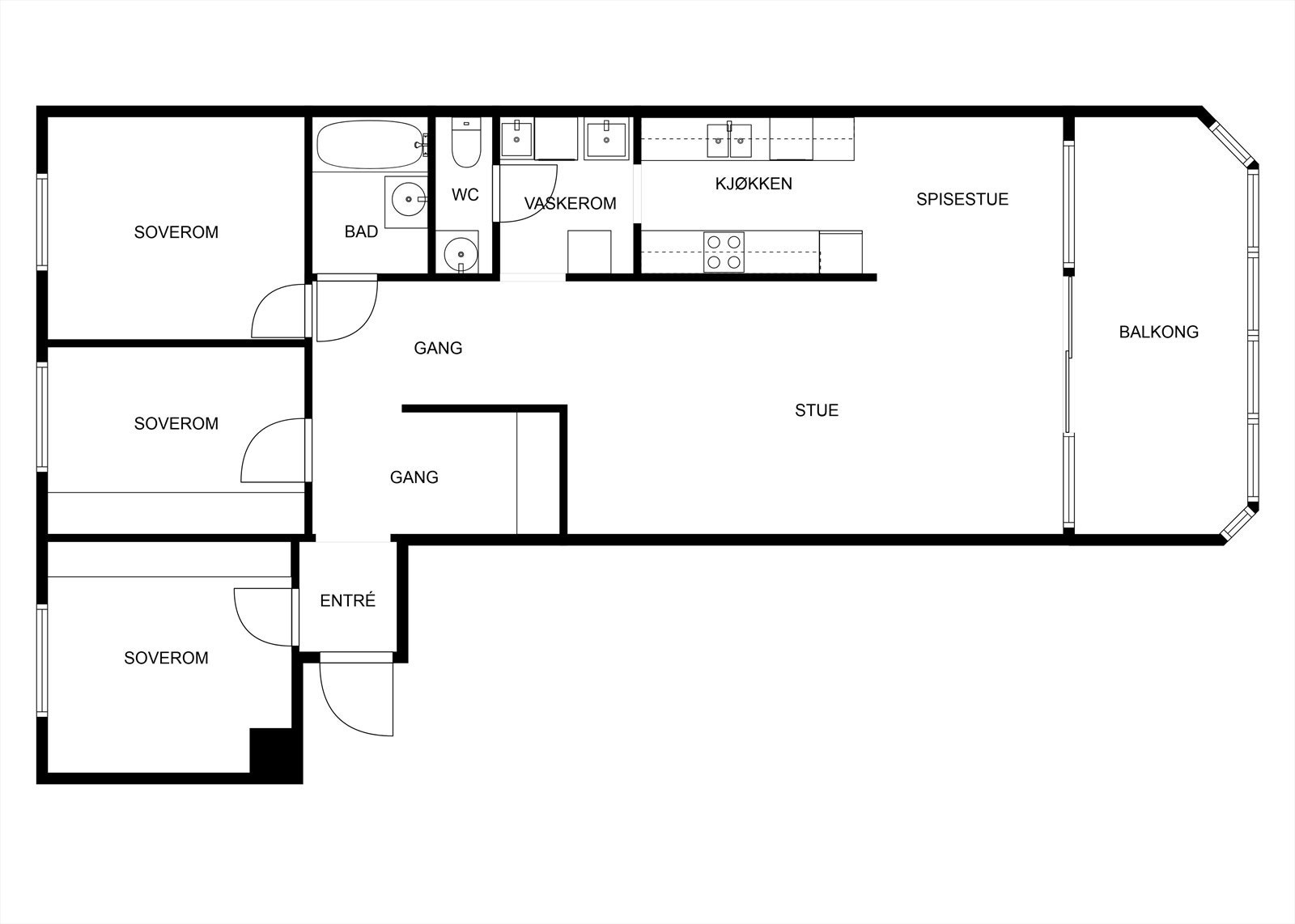
Leiligheten ligger i 2.etasje med trappeadkomst. God planløsning med entré, bad, toalettrom, vaskerom, stue, kjøkken og 3 soverom. Fra stuen er det utgang til en flott innglasset balkong på ca. 13 kvm med lite innsyn. Leiligheten disponerer garasjeplass, og har en bod i kjeller samt låsbart skap. Våtrommene skal totalrenoveres i 2025/2026. Les mer i salgsoppgaven angående dette.
Borettslaget har et stort og flott friareal med store plenområder.
Leiligheten har en attraktiv beliggenhet med nærhet til Lillestrøm og Oslo med flere bussavganger dit med offentlig kommunikasjon. Fra boligen er det også kort vei til skoler, barnehager og butikker.
Leiligheten ligger i 2.etasje med trappeadkomst. God planløsning med entré, bad, toalettrom, vaskerom, stue, kjøkken og 3 soverom. Fra stuen er det utgang til en flott innglasset balkong på ca. 13 kvm med lite innsyn. Leiligheten disponerer garasjeplass, og har en bod i kjeller samt låsbart skap. Våtrommene skal totalrenoveres i 2025/2026. Les mer i salgsoppgaven angående dette.
Borettslaget har et stort og flott friareal med store plenområder.
Leiligheten har en attraktiv beliggenhet med nærhet til Lillestrøm og Oslo med flere bussavganger dit med offentlig kommunikasjon. Fra boligen er det også kort vei til skoler, barnehager og butikker.
NB: Knappen for å vise hele beskrivelsen har kun en visuell effekt.
NB: Knappen for å vise hele beskrivelsen har kun en visuell effekt.
Salgsoppgaven beskriver vesentlig og lovpålagt informasjon om eiendommen
Se komplett salgsoppgaveNyttige lenker
Nærområdet
DNB Eiendom AS
Fra hjem til hjem
Prisstatistikk
Riihimækiveien 33
1 712 klikk
på annonsen
42 139 kr
prisantydning per kvadratmeter
Prisfordeling
Pris per m² ligger 29 861 kr under snittet for leiligheter i Skedsmo.
Grafen viser antall leiligheter solgt i Skedsmo siste året fordelt på pris per m² - totalt 1 007 leiligheter
Antall boliger
Kvadratmeterpris tilsvarer prisantydning pluss fellesgjeld per kvadratmeter (p-rom eller BRA-i). Prisene i grafen er avrundet til nærmeste 1000 kr.
Annonseinformasjon
| FINN-kode | 403133239 |
|---|---|
| Sist endret | 20. juni 2025 10:50 |
| Referanse | 303250167 |
Annonsene kan være mangelfulle i forhold til lovpålagt opplysningsplikt. Før bindende avtale inngås oppfordres interessenter til å innhente komplett informasjon fra meglerforetaket, selger eller utleier.
































