Bildegalleri

Drømmer du om et moderne hjem med stil og komfort, der hver detalj er nøye gjennomtenkt?
Drømmebolig med unik beliggenhet på Tranbergtoppen!
Nøkkelinfo
- Boligtype
- Enebolig
- Eieform
- Eier (Selveier)
- Soverom
- 5
- Internt bruksareal
- 243 m² (BRA-i)
- Bruksareal
- 243 m²
- Byggeår
- 2026
- Tomteareal
- 863 m² (eiet)
Visning
Beskrivelse av prosjektet
Drømmer du om et moderne hjem med stil og komfort, der hver detalj er nøye gjennomtenkt? Da er denne unike eneboligen i Tranberglia 18B på Gjøvik perfekt for deg!
Moderne og funksjonelle løsninger i en idyllisk setting:
Med smarte og arealeffektive løsninger fordelt over to plan, er denne boligen skapt for å gi deg den ultimate komfort. Fra første steg inn i entreen møtes du av en lys og innbydende atmosfære, og den romslige garderoben gir god plass til oppbevaring av klær og sko. Det åpne stue- og kjøkkenområdet er ideelt for både rolige familiestunder og hyggelige sammenkomster. Store vindusflater slipper inn mengder av naturlig lys og gir en fantastisk utsikt over byen og Mjøsa - en uslåelig ramme for hverdagslivet!
Et hjem med rom for alle - og litt til:
Hovedetasjen har et eksklusivt master bedroom med walk-in-closet og eget bad - en privat oase. I tillegg rommer underetasjen hele fire soverom, et oppholdsrom, samt en ekstra tv-stue for ungdom eller gjester, to ekstra bad og et eget vaskerom. Denne boligen er virkelig laget for å kunne samle hele familien under samme tak, samtidig som alle får sitt eget rom.
Som en ekstra bonus kan sparom med svømmebasseng og badstue velges som tilvalg, med foldbare dører rett ut til hagen. Her kan du få følelsen av luksus hjemme, året rundt. Boligen har også en fleksibel planløsning med mulighet for utleie i underetasjen perfekt for deg som ønsker ekstra inntekt eller en egen sone for gjester.
Alt du trenger for en enkel hverdag:
Til boligen hører også en dobbelgarasje og en utvendig bod som gir god plass til oppbevaring av alt fra biler og sportsutstyr til hageverktøy. Her kan du holde hjemmet ryddig og organisert.
Ta steget mot ditt nye hjem i dag:
Denne eneboligen i Tranberglia 18B er en sjelden mulighet for deg som ønsker både stil og funksjonalitet i et etablert og solrikt boligområde. Ikke gå glipp av sjansen til å oppleve denne perlen på Gjøvik - kontakt oss i dag for en visning og la drømmehjemmet bli ditt!
Det er også mulig å velge andre husmodeller fra www.systemhus.no
Prosjektet / Selskapet / Eiendommen
Eiendommen ligger i Tranberglia 18b, 2819 Gjøvik.
Gnr. 76 og bnr. 176 i Gjøvik kommune.
Forventet fremdrift
Forventet byggetid er ca . 11 mnd.
Byggestart når kommunen gir igangsettingstillatelse.
Det er Eirik Topp som er hjemmelshaver til tomten. Det er Systemprosjekt Innlandet som er utbygger og står for gjennomføring av prosjektet. Tomten overskjøtes til utbygger før byggestart.
Beliggenhet
Velkommen til en enestående eiendom på Tranbergtoppen, øverst i det ettertraktede villaområdet Tranberglia! Her får du muligheten til å bo i et veletablert og eksklusivt nabolag, omgitt av store eiendommer som sikrer både romslighet og privatliv.
Eiendommen ligger perfekt plassert i et solrikt område og byr på en panoramautsikt som tar pusten fra deg - se utover byen, vakre Mjøsa og landskapet rundt. Her kan du nyte stillheten og naturens skjønnhet, samtidig som du har alle nødvendige fasiliteter rett i nærheten.
En unik kombinasjon av natur og byliv:
Med kort vei til marka kan du utforske milevis av skiløyper og flotte turstier året rundt. Det er også kort avstand til attraktive fritidstilbud som friluftsbad, alpinanlegg og en rekke idretts- og aktivitetsmuligheter i nordre bydel. Barnefamilier vil sette pris på nærheten til skoler og andre viktige tjenester.
Gjøvik sentrum er kun en kort kjøretur unna og tilbyr en hyggelig atmosfære med sjarmerende bygater, kaféer og restauranter. Her finner du også kjøpesenteret CC Gjøvik, hvor du kan handle alt på ett sted. For de som liker å utforske, er Mjøsas bredder et fantastisk utgangspunkt for naturopplevelser, med turstier, badeplasser og båtliv.
Dette er boligen for deg som ønsker det beste av begge verdener - ro, natur og komfort kombinert med enkel tilgang til urbane tilbud. Tranbergtoppen er mer enn bare en adresse; det er et hjem med livskvalitet i fokus.
Kontakt oss i dag for en visning - her kan drømmen om det perfekte hjemmet bli virkelighet!
Adkomst
Det vil bli skiltet med Partners Eiendomsmegling ved visning.
Areal
Boligens totale areal er 243 kvm.
BRA-i: 243 kvm
BRA-e:
BRA-b:
Underetasje/kjeller:
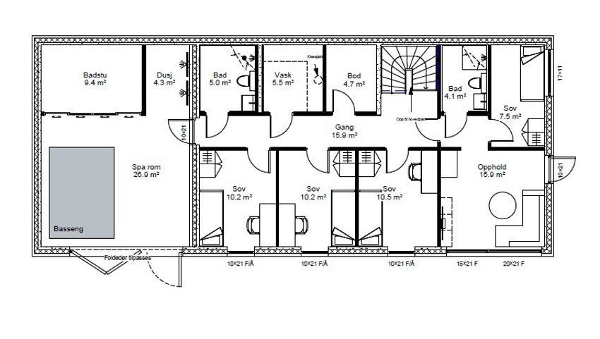
BRA-i: 137,2 m². Følgende areal inngår i BRA-i: Spa-rom, badstue, 2 bad, vaskerom, 4 soverom, oppholdsrom og bod.
BRA-e: 0 m²
BRA-b: 0 m²
Første etasje:
BRA-i: 105,8 m². Følgende areal inngår i BRA-i: Entre, stue/kjøkken, soverom, garderobe, bad, garderobe 2, wc og vinterhage / stue.
BRA-e: 0 m²
BRA-b: 0 m²
Garasje:
BRA-e: 40,5 m²
BRA-i: Internt bruksareal. BRA-e: Eksternt bruksareal. Dersom dette arealet befinner seg i sameie, borettslag, aksjesalg e.l. vil normalt sett disse arealene ikke være eid av boligen, de er kun disponert på salgstidspunktet. Arealet kan f. eks. omrokeres av styret i ettertid. BRA-b: Innglasset balkong. GUA: Gulvareal. ALH: Areal med lav himlingshøyde.
Se vedlagte tilstandsrapport for nærmere beskrivelse av arealene. Arealene er oppmålt av bygningssakkyndig og ikke kontrollert/oppmålt av eiendomsmegler. Arealene er oppgitt iht NS 3940 Areal- og volumberegninger av bygninger.
Tomt / Tomteareal
Eiet tomt på ca. 863 kvm.
Innkjøring frem til garasje og innkjøringen blir gruset.
Tretrapp ned til hage som fylles opp, blankt glassrekkverk/gjerde på fremside hus.
Ferdigplen legges i hage forran og på siden av huset når forholdene tilsier at det kan legges.
Parkering
Dobbelgarasje med 2 biloppstillinsgplasser.
Ellers parkering på gruset gårdsplass.
Boder
Sportsbod ifm. garasjen på 5,9 kvm.
Internett / TV
Kjøper er selv ansvarlig for bestilling og kostnad forbundet med dette.
Ventilasjon
Balansert ventilasjon fra flexit.
Tilvalg
Kjøper har mulighet til å få utført endrings- og tilleggsarbeider etter særskilt avtale. Alle endrings- eller tilleggsarbeider skal avtales skriftlig mellom partene og i avtalen skal det redegjøre for pris og ev. fristforlengelse som følge av endringene. Kjøperes rett til å få utført endrings- eller tilleggsarbeid er begrenset til 15 % av kjøpesummen. For nærmere informasjon, ta kontakt med megler.
Partene kan kreve justering av det avtalte vederlag i henhold til bustadoppføringslovas regler om endringer og tilleggsarbeid, jf. bustadoppføringslova. § 9 og § 42. Selger kan kreve tilleggsvederlag for nødvendige kostnader som kommer av forhold på kjøpers side.
Utenomhusarealer
Utvendige arealer vil kunne bli ferdigstilt, og overtakelsesforretning på disse arealene avholdt, etter overtakelse av boligen.
Dersom de utvendige arealene ikke er ferdigstilt ved overtakelse av boligen, kan kjøper holde tilbake en forholdsmessig del av kjøpesummen.
Ev. gjenstående arbeider skal utføres så snart arbeidet praktisk kan utføres av hensyn til årstid. Selger er forpliktet til å ferdigstille arbeidet og fremskaffe ferdigattest innen rimelig tid og senest før den midlertidige brukstillatelsen er utløpt.
Pengeheftelser
På eiendommen kan det være tinglyst erklæringer/avtaler som for eksempel rett til kommunen til å anlegge vann- og kloakkledninger inkl. reparasjon av disse, bestemmelser om bebyggelsen, gjerder, vei og adkomstrettigheter. Disse erklæringene/avtalene vil følge eiendommen ved salg, og kan ikke slettes.
Vei/Vann/Avløp
Adkomst til eiendommen fra offentlig veg.
Eiendommen blit tilknyttet kommunalt vann og avløp.
Formuesverdi
Formuesverdi fastsettes av skatteetaten etter ferdigstillelse. Formuesverdien vil avhenge av bruken av boligen etter beregningsmodell som skiller mellom "primærbolig" (der boligeieren er folkeregisteret bosatt) og "sekundærbolig".
Når boligen er overtatt, kan man gå inn på skatteetatens boligkalkulator å få beregnet formuesverdien. Ta kontakt med Skatteetaten ved spørsmål vedrørende dette.
Reguleringsmessige forhold
Eiendommen ligger under kommuneplanens arealdel for 2020-2032 med følgende formål:
Nåværende boligbebyggelse
Vedtatt: 29.10.2020
Endringer godkjent 14. september 2023.
Det foreligger ingen ikke godkjente planforslag til forberedelse / behandling hos Gjøik kommune pr. 21.10.2024.
Offentlige forbehold
Kjøper aksepterer at det på eiendommen kan påheftes servitutter/erklæringer som måtte bli påkrevd av offentlig myndighet, deriblant erklæring som regulerer drift og vedlikehold av fellesområder, og drift og vedlikehold av energi nettverk m.m.
Betalingsbetingelser/finansiering
Hele kjøpesummen sammen med omkostninger skal innbetales til overtakelse, forutsatt at selger har stilt lovpålagt garanti etter bustadoppføringslova § 12. Samtlige beløp skal innbetales til meglerforetakets klientkonto. Innbetaling skal kun skje fra kjøper og/eller kjøpers bankforbindelse. Eventuelt tilvalg faktureres direkte fra utbygger til kjøper.
De som ønsker å kjøpe boligen må før innlevering av tegningsskjema/kjøpebekreftelse, ha hatt kontakt med en finansieringsinstitusjon som kan bekrefte finansiering på innleveringstidspunktet.
Oppgjør
Betaling for ev. endrings- og/eller tilleggsarbeider bestilt gjennom selger, faktureres direkte fra selger når vedkommende endrings- og/eller tilleggsarbeid er utført. Dersom forfall på faktura er forut for overtakelse, må selger stille garanti i henhold til bustadoppføringslova § 47.
Før noen del av kjøpesum blir utbetalt selger må hjemmel til boligen være overført kjøper, jf. bustad
Salgsbetingelser
Ved salg til forbruker selges boligen iht. bustadoppføringslova.
Prosjektet retter seg mot forbrukere som ønsker å erverve bolig til eget bruk. Bustadoppføringslova kommer ikke til anvendelse der kjøper anses som profesjonell/investor. Dersom kjøper ikke er forbruker, kan det avtales at eiendommen likevel selges etter bustadoppføringslova. Dersom eiendommen er ferdigstilt ved budaksept reguleres handelen av avhendingslova (i slike tilfeller gjelder ny salgsoppgave).
Det forutsettes at hjemmelsdokument tinglyses på ny eier.
Avbestilling
Kjøper kan avbestille ytelsen eller deler av denne, jf. bustadoppføringslova §§ 52-54. Ved avbestilling før igangsettingstillatelse er innvilget påløper et avbestillingsgebyr på kr. 30.000,-. Ved avbestilling etter innvilgelse av igangsettingstillatelse påløper et avbestillingsgebyr på 10 % av total kontraktssum (inkl. mva.).
Bustadoppføringslova
Bustadoppføringslova av 13. juni 1997 nr. 43. Bustadoppføringslova kommer ikke til anvendelse der kjøper anses som profesjonell/investor. I slike tilfeller vil handelen i hovedsak reguleres av Lov om avhending av fast eiendom av 3. juli 1992 nr. 93. og ulovfestet entrepriserett.
Kjøpsbetingelser
Kjøpsbetingelsene regulerer betingelsene for kjøp av bolig. Avtale anses inngått når kjøper har levert meglerforetaket bud/skriftlig bindende bekreftelse på kjøp, og aksept er meddelt.
Akseptbrev vil da snarlig bli utstedt fra meglerforetaket. Avtalen inngås på bakgrunn av opplysninger i salgsoppgave med vedlegg og eventuelle forbehold i bud og kjøpsbetingelser fra selger. Salgsoppgaven med tilhørende vedlegg forutsettes lest og akseptert av kjøper. Kjøper og selger vil senere inngå fullstendig kjøpekontrakt med endelige vedlegg. Kjøper aksepterer at detaljbestemmelser først kan bli avklart i kjøpekontrakt. Inneholder salgsoppgave og kontraktsdokumenter bestemmelser som strider mot hverandre, gjelder yngre bestemmelser foran eldre, spesielle foran generelle, og bestemmelser utarbeidet særskilt for handelen, foran standardiserte bestemmelser.
Kjøper har selv ansvaret for å sette seg inn i salgsoppgave med vedlegg og annen dokumentasjon som kjøper har fått tilgang til. Dersom utfyllende/supplerende opplysninger er ønskelig eller noe er uklart, bes kjøper henvende seg til meglerforetaket før bindende avtale inngås. Kjøper har ingen rett til å reklamere på grunnlag av forhold som kjøper har blitt gjort oppmerksom på, eller som kjøper på tross av oppfordring har unnlatt å sette seg inn i.
Det gjøres oppmerksom på at illustrasjoner i salgsoppgave og på nett ikke er bindende for boligens detaljutforming slik som farger, materialer, innredninger, mv. Opplysninger gitt i salgsoppgaven kan fravikes dersom selger anser det nødvendig eller ønskelig, dog slik at endringene ikke skal ha innvirkning på den angitte standard. Det samme gjelder i forhold til situasjonsplanens og utomhusplanens angivelse av detaljer. Alle illustrasjoner, skisser, "møblerte" plantegninger m.m. er ment å danne et inntrykk av den ferdige boligen, og kan inneholde materiell og vise detaljer som ikke medfølger i handelen. Slike avvik kan ikke påberopes som mangel fra kjøpers side. Videre kan illustrasjonene være en kombinasjon av 3D-illustrasjoner og fotomontasje, hvor utsikt/beliggenhet etc. ikke nødvendigvis stemmer. Det gjøres derfor oppmerksom på at bebyggelse og trær på naboeiendommer ikke nødvendigvis er korrekt illustrert.
Dersom det er avvik mellom tegninger i salgs- og nettpresentasjon og leveransebeskrivelse og romskjema, er det leveransebeskrivelse og romskjema som gjelder og omfanget av leveransen er begrenset til denne. Prosjektets standard vil fremkomme av leveransebeskrivelsen, dette uavhengig av ev. uttrykk i prospekt og annonsering som "god standard" etc.
Endringer i lov eller forskrift eller nye offentligrettslige krav eller vedtak med hjemmel i lov eller forskrift som gjelder for selgerens ytelse, anses som kjøperens forhold og kostnad dersom selgeren ved avtaleinngåelsen ikke burde ha regnet med endringene. Herunder innbefattes endringer i offentlige myndigheters praktisering av lov- eller forskriftsverk som påfører selgeren uventede. Dersom de nevnte endringer medfører økte kostnader for selger vil dette medføre en tilsvarende økning i det avtalte vederlaget for kjøper. Selger skal uten ugrunnet opphold varsle kjøperen om endringene og de konsekvenser dette innebærer for kjøperen.
Dersom kjøper har overtatt, hvor overskjøting er forsinket, gjøres kjøper oppmerksom på hans bo- og eiertid (skatteloven) ikke opparbeides før skjøte er tinglyst (gjelder problemstilling rundt skattefrihet ved salg av boligen etter 1 år).
Kjøpers undersøkelsesplikt
Kjøper har selv ansvaret for å sette seg inn i salgsoppgave, reguleringsplaner, byggebeskrivelse og annen dokumentasjon som kjøper har fått tilgang til. Dersom utfyllende/supplerende opplysninger er ønskelig, bes kjøper henvende seg til meglerforetaket. Kjøper har ingen rett til å reklamere på grunnlag av forhold som kjøper er blitt gjort oppmerksom på, eller som kjøper på tross av oppfordring har unnlatt å sette seg inn i.
Kjøper oppfordres til å ta kontakt med meglerforetaket dersom noe er uklart, og det presiseres at det er viktig at slike avklaringer finner sted før bindende avtale om kjøp inngås.
Reklamasjon/krav om mangler før overtakelse
Dersom kjøper blir gjort oppmerksom på at det foreligger en mulig mangel før overtakelse, må det reklameres på dette. Mangelen må påberopes innen rimelig tid etter at kjøperen oppdaget eller burde ha oppdaget mangelen. Det gjøres oppmerksom på at det påhviler kjøper en plikt om snarlig varsling om reklamasjonskrav, regnet fra tidspunkt for når kjøper har blitt oppmerksom på mulig mangel - selv om overtakelse ikke har funnet sted. Sen varsling om eventuelle reklamasjoner/krav kan medføre bortfall av reklamasjonsrett, jf. foreldelse.
Reklamasjon etter overtakelse, retting av mangler
Dersom kjøper etter overtakelsen oppdager og vil gjøre gjeldende at det foreligger en mangel, må det reklameres skriftlig på dette. Mangelen må påberopes innen rimelig tid etter at kjøperen oppdaget eller burde ha oppdaget mangelen.
Forbruker må til enhver tid gi selger mulighet for utbedring. Dersom selger etter 14 dagers varsel hindres i å utføre utbedringsarbeidene innen normal arbeidstid (07.00 til 16.30), vil forbrukeren kunne miste sin rett til utbedring. Forbruker har ikke anledning til å sette bort utbedringsarbeidet til andre og kreve kostnadene dekket av selger, med mindre selger unnlater å rette mangler innen rimelig tid, og heller ikke har gjort dette etter at forbruker skriftlig har varslet, med 3 ukers varsel, om at arbeidet vil bli satt bort til andre.
Spesielle forhold i byggeperioden
Kjøpere har ikke anledning til å besøke byggeplassen i byggeperioden uten avtale, og ved avtale kun i følge av representant fra selger. Dette på grunn av selgers ansvar og forsikring for bygg og personer som oppholder seg på anleggsplassen.
Forsinkelse kjøper
For den del av kjøpesummen som ikke måtte være betalt til meglerforetaket i rett tid, svarer kjøper lovens forsinkelsesrente til selger. Påløpte forsinkelsesrenter avregnes fra avtalt overtakelse/forfall til betaling finner sted. Denne bestemmelse gir ikke kjøper rett til å forlenge betalingsfristen utover de frister som er avtalt.
Ved vesentlig forsinkelse med å innbetale hele kjøpesummen og omkostningene, vil selger være berettiget til å kreve erstatning, heve kjøpet mm. (jf. buofl. kapittel VII). Partene er enige om at én måned anses som vesentlig mislighold.
Forsinkelser
Dersom oppgitt byggetid (inkludert ev. tidsforlengelse) overskrides, vil forsinkelse være å regne fra dette tidspunkt, med unntak som nevnt under.
Selger skal overholde frister som er avtalte for overtakelse, og skal legge opp til en fremdrift som er tilpasset kjøpers forventninger, jf. buofl. § 10.
Selger har rett til tilleggsfrister uten kompensasjon til kjøper etter reglene i buofl. § 11.
Forhold som gjelder er:
- Dersom kjøper krever endringer eller tilleggsarbeid som forsinker arbeidet/overtakelse.
- Dersom kjøper, eller noen kjøper svarer for, ikke overholder kontraktsavtale, eller at arbeidet blir forsinket pga. noe kjøperen er ansvarlig for.
- Dersom det oppstår forsinkelser som er utenfor selger/entreprenørs kontroll, og at det ikke var rimelig å forvente at selger/entreprenør kunne ha regnet med denne forsinkelsen på avtaletidspunktet, eller at selger/ entreprenør ikke har mulighet til å unngå forsinkelsen (f.eks. force majeure, streik, ekstreme klimatiske forhold o.l.).
Overtakelsen er å regne som forsinket, dersom overtakelsen ikke kan gjennomføres til den tid kjøperen har rett til å kreve etter buofl. § 10 og § 11 som nevnt over. Det samme gjelder dersom arbeidet, eller deler av arbeidet ikke er fullført eller hjemmelsoverføring ikke skjer til den tid kjøperen har rett til å kreve.
Dersom overtakelsen er forsinket, kan kjøperen kreve:
- Dagmulkt.
- Heve avtalen.
- Kreve erstatning.
- Tilbakeholde deler av kjøpesum.
Vilkår for de ulike alternativene fremgår av buofl. §§ 18, 19, 20 og 22.
Kjøper anmodes til å sette seg inn i disse bestemmelsene, og rådføre seg med meglerforetaket dersom noe skulle være uklart. Kjøper oppfordres spesielt om å tilpasse dette forhold ved eventuelt salg av nåværende bolig, da bygningsforsikringen til selger ikke dekker eventuell erstatningsbolig for kjøper ved slik forsinkelse.
Finansiering
Vi har løpende kontakt med finansinstitusjoner som kan tilby lån med konkurransedyktige betingelser. Hvis ønskelig formidler vi gjerne kontakt.
Budregler
Boligene selges til fast pris. Bindende kjøpsbekreftelse/budskjema inngås hos megler. Selger står fritt til å akseptere eller avslå ethvert bud, herunder bestemme om de vil akseptere salg til selskaper samt om de vil akseptere salg av flere leiligheter til samme kjøper. Merk at eierseksjonsloven ikke gir anledning til at mer enn to seksjoner eies av en og samme person.
Oppvarming
Oppvarming:
- Peisovn.
- Gulvvarme: Alle rom med flis får gulvvarme med kabler. Alle rom med laminat utenom soverom får gulvvarme med folie. Gulvvarme lagt i betong i u-etasje i alle rom utenom soverom.
Beskrivelse
Byggemåte:
Funkis hus - valgfri beis/malig/farge. Utvendig stående trekledning. Mur og murpuss utvendig u-etasje.
Dobbelgarasje u-isolert med 1 stor dobbelport inkl - samme farge som huset.
Sveiset takmembran med taknedløp.
Tak blir isolert med 40cm.
Vegger blir isolert med 25cm.
Thermo mur og betong blir støpt i u-etasje.
Svarte vinduer fra Natre eller tilsvarende.
Hvite slette innvendige dører fra Bygg1.
Svart/hvit ytterdør type Tind 04 eller tilsvarende fra Bygg1.
Veranda får imp-treplatting med valgfri farge på pergola bygget av tre.
Standard:
Kjøkken:
Kjøkkenpakke fra JKE/Nettoline til verdi 300.000,- ink montering. Tegnes etter eget ønske sammen med 4x48 interiørhuset på Gjøvik.
Bad:
Fliser på vegg og gulv i alle bad og spa rom til verdi 1200kr pr m2 med flis. Velges fra 4x48 flisekompaniet eller fagflis.
Gjøvik varme og sanitær har leveranse på bad:
- Baderomsinnredning: Innredningsmøbel hovedbad oppe 100-120cm møbel til verdi 25.000.
- Vegghengt hvit toalett.
- 90x90 svart dusjdører med svart regndusj.
Gjestetoalett hovedetasje:
- Vegghengt hvit toalett.
- 60-80cm baderomsmøbel verdi 6000,-
Bad u.etg:
- Begge bad nede får vegghengt hvit toalett.
- 60-80cm baderomsmøbel verdi 6000kr pr møbel.
- 80 eller 90 cm dusjdører svart, svart regndusj.
Gulv og vegger:
- Alle rom uten flis får BerryAlloc grandmajestic laminat med valgfri farge på gulv.
- Alle rom sparkles og males med valgfri farger, listefritt.
Oppvarming:
- Valgfri peisovn til verdi 80.000 inkludert
- Gulvvarme: Alle rom med flis får gulvvarme med kabler. Alle rom med laminat utenom soverom får gulvvarme med folie. Gulvvarme lagt i betong i u-etasje i alle rom utenom soverom.
Elektro:
- 40stk spottere med dimmer inkludert, ellers standard lys og lysbryter. Flate stikk kontakter ihht leveranse fra elektrikker.
Ventilasjon:
- Balansert ventilasjon fra flexit.
Garderobeskap og panelovner følger ikke med.
Leveranser utføres i henhold til gjeldende forskrifter. Teknisk forskrift TEK'17 er gjeldende for dette prosjektet. Der ikke annet fremgår av kontrakt, beskrivelser eller tegninger, gjelder Norsk Standard NS 3420 normalkrav til toleranser for ferdige overflater i bygninger, ref. fellesbestemmelser del 1.
Endringsarbeider
Endringsarbeid kan kun kreves for en verdi av inntil 15 % av kjøpesummen.Eventuelle tilvalg faktureres direkte fra entreprenør. Det vil utarbeides egen tilvalgsliste med priser. Muligheter for tilvalg vil være avhengig av hvor langt man er kommet i byggeprosessen
Lov om hvitvasking
Eiendomsmeglingsforetak plikter etter lov om hvitvasking å gjennomføre kontrollhandlinger knyttet til kjøper og selgers identitet og forhold knyttet til gjennomføringen av handelen. Dette omfatter også opplysninger om kundeforholdets formål og tilsikrede art. For kjøper må kontroll av legitimasjon skje senest ved inngåelse av kontrakt. Signering med bankID er regnet som gyldig legitimasjonskontroll. Ved oppdrag hvor juridiske personer (selskap) er part må eiendomsmegler også gjennomføre kontroll av hvilke fysiske personer som kontrollerer selskapet (reelle rettighetshavere). Dersom megler ikke klarer å gjennomføre pålagte kundetiltak må megler avvise kunden og oppdraget. Megler har også plikt å melde forhold som ikke er avklart og fremstår som mistenkelige til Økokrim. Megler kan også i enkelte tilfeller har plikt til å stanse gjennomføringen av handelen.
Eiendomsmegler plikter å gjennomføre ytterligere undersøkelser knyttet til handelen basert på kjøpers egenkapital eller andre forhold knyttet til kjøper. Kjøper oppfordres til å innbetale den delen av kjøpesummen som er egenkapital i en overføring fra egen bankkonto i norsk bank.
Adresse og matrikkel
Tranberglia 18B, 2819, Gjøvik, Gnr. 76 bnr. 176 i Gjøvik kommune
Eier
Systemprosjekt innlandet as v. Dag Alexander Olsen
Oppdragsnummer
6-24-0394
Meglers vederlag
Innhenting opplysninger (Kr.3 000)
Gebyr for utsatt betaling (Kr.1 900)
Panteattest selger (Kr.125)
Utlegg XR Visuell kommunikasjon fakturanr. 41268 (Kr.87 625)
Utlegg XR Visuell Kommunikasjon AS fakturanr. 41721 (banner, design og frakt) (Kr.3 568,75)
Markedspakke (Kr.25 900)
Oppgjør (Kr.6 900)
Panterett med urådighet - Statens Kartverk (Kr.545)
Tinglysingsgebyr elektronisk (Kr.1 250)
Visninger pr. stk. (Kr.3 000)
Totalt kr. (Kr.133 813,75)
Ansvarlig megler:
Kristian Løkken
Behandling av personopplysninger
Det gjøres oppmerksom på at foretaket behandler personopplysninger og all behandling skjer iht. personvernregelverket. Meglerforetaket behandler kun personopplysninger som er nødvendig for å gjennomføre oppdraget. Det gjøres oppmerksom på at vi deler dine personopplysninger med offentlige myndigheter i den utstrekning det er nødvendig og med virksomheter som tilbyr tjenester for gjennomføring av oppdraget. For mer informasjon se personvernerklæring på vår hjemmeside.
Salgsoppgaven beskriver vesentlig og lovpålagt informasjon om eiendommen
Se komplett salgsoppgaveNyttige lenker
Nærområdet
Partners Eiendomsmegling
Annonsene kan være mangelfulle i forhold til lovpålagt opplysningsplikt. Før bindende avtale inngås oppfordres interessenter til å innhente komplett informasjon fra meglerforetaket, selger eller utleier.























