Bildegalleri

1-3 Ledige kontor i helt nytt næringsbygg
Nøkkelinfo
- Areal
- 22 - 66 m²
- Etasje
- 4.
- Kontorplasser
- 3
- Byggeår
- 2024
- Energimerking
- A
- Overtakelse
- 1.11.2026
Type lokale
Kontor
Garasje/Parkering
Fasiliteter
Aircondition
Bredbåndstilknytning
Heis
Kantine
Om eiendommen
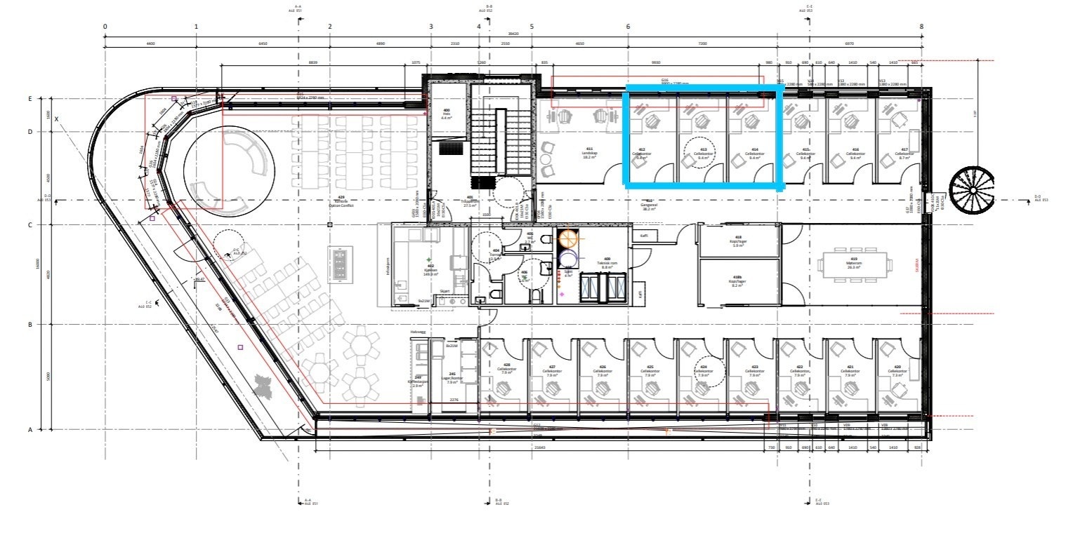
Tre ledige Kontorer i helt nytt og moderne næringsbygg i Brevika. det er tre singel kontorer som ligger vegg i vegg i 4 etasje. Kontorene er 9,4 kvm hver innvendig.
Leie per kontor er 5700kr per måned + felleskotnader
Leie per kontor er 5700kr per måned + felleskotnader
Beliggenhet
Byygget ligger sentralt i Breivika
Adkomst
Lerstadveien og ned til Postveien.
Standard
Bygget ble reist i 2024 og er i høyeste standard av næringsbygg
Innhold
Felles fasiliteter;
Stor og flott felles kantine i 4 etg
Dusjer i 1 etg for de som sykler og eget sykkelskur med mulighet for lading.
Stor og flott felles kantine i 4 etg
Dusjer i 1 etg for de som sykler og eget sykkelskur med mulighet for lading.
Matrikkelinformasjon
Kommunenr: 1504
Gårdsnr: 36
Gårdsnr: 175
NB: Knappen for å vise hele beskrivelsen har kun en visuell effekt.
NB: Knappen for å vise hele beskrivelsen har kun en visuell effekt.
Visning
Ta kontakt for å avtale visning.Nyttige lenker
Nordvest Næringsbygg AS
Nordvest Næringsbygg AS
Truls Bjørkavåg
Ove Bjørkavåg
Nærområdet
Annonsene kan være mangelfulle i forhold til lovpålagt opplysningsplikt. Før bindende avtale inngås oppfordres interessenter til å innhente komplett informasjon fra meglerforetaket, selger eller utleier.










