Bildegalleri

ÅLESUND - BREIVIKA - NYINNREDET KONTORAREAL PÅ 324 KVM I RENOVERT NÆRINGSBYGG
Nøkkelinfo
- Areal
- 324 m²
- Tomteareal
- 13 338 m² (eiet)
- Etasje
- 3.
Type lokale
Fasiliteter
Beskrivelse
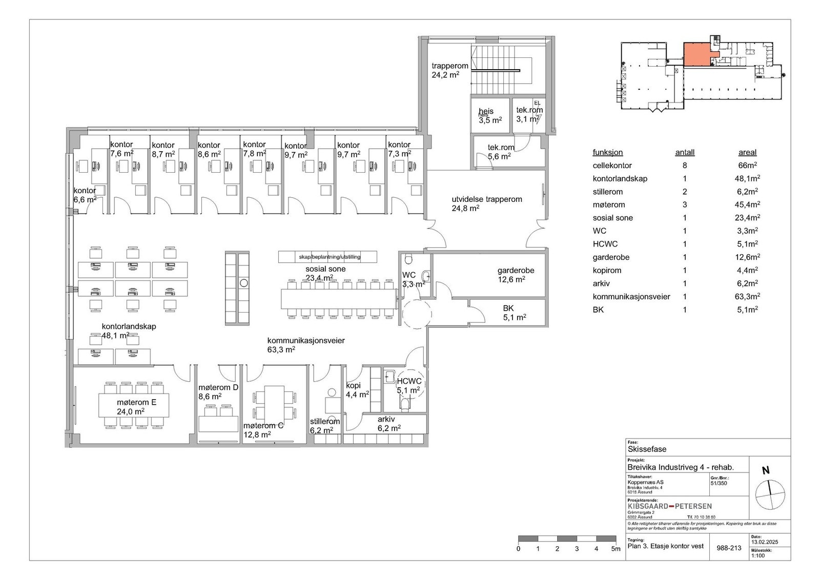
Moderne kontorlokale under renovering beliggende i Breivika Industriveg 4. Planlagt ferdigstillelse innen 01.10.25.
Se illustrasjonsvideo under nyttige linker.
Eiendommen gjennomgår en betydelig oppgradering både teknisk og visuelt, og vil fremstå som et tidsriktig og attraktivt næringsbygg. Kontorlokalet er under renovering, men noen tilpasningsmuligheter etter leietakers ønske. Utleielokalet har et bruttoareal (BTA) på ca. 324 kvm. Normal arealutnyttelse vil dekke behovet for ca. 10-15 ansatte.
Kontorlokalet ligger i 3.etg. til Koppernæs-gruppens hovedkontor, og deler inngangsparti med Koppernæs og Tingstad. Muligheter for deltakelse i felles kantine.
Oppvarming
Det er lagt opp til elektrisk oppvarming og oppvarming via forvarmet luft i ventilasjonsanlegget
Beliggenhet
Sentral beliggenhet i Breivika med nære naboer som Bohus, Biltema, OBS Bygg, Skeidar, Megaflis, Møbelringen m.fl. Kort veg til Moa-området og innfartsvegen til Ålesund by. For øvrig regnes Breivika som det mest attraktive området for næringsvirksomhet i Ålesundregionen, med stor tetthet av store og tunge aktører innen både handel, logistikk og lettere industri. Med korte avstander til alle fasiliteter og enkel adkomst, fremstår dette som et godt alternativ som lokasjon for kontoraktører i regionen.
Regulering
Eiendommen er regulert til F/K/I/L - Forretning/kontor/Industri/Lager
Gjeldende reguleringsplan med tilhørende bestemmelser er Regulering Breivika Industriveg 2 og 4 egengodkjent av Ålesund kommune 27.10.2022
Matrikkelinformasjon
Nyttige lenker
Norion Næringsmegling
Nærområdet
Annonseinformasjon
| FINN-kode | 386070856 |
|---|---|
| Sist endret | 16. des. 2025 14:05 |
| Referanse | 48240154 |
Annonsene kan være mangelfulle i forhold til lovpålagt opplysningsplikt. Før bindende avtale inngås oppfordres interessenter til å innhente komplett informasjon fra meglerforetaket, selger eller utleier.









