Bildegalleri

Utleid
Leilighet / hybel med sentral og rolig beliggenhet på Jeløy - ALT INKLUDERT!
- Månedsleie
- 8 900 kr
- Depositum
- 26 700 kr
Nøkkelinfo
- Primærrom
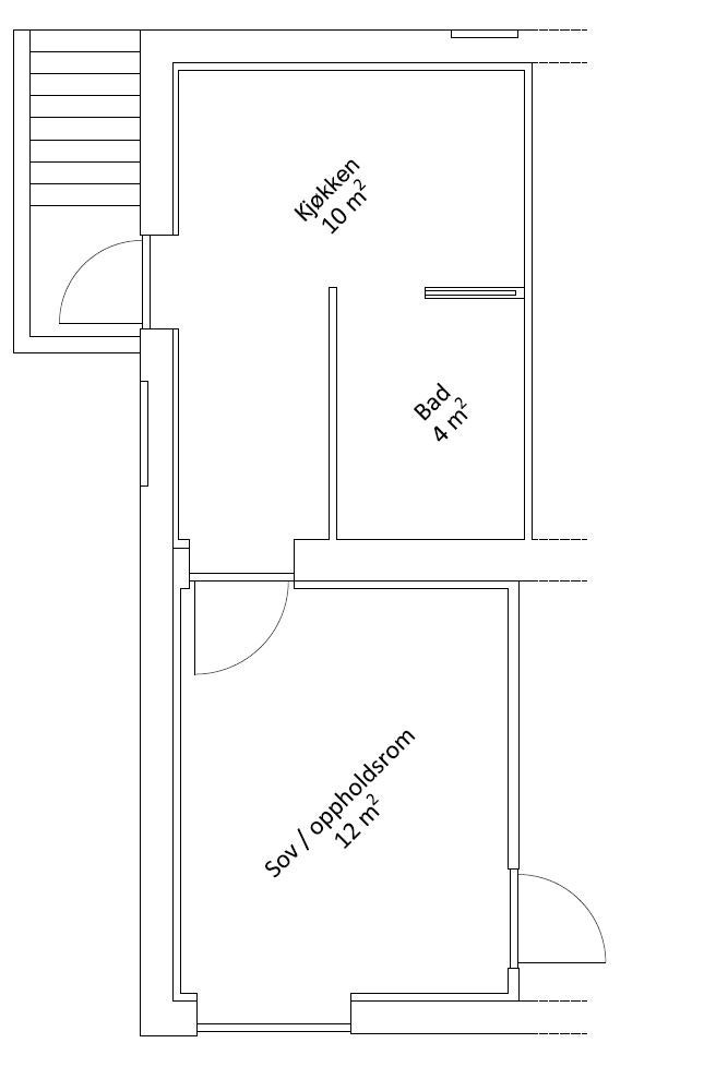
- 26 m²
- Boligtype
- Hybel
- Soverom
- 1
- Etasje
- 1.
- Leieperiode
- 02.10.2024
Fasiliteter
Umøblert
Bredbåndstilknytning
Ingen gjenboere
Kabel-TV
Moderne
Parkett
Rolig
Sentralt
Turterreng
Beskrivelse
Hybel til leie med høy teknisk standard.
Beliggenheten er sentral i stille og rolig nabolag med turstier og strand i umiddelbar nærhet. 6 minutter med sykkel til Moss jernbanestasjon.
Inkludert i leien er:
- Strøm
- Oppvarming
- Vann/varmtvann
TV og bredbånd (500MB/500MB mesh-nettverk).
Innhold kjøkken:
Integrerte hvitevarer; kjøl/frys, ovn, induksjonstopp, og oppvaskmaskin. Komfyrvakt og avtrekksvifte.
Innhold bad:
Toalett, dusjkabinett, baderomsinnredning (ny 2020), speilskap (nytt 2020), vaskemaskin (ny i 2020) og sensorstyrt avtrekksvifte. Plass til tørkestativ.
Hybelen har egen inngang. Rommene er isolert, med avtrekk på bad og kjøkken. Det er gulvvarme i alle gulv med separate kurser (bad, kjøkken, sov/oppholdsrom). Det betyr at du ikke behøver å ha samme temperatur i hele hybelen, du kan selv velge hvor varmt du vil ha det i de ulike rommene.
Vi ønsker å leie ut til en person som er rolig, ryddig og som ikke røyker eller har dyr. Er du interessert, ta kontakt her og skriv noen ord om deg selv. Henvendelser håndteres fortløpende.
Beliggenheten er sentral i stille og rolig nabolag med turstier og strand i umiddelbar nærhet. 6 minutter med sykkel til Moss jernbanestasjon.
Inkludert i leien er:
- Strøm
- Oppvarming
- Vann/varmtvann
TV og bredbånd (500MB/500MB mesh-nettverk).
Innhold kjøkken:
Integrerte hvitevarer; kjøl/frys, ovn, induksjonstopp, og oppvaskmaskin. Komfyrvakt og avtrekksvifte.
Innhold bad:
Toalett, dusjkabinett, baderomsinnredning (ny 2020), speilskap (nytt 2020), vaskemaskin (ny i 2020) og sensorstyrt avtrekksvifte. Plass til tørkestativ.
Hybelen har egen inngang. Rommene er isolert, med avtrekk på bad og kjøkken. Det er gulvvarme i alle gulv med separate kurser (bad, kjøkken, sov/oppholdsrom). Det betyr at du ikke behøver å ha samme temperatur i hele hybelen, du kan selv velge hvor varmt du vil ha det i de ulike rommene.
Vi ønsker å leie ut til en person som er rolig, ryddig og som ikke røyker eller har dyr. Er du interessert, ta kontakt her og skriv noen ord om deg selv. Henvendelser håndteres fortløpende.
NB: Knappen for å vise hele beskrivelsen har kun en visuell effekt.
NB: Knappen for å vise hele beskrivelsen har kun en visuell effekt.
Trenger du en kontrakt?
- Utfylt kontrakt med opplysninger fra annonsen
- Digital signering
- Gratis tjeneste
- Godkjent av Forbrukerrådet
Nærområdet
Annonsene kan være mangelfulle i forhold til lovpålagt opplysningsplikt. Før bindende avtale inngås oppfordres interessenter til å innhente komplett informasjon fra meglerforetaket, selger eller utleier.





















