Bildegalleri

Velkommen til Tors veg 11 B, presentert av Johannes Tømmerås!
Nardo
RÅLEKKER 3-ROMS I 3.ETG. TOTALRENOVERT I 2024. Fantastiske solforhold. Nærhet til "alt". Renovert BRL. 2 boder
Prisantydning3 590 000 kr
Nøkkelinfo
- Boligtype
- Leilighet
- Eieform
- Andel
- Soverom
- 2
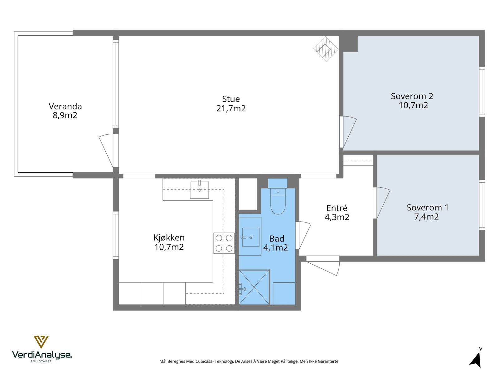
- Internt bruksareal
- 64 m² (BRA-i)
- Bruksareal
- 77 m²
- Eksternt bruksareal
- 13 m² (BRA-e)
- Balkong/Terrasse
- 9 m² (TBA)
- Etasje
- 2
- Byggeår
- 1961
- Energimerking
- D - Gul
- Rom
- 3
- Tomteareal
- 28 048 m² (eiet)
Visning
mandag, 23. mars
19:00 – 19:45
Våre visninger har påmelding. Dette gjør vi for å kunne yte bedre service for våre kunder. Verdifullt for boligkjøper og for oss. Vi anbefaler at salgsoppgaven lastes ned digitalt før visning, og ring oss gjerne på forhånd for spørsmål om boligen. Passer ikke angitt tidspunkt, ta kontakt så finner vi en løsning. Skulle det mot formodning ikke være påmeldte til angitt visningstidspunkt vil ikke visning bli gjennomført.
Om boligen
Velkommen til Tors veg 11B på Nardo. Nydelig og innbydende 3-roms leilighet i 3. etasje. Leiligheten ble totalrenovert i 2024 og fremstår som moderne og delikat. Det er elektrisk gulvvarme i alle gulv og appstyrt belysning. Romslig balkong med fantastiske solforhold og flott utsikt.
Kvaliteter vi ønsker å fremheve:
- Råflott flislagt bad med TG0 på alle punkter
- Stort og moderne kjøkken med god benkeplass
- Romslig stue med downlights i tak
- Delikate og moderne fargevalg
- Fjernstyrt markise på balkong
- Balansert ventilasjon som gir godt inneklima
- To boder med gode oppbevaringsmuligheter
- Felleskostnader inkl. kabel-TV, internett og kommunale avgifter
- Utvendig parkeringsplass og mulighet for garasje
- Sentral og attraktiv beliggenhet.
Borettslaget ble omfattende oppgradert i 2017/18 med blant annet nye vinduer, etterisolering, oppgradering av balkonger, ventilasjon, garasjer og sykkelparkering. Ladepunkter for elbil etablert i 2020.
Velkommen!
Kvaliteter vi ønsker å fremheve:
- Råflott flislagt bad med TG0 på alle punkter
- Stort og moderne kjøkken med god benkeplass
- Romslig stue med downlights i tak
- Delikate og moderne fargevalg
- Fjernstyrt markise på balkong
- Balansert ventilasjon som gir godt inneklima
- To boder med gode oppbevaringsmuligheter
- Felleskostnader inkl. kabel-TV, internett og kommunale avgifter
- Utvendig parkeringsplass og mulighet for garasje
- Sentral og attraktiv beliggenhet.
Borettslaget ble omfattende oppgradert i 2017/18 med blant annet nye vinduer, etterisolering, oppgradering av balkonger, ventilasjon, garasjer og sykkelparkering. Ladepunkter for elbil etablert i 2020.
Velkommen!
NB: Knappen for å vise hele beskrivelsen har kun en visuell effekt.
NB: Knappen for å vise hele beskrivelsen har kun en visuell effekt.
Salgsoppgaven beskriver vesentlig og lovpålagt informasjon om eiendommen
Se komplett salgsoppgaveNyttige lenker
Nærområdet
EiendomsMegler 1 Lerkendal
Vi loser deg trygt gjennom hele boligsalget
Annonseinformasjon
| FINN-kode | 455240931 |
|---|---|
| Sist endret | 15. mars 2026 11:33 |
| Referanse | 37250211 |
Annonsene kan være mangelfulle i forhold til lovpålagt opplysningsplikt. Før bindende avtale inngås oppfordres interessenter til å innhente komplett informasjon fra meglerforetaket, selger eller utleier.













































