Bildegalleri

Drømmer dere om en kjedet bolig med masse plass og egen uteplass? Her får dere muligheten til å skape et hjem med stort potensial og gode planløsninger over flere plan! Bildet er tatt i forbindelse med tidligere salg.
Trygt bomiljø med privat preg på Refstad
Stor kjedet bolig | Sentralt og familievennlig | Oppussingsobjekt m/ stort potensial! | Hage & garasjeplass | 4 soverom
Prisantydning9 750 000 kr
Nøkkelinfo
- Boligtype
- Rekkehus
- Eieform
- Eier (Selveier)
- Soverom
- 4
- Internt bruksareal
- 196 m² (BRA-i)
- Bruksareal
- 201 m²
- Eksternt bruksareal
- 5 m² (BRA-e)
- Etasje
- 1
- Byggeår
- 1974
- Energimerking
- Rom
- 6
- Tomteareal
- 141 m² (eiet)
Fasiliteter
Balkong/Terrasse
Barnevennlig
Bredbåndstilknytning
Garasje/P-plass
Hage
Kjæledyr tillatt
Kabel-TV
Offentlig vann/kloakk
Parkett
Peis/Ildsted
Rolig
Sentralt
Turterreng
Lademulighet
Om boligen
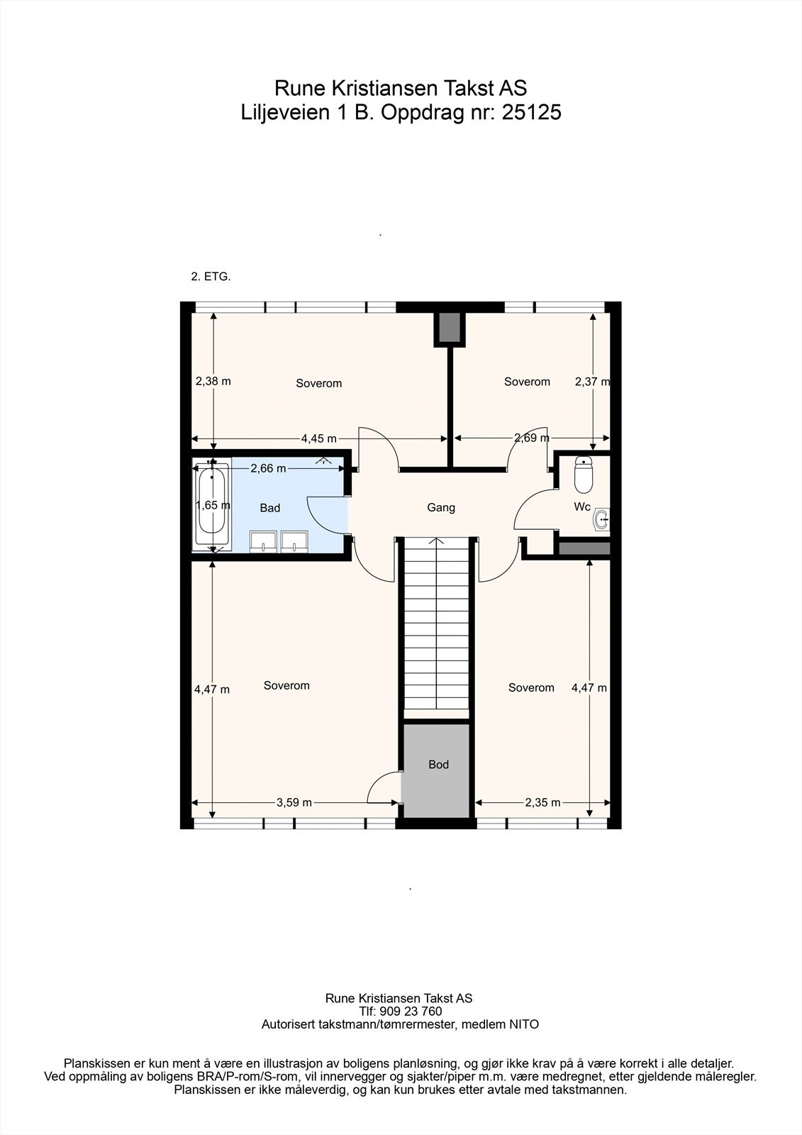
Liljeveien 1B er en innholdsrik, kjedet bolig over 3 plan. Boligen fremstår som et oppussingsobjekt og gir en spennende mulighet til å skape et hjem etter egne ønsker. Boligen har en romslig stue med store vindusflater, peis og utgang til hage, separat kjøkken, fire soverom samlet i egen etasje samt en kjelleretasje med flere store og fleksible rom. Mange av boligene i området har valgt å tilrettelegge deler av kjelleretasjen til utleiedel, noe som illustrerer hvilke muligheter planløsningen kan gi, forutsatt nødvendige godkjenninger.
Her får dere en sjelden mulighet til å skape drømmehjemmet:
- God planløsning & luftige oppholdsrom
- Store vindusflater m/ godt lysinnslipp
- Barnevennlig med store felles uteområder
- Kort vei til skole, barnehage, idrett og off.kommunikasjon
Her får dere en sjelden mulighet til å skape drømmehjemmet:
- God planløsning & luftige oppholdsrom
- Store vindusflater m/ godt lysinnslipp
- Barnevennlig med store felles uteområder
- Kort vei til skole, barnehage, idrett og off.kommunikasjon
NB: Knappen for å vise hele beskrivelsen har kun en visuell effekt.
NB: Knappen for å vise hele beskrivelsen har kun en visuell effekt.
Salgsoppgaven beskriver vesentlig og lovpålagt informasjon om eiendommen
Se komplett salgsoppgaveNærområdet
Aktiv Carl Berner
Annonseinformasjon
| FINN-kode | 455106842 |
|---|---|
| Sist endret | 13. mars 2026 10:52 |
| Referanse | 1006260026 |
Annonsene kan være mangelfulle i forhold til lovpålagt opplysningsplikt. Før bindende avtale inngås oppfordres interessenter til å innhente komplett informasjon fra meglerforetaket, selger eller utleier.



























































