Bildegalleri

Velkommen til Seljeveien 17! - Presentert av Fuat Demirbas v/ Aktiv Eiendomsmegling.
LØREN | IDYLLISKE FRYDENBERG
Lys og sentral 5-roms m/ innglasset balkong på 10 m² - 2 bad - Stor garasjeplass - Akonto Fyring, Vv. og strøm - Heis
Prisantydning8 650 000 kr
Nøkkelinfo
- Boligtype
- Leilighet
- Eieform
- Andel
- Soverom
- 4
- Internt bruksareal
- 99 m² (BRA-i)
- Bruksareal
- 115 m²
- Eksternt bruksareal
- 5 m² (BRA-e)
- Innglasset balkong
- 11 m² (BRA-b)
- Etasje
- 3
- Byggeår
- 2008
- Energimerking
- D - Mørkegrønn
- Rom
- 5
- Tomteareal
- 886 m² (eiet)
Fasiliteter
Balkong/Terrasse
Barnevennlig
Garasje/P-plass
Heis
Kjæledyr tillatt
Offentlig vann/kloakk
Parkett
Rolig
Sentralt
Vaktmester-/vektertjeneste
Turterreng
Om boligen
Velkommen til Seljeveien 17!
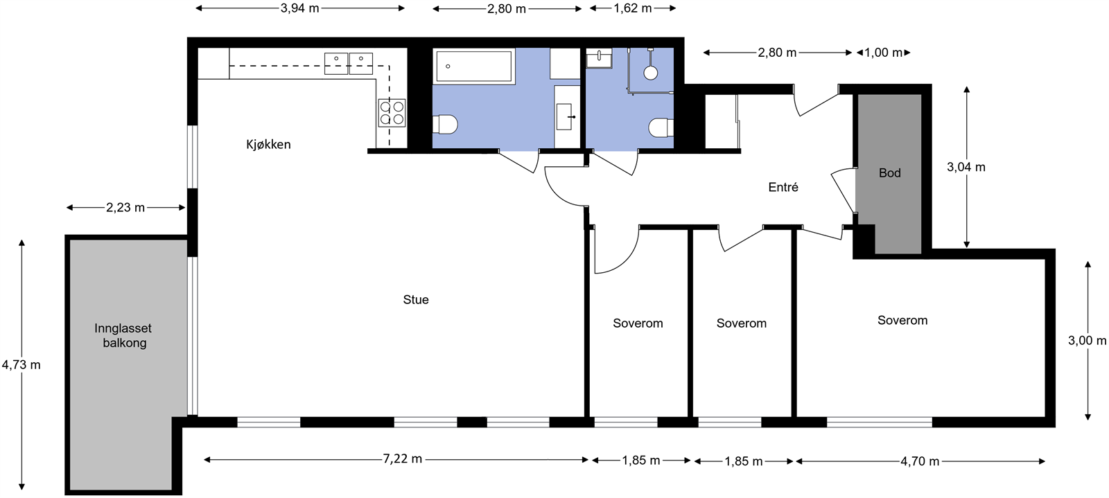
Her får dere en moderne og innbydende leilighet i byggets tredje etasje, med god planløsning og fine kvaliteter. Boligen fremstår lys og luftig, med store vindusflater og åpne soner som gir en behagelig atmosfære. Leiligheten har fire soverom, to bad og en stor, innglasset balkong som forlenger utesesongen og gir en lun uteplass året rundt.
Her får dere en moderne og innbydende leilighet i byggets tredje etasje, med god planløsning og fine kvaliteter. Boligen fremstår lys og luftig, med store vindusflater og åpne soner som gir en behagelig atmosfære. Leiligheten har fire soverom, to bad og en stor, innglasset balkong som forlenger utesesongen og gir en lun uteplass året rundt.
- Stor 5-roms med stor garasjeplass
- Stor, sosial åpen stue/kjøkken løsning
- Stilrent kjøkken med integrerte hvitevarer
- Store vindusflater sikrer godt med naturlig lysinnslipp
- 2 flislagte bad
- Fire gode soverom, alle med god møbleringsfrihet
- Balansert ventilasjon, fjernvarme, og gulvvarme i entre og gang
- Innvendig bod og kjellerbod
- Kort vei til off.kom, dagligvare og skole/barnehage
NB: Knappen for å vise hele beskrivelsen har kun en visuell effekt.
NB: Knappen for å vise hele beskrivelsen har kun en visuell effekt.
Salgsoppgaven beskriver vesentlig og lovpålagt informasjon om eiendommen
Se komplett salgsoppgaveNærområdet
Aktiv Carl Berner
Annonseinformasjon
| FINN-kode | 407842622 |
|---|---|
| Sist endret | 25. jan. 2026 15:35 |
| Referanse | 1006250086 |
Annonsene kan være mangelfulle i forhold til lovpålagt opplysningsplikt. Før bindende avtale inngås oppfordres interessenter til å innhente komplett informasjon fra meglerforetaket, selger eller utleier.

















































