Bildegalleri

Kaja Årvik Olsen v/DNB Eiendom har gleden av å presentere Mandalls Gate 8B!
Grønland
Lys og svært innbydende 2-roms med god takhøyde - Pent bad oppgradert 2022 - Kjøkken 2021 - Varmtvann og internett inkl.
Prisantydning4 750 000 kr
Nøkkelinfo
- Boligtype
- Leilighet
- Eieform
- Andel
- Soverom
- 1
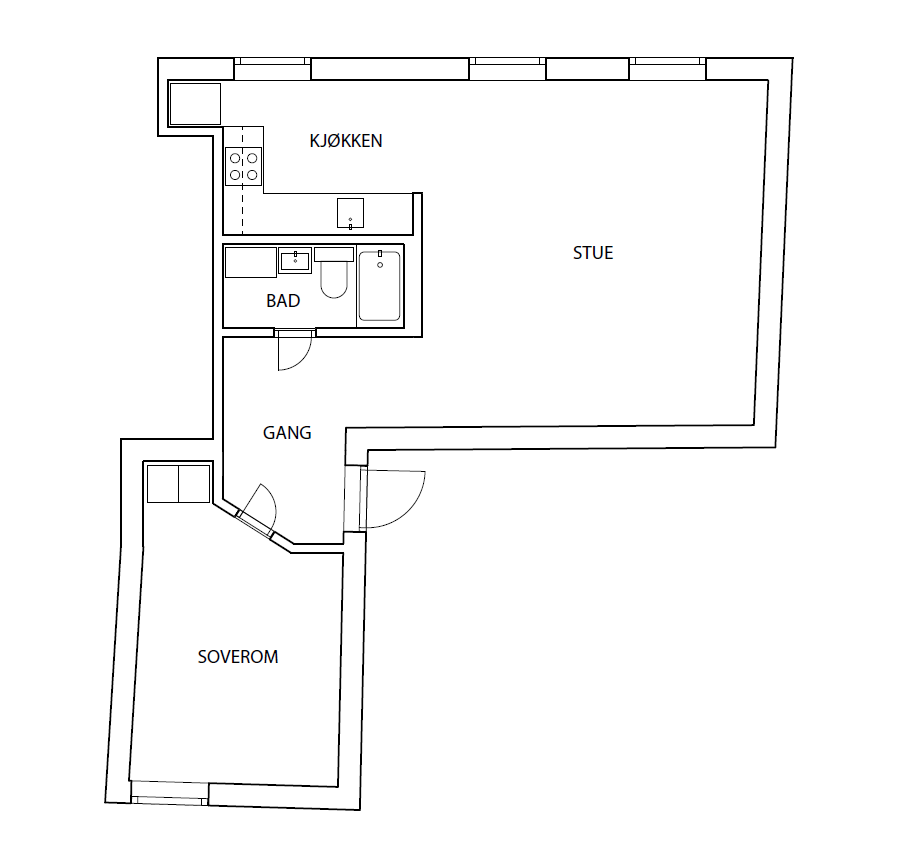
- Internt bruksareal
- 46 m² (BRA-i)
- Bruksareal
- 49 m²
- Eksternt bruksareal
- 3 m² (BRA-e)
- Etasje
- 2
- Byggeår
- 1890
- Energimerking
- Rom
- 2
- Tomteareal
- 649 m² (eiet)
Fasiliteter
Bredbåndstilknytning
Fellesvaskeri
Heis
Kjæledyr tillatt
Offentlig vann/kloakk
Parkett
Sentralt
Vaktmester-/vektertjeneste
Visning
søndag, 22. mars
12:00 – 12:45
tirsdag, 24. mars
16:30 – 17:15
Velkommen til visning! Meld deg på ved å trykke "visningspåmelding" i våre boligannonser. Ta gjerne kontakt med megler i forkant av visningen om du har spørsmål.
VisningspåmeldingOm boligen
Dette er en lys og vakker 2-roms leilighet beliggende i en klassisk bygård fra 1890, midt i et levende nabolag. Leiligheten byr på gjennomgående planløsning og flotte kvaliteter med store vindusflater, brede karmer og elegant takrosett som sammen med den generøse takhøyden skaper en god romfølelse. Her får du et hjem som kombinerer tidløse detaljer med moderne standard. Dette er en perfekt leilighet for deg som vil bo sentralt med umiddelbar nærhet til byens fasiliteter!
Verdt å merke seg:
- Soverom vendt mot rolig bakgård
- Stilrent kjøkken fra 2021
- Bad oppgradert i 2022
- God takhøyde
- Lekkert parkettgulv (douglasgran fra 2020)
- Alle overflater malt i 2020
- Loft- og kjellerbod på ca. 3m² og 4m²
- Internett (fiber) og varmtvann inkl.
- Lave kjøpsomkostninger
- Veldrevet borettslag
Verdt å merke seg:
- Soverom vendt mot rolig bakgård
- Stilrent kjøkken fra 2021
- Bad oppgradert i 2022
- God takhøyde
- Lekkert parkettgulv (douglasgran fra 2020)
- Alle overflater malt i 2020
- Loft- og kjellerbod på ca. 3m² og 4m²
- Internett (fiber) og varmtvann inkl.
- Lave kjøpsomkostninger
- Veldrevet borettslag
NB: Knappen for å vise hele beskrivelsen har kun en visuell effekt.
NB: Knappen for å vise hele beskrivelsen har kun en visuell effekt.
Salgsoppgaven beskriver vesentlig og lovpålagt informasjon om eiendommen
Se komplett salgsoppgaveNyttige lenker
Nærområdet
DNB Eiendom AS
Verdifulle salg
Annonseinformasjon
| FINN-kode | 454781931 |
|---|---|
| Sist endret | 16. mars 2026 11:31 |
| Referanse | 415260051 |
Annonsene kan være mangelfulle i forhold til lovpålagt opplysningsplikt. Før bindende avtale inngås oppfordres interessenter til å innhente komplett informasjon fra meglerforetaket, selger eller utleier.



























