Bildegalleri

EIE eiendomsmegling ønsker velkommen til Skolegata 3 og 2.etasje!
MIDT I BYEN!
Lekker selveierleilighet (ende) med vestvendt innglasset balkong. Heis. 2 egne uteplasser
Prisantydning3 700 000 kr
Nøkkelinfo
- Boligtype
- Leilighet
- Eieform
- Selveier
- Soverom
- 1
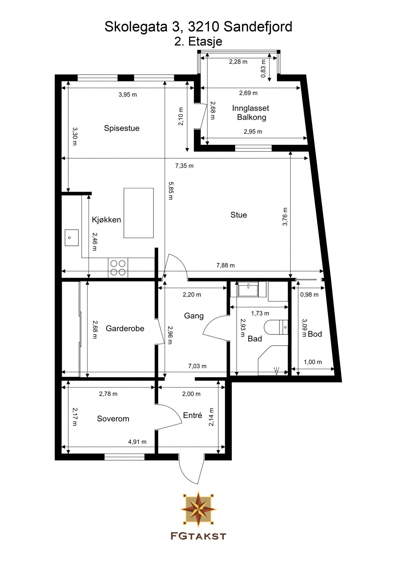
- Internt bruksareal
- 72 m² (BRA-i)
- Bruksareal
- 80 m²
- Innglasset balkong
- 8 m² (BRA-b)
- Etasje
- 2
- Byggeår
- 2002
- Energimerking
- C - Lysegrønn
- Tomteareal
- 2 200 m² (eiet)
Fasiliteter
Barnevennlig
Balkong/Terrasse
Kabel-TV
Heis
Offentlig vann/kloakk
Parkett
Sentralt
Bredbåndstilknytning
Moderne
Rolig
Om boligen
EIE eiendomsmegling ønsker deg velkommen til Skolegata 3 - en særdeles lekker og innbydende leilighet med gjennomgående god standard og en attraktiv beliggenhet. Her kan du flytte rett inn og nyte en komfortabel hverdag fra første stund.
Leiligheten fremstår lys og stilren, innredet i moderne og tidsriktige farger. Planløsningen er både smart og arealeffektiv, med rom som oppleves luftige og funksjonelle. Ved inngangspartiet finner du en hyggelig plass hvor morgenkaffen kan nytes i rolige omgivelser.
Kort fortalt:
- Lys og stilren leilighet med gjennomgående god standard
- Smart og arealeffektiv planløsning
- 2 terrasser som gir gode solforhold
- Vestvendt innglasset balkong
- Rolig soverom vendt mot bakgård
- Romslig garderoberom som kan benyttes som gjesterom
- Ekstern bod i felles bodrekke
Leiligheten fremstår lys og stilren, innredet i moderne og tidsriktige farger. Planløsningen er både smart og arealeffektiv, med rom som oppleves luftige og funksjonelle. Ved inngangspartiet finner du en hyggelig plass hvor morgenkaffen kan nytes i rolige omgivelser.
Kort fortalt:
- Lys og stilren leilighet med gjennomgående god standard
- Smart og arealeffektiv planløsning
- 2 terrasser som gir gode solforhold
- Vestvendt innglasset balkong
- Rolig soverom vendt mot bakgård
- Romslig garderoberom som kan benyttes som gjesterom
- Ekstern bod i felles bodrekke
NB: Knappen for å vise hele beskrivelsen har kun en visuell effekt.
NB: Knappen for å vise hele beskrivelsen har kun en visuell effekt.
Salgsoppgaven beskriver vesentlig og lovpålagt informasjon om eiendommen
Se komplett salgsoppgaveNyttige lenker
Nærområdet
EIE eiendomsmegling Sandefjord
Annonsene kan være mangelfulle i forhold til lovpålagt opplysningsplikt. Før bindende avtale inngås oppfordres interessenter til å innhente komplett informasjon fra meglerforetaket, selger eller utleier.








































