Bildegalleri

Notar v/Erling O. Turtum har gleden av å presentere Vekterveien 27B - en romslig og pen halvpart av tomannsbolig med garasje, balkong, terrasse og stor solrik hage.
Manglerud
Romslig og pen halvpart av tomannsbolig med terrasse og solrik hage. Garasje. Skjermet, bynært og landlig beliggenhet.
Prisantydning10 700 000 kr
Nøkkelinfo
- Boligtype
- Tomannsbolig
- Eieform
- Eier (Selveier)
- Soverom
- 5
- Internt bruksareal
- 176 m² (BRA-i)
- Bruksareal
- 176 m²
- Balkong/Terrasse
- 33 m² (TBA)
- Byggeår
- 1951
- Energimerking
- E
- Rom
- 7
- Tomteareal
- 487 m² (eiet)
Fasiliteter
Alarm
Balkong/Terrasse
Barnevennlig
Bredbåndstilknytning
Garasje/P-plass
Hage
Kjæledyr tillatt
Ingen gjenboere
Kabel-TV
Offentlig vann/kloakk
Parkett
Peis/Ildsted
Rolig
Utsikt
Turterreng
Om boligen
Notar v/Erling O. Turtum har gleden av å presentere Vekterveien 27B - en romslig og pen halvpart av tomannsbolig med garasje, balkong, terrasse og stor solrik hage. Familievennlig og god planløsning. Boligen har en attraktiv og bynær beliggenhet med landlig særpreg nær skoler, barnehage, butikker, offentlig kommunikasjon, svømmehall og lekeplasser. Markanær beliggenhet med Østensjøvannet og Østmarka innen gangavstand. Her kan du flytte rett inn!
Generelt:
- Rolige omgivelser med eneboligopplevelse
- Flott solrik og opparbeidet hage
- Rehabilitert og velholdt bolig
- Kjelleretasje renovert/pusset opp i 2018.
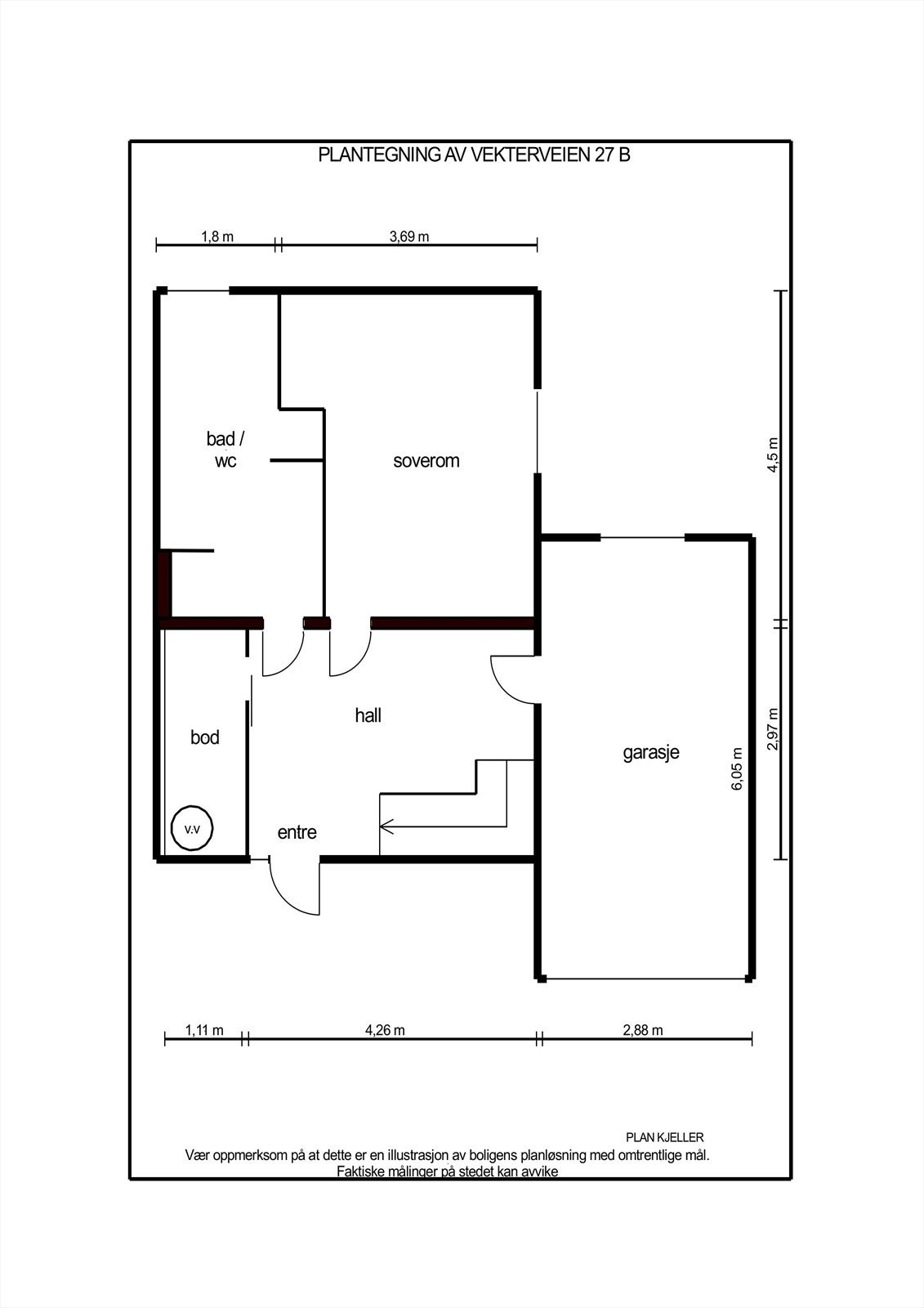
- Garasje
- 2 bad/wc
- 5 soverom
- Peis
- Familievennlig planløsning
- Kort vei til offentlig kommunikasjon
Velkommen til visning!
Generelt:
- Rolige omgivelser med eneboligopplevelse
- Flott solrik og opparbeidet hage
- Rehabilitert og velholdt bolig
- Kjelleretasje renovert/pusset opp i 2018.
- Garasje
- 2 bad/wc
- 5 soverom
- Peis
- Familievennlig planløsning
- Kort vei til offentlig kommunikasjon
Velkommen til visning!
NB: Knappen for å vise hele beskrivelsen har kun en visuell effekt.
NB: Knappen for å vise hele beskrivelsen har kun en visuell effekt.
Salgsoppgaven beskriver vesentlig og lovpålagt informasjon om eiendommen
Se komplett salgsoppgaveNærområdet
Notar Oslo
God magefølelse
Annonseinformasjon
| FINN-kode | 454093041 |
|---|---|
| Sist endret | 06. mars 2026 20:28 |
| Referanse | NO17.2620 |
Annonsene kan være mangelfulle i forhold til lovpålagt opplysningsplikt. Før bindende avtale inngås oppfordres interessenter til å innhente komplett informasjon fra meglerforetaket, selger eller utleier.





























































