Bildegalleri

Holane 5, presentert av Sissel Halnes - EiendomsMegler1 Nordfjord (foto; Efkt, Svein Olav Humberset)
Romsleg, flott leilegheit med garasjeplass - utsikt - alt på eit plan - sentrumsnært -
Prisantydning3 000 000 kr
Nøkkelinfo
- Boligtype
- Leilighet
- Eieform
- Eier (Selveier)
- Soverom
- 3
- Internt bruksareal
- 119 m² (BRA-i)
- Bruksareal
- 119 m²
- Balkong/Terrasse
- 12 m² (TBA)
- Etasje
- 1
- Byggeår
- 1989
- Energimerking
- Rom
- 4
- Tomteareal
- 2 318 m² (eiet)
Fasiliteter
Balkong/Terrasse
Barnevennlig
Kjæledyr tillatt
Offentlig vann/kloakk
Peis/Ildsted
Rolig
Sentralt
Utsikt
Om boligen
Velkommen til Holten 5A
Her finn du ei sentrumsnær, romsleg og fin leilegheit med tre soverom. Du har alt på eit plan, ei stor stove med laminat på golv og gode fargeval. Det er kort gangveg til barnehagar, skular, idretts- og kulturtilbod, samt også dagelge nædvendigheter i sentrum. Leilegheita ligg i eit godt etablert sameige, med fine felles uteplassar rundt om på fellestomta.
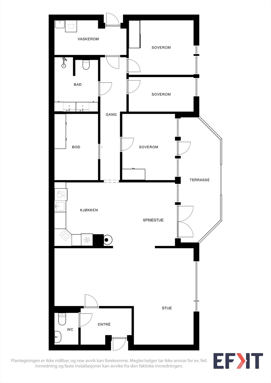
På eit plan med overbygd terrasse finn du i leilegheita entrè, toalettrom, stove/kjøkken i delvis åpen løysing med utgang til terrasse, gang, tre soverom, vaskerom, bad og bod.
Store felles uteareal med fleire sitjeplassar, og leikeareal for barna.
Hugs påmelding til visning
Her finn du ei sentrumsnær, romsleg og fin leilegheit med tre soverom. Du har alt på eit plan, ei stor stove med laminat på golv og gode fargeval. Det er kort gangveg til barnehagar, skular, idretts- og kulturtilbod, samt også dagelge nædvendigheter i sentrum. Leilegheita ligg i eit godt etablert sameige, med fine felles uteplassar rundt om på fellestomta.
På eit plan med overbygd terrasse finn du i leilegheita entrè, toalettrom, stove/kjøkken i delvis åpen løysing med utgang til terrasse, gang, tre soverom, vaskerom, bad og bod.
Store felles uteareal med fleire sitjeplassar, og leikeareal for barna.
Hugs påmelding til visning
NB: Knappen for å vise hele beskrivelsen har kun en visuell effekt.
NB: Knappen for å vise hele beskrivelsen har kun en visuell effekt.
Salgsoppgaven beskriver vesentlig og lovpålagt informasjon om eiendommen
Se komplett salgsoppgaveNyttige lenker
Nærområdet
EiendomsMegler 1 Sogn og Fjordane
En del av Sparebank 1 Sogn og Fjordane
Annonseinformasjon
| FINN-kode | 453611056 |
|---|---|
| Sist endret | 06. mars 2026 11:43 |
| Referanse | 6000250144 |
Annonsene kan være mangelfulle i forhold til lovpålagt opplysningsplikt. Før bindende avtale inngås oppfordres interessenter til å innhente komplett informasjon fra meglerforetaket, selger eller utleier.

































