Bildegalleri

Velkommen til Vårvegen 35 - flott beliggende endeleilighet i 1. etg. Fotograf Bjørn Sørheim v/Efkt Norge AS
ÅRNES/FJUK - Moderne, pen og praktisk 3 roms selveier med gangavstand til sentrum - Peisovn -Carport - Supre solforhold.
Prisantydning2 990 000 kr
Nøkkelinfo
- Boligtype
- Leilighet
- Eieform
- Eier (Selveier)
- Soverom
- 2
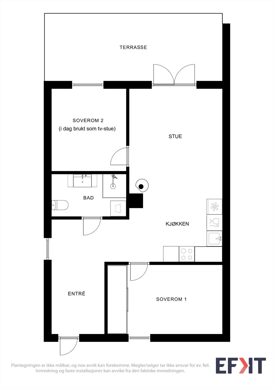
- Internt bruksareal
- 63 m² (BRA-i)
- Bruksareal
- 69 m²
- Eksternt bruksareal
- 6 m² (BRA-e)
- Balkong/Terrasse
- 16 m² (TBA)
- Etasje
- 1
- Byggeår
- 2018
- Energimerking
- Rom
- 3
- Tomteareal
- 2 686 m² (eiet)
Fasiliteter
Balkong/Terrasse
Bredbåndstilknytning
Garasje/P-plass
Parkett
Peis/Ildsted
Sentralt
Balansert ventilasjon
Visning
tirsdag, 17. mars
17:30 – 18:30
Ønsker du å delta på visningen ber vi deg melde deg på slik at vi vet at du kommer. Da kan vi bistå alle best mulig og gi deg tiden du trenger på visningen. Ta gjerne kontakt med megler før visning hvis du har noen spørsmål. Velkommen!
VisningspåmeldingOm boligen
Velkommen til Vårvegen 35: En flott og moderne 3-roms (byggeår 2018) med senere oppgraderinger både utvendig og innvendig.
Attraktiv beliggenhet med gangavstand til alle sentrumstilbud, kollektivtransport og skoler i alle trinn. Meget gode rekreasjonsmuligheter med tursti/lysløype like i nærheten.
Leiligheten har ekstra god takhøyde (260cm), som gir en luftig og god romfølelse. Innvendig er det lagt downlights i stue samt montert en flott peisovn som gir god varme og ekstra hygge. Helfliset moderne bad. Begge soverom er av god størrelse.
Endeleilighet med supre solforhold, den utvidede terrassen er syd-vestvendt.
Bilen kan parkeres i medfølgende carport.
Fristende? Da sees vi på visning!
Attraktiv beliggenhet med gangavstand til alle sentrumstilbud, kollektivtransport og skoler i alle trinn. Meget gode rekreasjonsmuligheter med tursti/lysløype like i nærheten.
Leiligheten har ekstra god takhøyde (260cm), som gir en luftig og god romfølelse. Innvendig er det lagt downlights i stue samt montert en flott peisovn som gir god varme og ekstra hygge. Helfliset moderne bad. Begge soverom er av god størrelse.
Endeleilighet med supre solforhold, den utvidede terrassen er syd-vestvendt.
Bilen kan parkeres i medfølgende carport.
Fristende? Da sees vi på visning!
NB: Knappen for å vise hele beskrivelsen har kun en visuell effekt.
NB: Knappen for å vise hele beskrivelsen har kun en visuell effekt.
Salgsoppgaven beskriver vesentlig og lovpålagt informasjon om eiendommen
Se komplett salgsoppgaveNyttige lenker
Nærområdet
EiendomsMegler 1 Årnes
Vi loser deg trygt gjennom hele boligsalget
Annonseinformasjon
| FINN-kode | 453597783 |
|---|---|
| Sist endret | 11. mars 2026 13:27 |
| Referanse | 6048260108 |
Annonsene kan være mangelfulle i forhold til lovpålagt opplysningsplikt. Før bindende avtale inngås oppfordres interessenter til å innhente komplett informasjon fra meglerforetaket, selger eller utleier.































