Bildegalleri

Meglerhuset & Partners ønsker velkommen til Svelvikveien 61D!
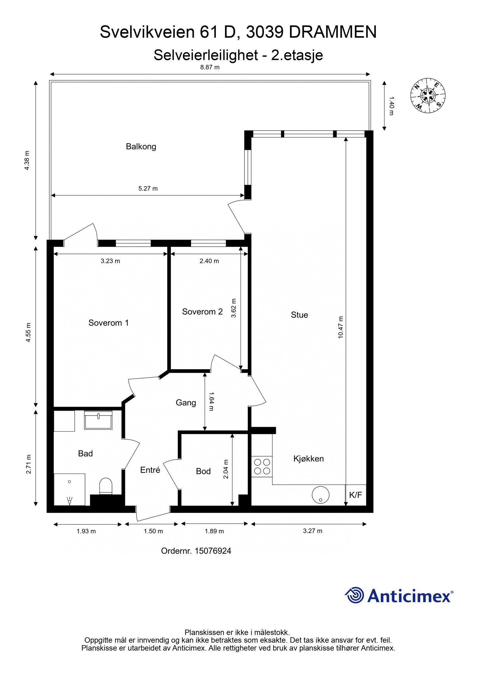
Nøsted Brygge | Nyoppført frontleilighet med flott utsikt | Balkong på 36 m² | 2 sov | Vannbåren varme | Garasjeplass
Nøkkelinfo
- Boligtype
- Leilighet
- Eieform
- Eier (Selveier)
- Soverom
- 2
- Internt bruksareal
- 80 m² (BRA-i)
- Bruksareal
- 85 m²
- Eksternt bruksareal
- 5 m² (BRA-e)
- Balkong/Terrasse
- 36 m² (TBA)
- Etasje
- 2
- Byggeår
- 2025
- Energimerking
- C - Mørkegrønn
- Tomt
- Eiet
Fasiliteter
Visning
Om boligen
Velkommen til en nyoppført frontleilighet på Nøsted Brygge!
Leiligheten ligger i byggets 2.etasje og byr på en fantastisk utsikt over Drammensfjorden. Leiligheten er gjennomgående med rikelig lysinnslipp, og den østvendte balkongen lar deg nyte morgensolen og den vakre fjordutsikten. Her kan du flytte rett inn i et hjem med høy standard, stilrene materialvalg og gjennomtenkte løsninger. Vannbåren varme i alle gulv.
På Nøsted Brygge bor du helt nede ved vannkanten, med kort vei til Drammen sentrum, kafeer og restauranter, samtidig som du har flotte turmuligheter ved Nordbykollen like i nærheten. En perfekt kombinasjon av moderne komfort, maritim atmosfære og naturskjønne omgivelser - ideelt for deg som ønsker det lille ekstra i hverdagen.
Velkommen til Visning!
Salgsoppgaven beskriver vesentlig og lovpålagt informasjon om eiendommen
Se komplett salgsoppgaveNærområdet
Meglerhuset & Partners Drammen
Annonseinformasjon
| FINN-kode | 437985715 |
|---|---|
| Sist endret | 16. des. 2025 03:07 |
| Referanse | 11250073 |
Annonsene kan være mangelfulle i forhold til lovpålagt opplysningsplikt. Før bindende avtale inngås oppfordres interessenter til å innhente komplett informasjon fra meglerforetaket, selger eller utleier.
























