Bildegalleri

Velkommen til St. Olavs gate 4 A
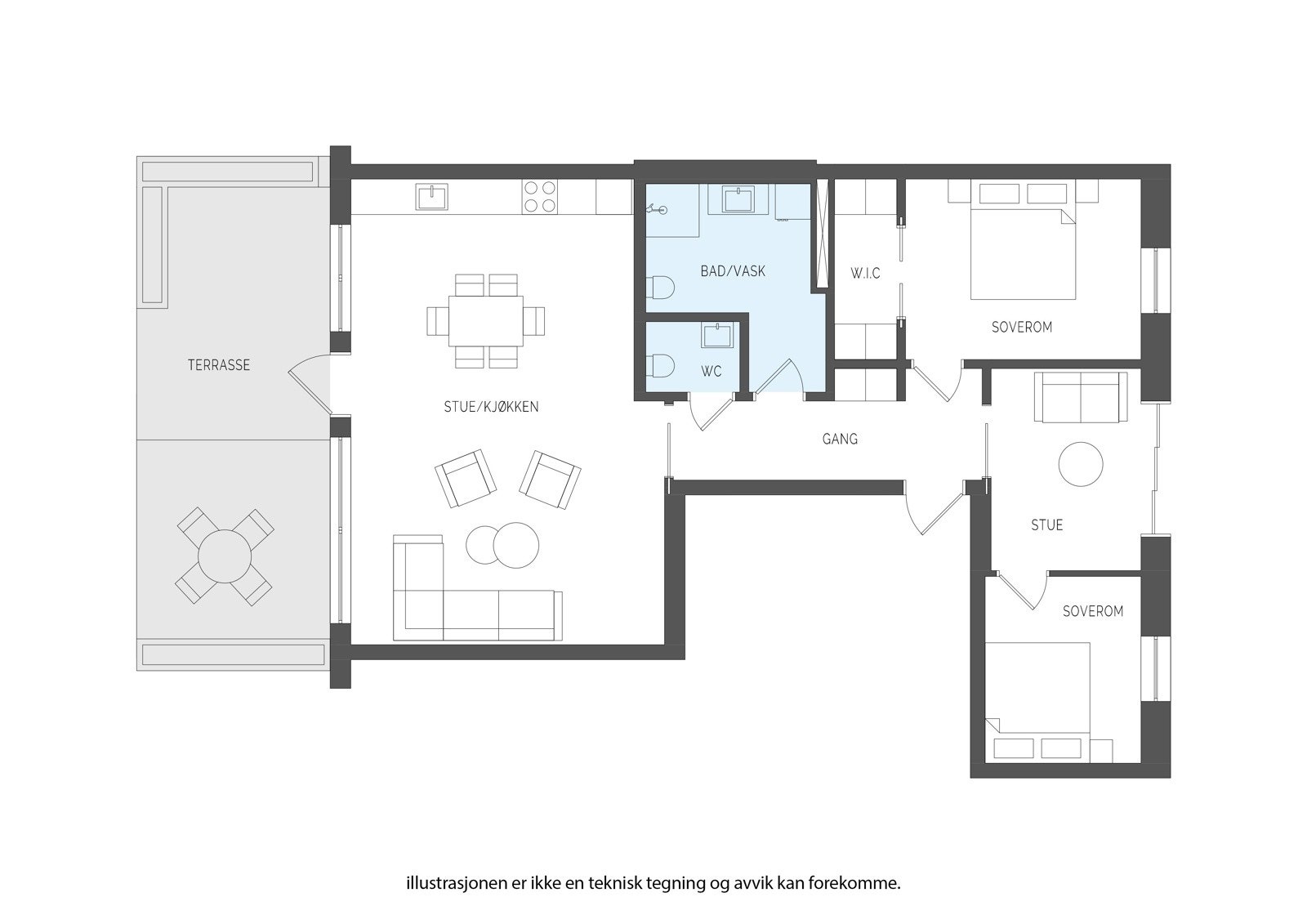
Svært tiltalende 98 kvm leilighet i flotte Møllekvartalet med stor terrasse, god standard og fin planløsning
Nøkkelinfo
- Boligtype
- Leilighet
- Eieform
- Andel
- Soverom
- 2
- Internt bruksareal
- 92 m² (BRA-i)
- Bruksareal
- 98 m²
- Eksternt bruksareal
- 6 m² (BRA-e)
- Balkong/Terrasse
- 22 m² (TBA)
- Etasje
- 2
- Byggeår
- 2023
- Rom
- 4
- Tomt
- Eiet
- Boligselgerforsikring
- Ja
Fasiliteter
Visning
Om boligen
Ønsker du å bo i hjertet av Sandnes i en svært oppgradert og tiltalende leilighet hvor du vil ha hele byen tilgjengelig til enhver tid? Setter du også pris på høy kvalitet og det lille ekstra i boligen? Da er dette leiligheten du har ventet på. Leiligheten ligger i byggets 2. etasje og kan blant annet tilby:
2. etasje. Gang, gjestetoalett, bod, bad, kontor/stue, 2 soverom og stue med åpen kjøkkenløsning. Fra stuen er det utgang til stor terrasse.
Leiligheten disponerer også bod i byggets underetasje.
Leiligheten ligger sentralt i Sandnes. Her er alt du trenger av shopping og kulturliv i gangavstand, både Kulturhuset, kino, Vågen Amfi og handlegaten, Langgata. Det samme gjelder en rekke restauranter og kafeer. I kvartales 1 etg. finnes både Dominos Pizza, The Shack, Yips og Sirkus Renaa.
Salgsoppgaven beskriver vesentlig og lovpålagt informasjon om eiendommen
Se komplett salgsoppgaveNyttige lenker
Nærområdet
Privatmegleren Sandnes
Annonseinformasjon
| FINN-kode | 436067035 |
|---|---|
| Sist endret | 08. jan. 2026 03:10 |
| Referanse | 319250117 |
Annonsene kan være mangelfulle i forhold til lovpålagt opplysningsplikt. Før bindende avtale inngås oppfordres interessenter til å innhente komplett informasjon fra meglerforetaket, selger eller utleier.











































