Bildegalleri

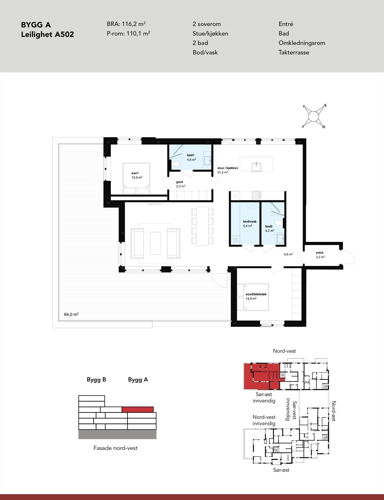
En flott selveierleilighet med en attraktiv og sentral beliggenhet i Sandnes sentrum. Topp- og hjørneleilighet med solrik terrasse på hele 64 kvm.
Sandnes Sentrum
Topp- og hjørneleilighet | Solrik terrasse på hele 64 kvm | Fast p-plass i lukket anlegg | Heis
Prisantydning8 490 000 kr
Nøkkelinfo
- Boligtype
- Leilighet
- Eieform
- Eier (Selveier)
- Soverom
- 2
- Internt bruksareal
- 117 m² (BRA-i)
- Bruksareal
- 117 m²
- Balkong/Terrasse
- 64 m² (TBA)
- Etasje
- 5
- Byggeår
- 2021
- Energimerking
- C - Mørkegrønn
- Rom
- 3
- Tomteareal
- 1 909 m² (eiet)
Visning
Ta kontakt med megler Krister Stangeland Trones på telefon 479 63 664 eller Cecilie vik på telefon 913 38 929.
VisningspåmeldingOm boligen
En flott selveierleilighet med en attraktiv og sentral beliggenhet i Sandnes sentrum.
Topp- og hjørneleilighet med solrik terrasse på hele 64 kvm.
Leiligheten fremstår som moderne med gjennomgående god standard.
Attraktiv beliggenhet midt i Sandnes sentrum. Her har du byen for dine føtter, Langgata like ved og dagligvarebutikk en kort spasertur unna. I kort avstand finner du flere kjøpesentre, togstasjon og bussterminal. Det er gangavstand til restauranter, kafeer og kino.
Kort oppsummert om leiligheten:
- To soverom.
- To bad
- Heis i blokken.
- Oppvarming via fjernvarme.
- Parkering i lukket anlegg, tilrettelagt for ladestasjon.
Velkommen!
Topp- og hjørneleilighet med solrik terrasse på hele 64 kvm.
Leiligheten fremstår som moderne med gjennomgående god standard.
Attraktiv beliggenhet midt i Sandnes sentrum. Her har du byen for dine føtter, Langgata like ved og dagligvarebutikk en kort spasertur unna. I kort avstand finner du flere kjøpesentre, togstasjon og bussterminal. Det er gangavstand til restauranter, kafeer og kino.
Kort oppsummert om leiligheten:
- To soverom.
- To bad
- Heis i blokken.
- Oppvarming via fjernvarme.
- Parkering i lukket anlegg, tilrettelagt for ladestasjon.
Velkommen!
NB: Knappen for å vise hele beskrivelsen har kun en visuell effekt.
NB: Knappen for å vise hele beskrivelsen har kun en visuell effekt.
Salgsoppgaven beskriver vesentlig og lovpålagt informasjon om eiendommen
Se komplett salgsoppgaveNyttige lenker
Nærområdet
EiendomsMegler 1 Sandnes
En del av Sparebank 1 Sør-Norge
Annonseinformasjon
| FINN-kode | 438953181 |
|---|---|
| Sist endret | 25. nov. 2025 11:20 |
| Referanse | 2301250066 |
Annonsene kan være mangelfulle i forhold til lovpålagt opplysningsplikt. Før bindende avtale inngås oppfordres interessenter til å innhente komplett informasjon fra meglerforetaket, selger eller utleier.

































