Bildegalleri

Velkommen til Parkalleen 13 - presentert av Martin Sundet v/ EIE eiendomsmegling!
Byskogen
Flott enebolig med god standard beliggende i et attraktivt område - solrike uteplasser - romslig garasje
Prisantydning5 890 000 kr
Nøkkelinfo
- Boligtype
- Enebolig
- Eieform
- Selveier
- Soverom
- 2
- Internt bruksareal
- 218 m² (BRA-i)
- Bruksareal
- 293 m²
- Eksternt bruksareal
- 75 m² (BRA-e)
- Balkong/Terrasse
- 90 m² (TBA)
- Byggeår
- 1946
- Energimerking
- F - Gul
- Tomteareal
- 640 m² (eiet)
Fasiliteter
Barnevennlig
Balkong/Terrasse
Garasje/P-plass
Kabel-TV
Fiskemulighet
Offentlig vann/kloakk
Parkett
Peis/Ildsted
Turterreng
Aircondition
Sentralt
Bredbåndstilknytning
Moderne
Rolig
Bademulighet
Visning
lørdag, 30. mai
12:00 – 12:45
Alle våre visninger har påmelding. På denne måten sikrer vi at megler har god oversikt og tid til å imøtekomme alle interessenter på beste måte.
Påmelding til visning må gjøres senest innen kl.15.00 dagen før. Visninger uten påmelding vil ikke bli avholdt.
Kontakt også gjerne i forkant av visning dersom du har spørsmål.
Om boligen
Parkalleen 13 ligger relativt høyt og fritt med sol fra morgen til sen kveld. Her bor du i et populært og veletablert villastrøk i kort vei fra sentrum, men med lite gjennomgangstrafikk. Parkalleen er en unikt bred gate, noe som gjør det veldig enkelt med parkering både sommer og vinter.
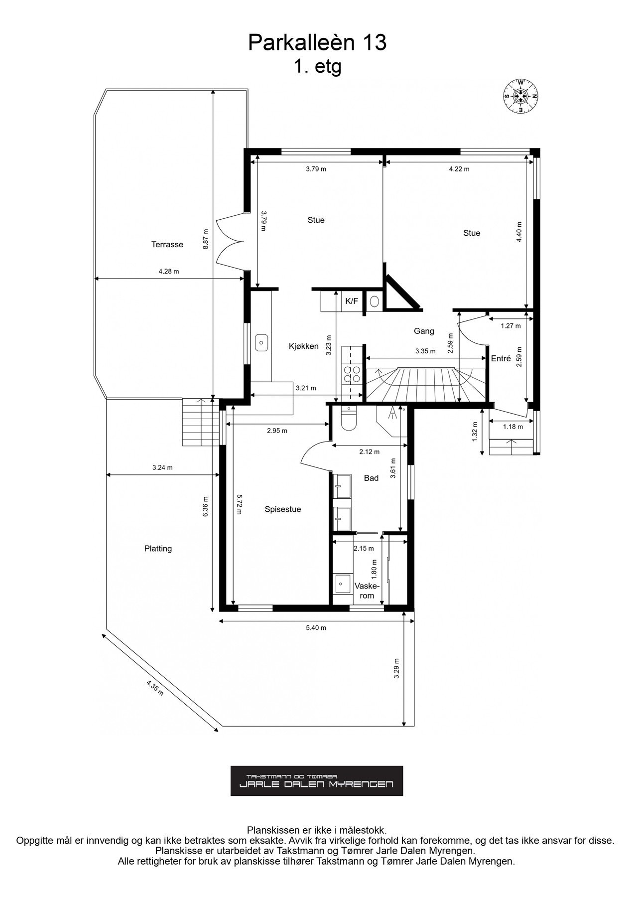
Boligen er oppgradert over tid, og holder i dag god standard. Det er lagt vekt på god kvalitet i oppussingen på bla. kjøkken og bad. Planløsningen går over 3 plan, med underetasje med inn- og utvendig adkomst. I tillegg er det innredet et studio med utvendig adkomst.
Ute finner du en pent opparbeidet hage med flere solrike uteplasser. Gårdsplassen er asfaltert som gir et godt førsteinntrykk.
Her får du en solid enebolig i et familievennlig område, og med kort gangavstand til sentrum. Velkommen til visning!
Boligen er oppgradert over tid, og holder i dag god standard. Det er lagt vekt på god kvalitet i oppussingen på bla. kjøkken og bad. Planløsningen går over 3 plan, med underetasje med inn- og utvendig adkomst. I tillegg er det innredet et studio med utvendig adkomst.
Ute finner du en pent opparbeidet hage med flere solrike uteplasser. Gårdsplassen er asfaltert som gir et godt førsteinntrykk.
Her får du en solid enebolig i et familievennlig område, og med kort gangavstand til sentrum. Velkommen til visning!
NB: Knappen for å vise hele beskrivelsen har kun en visuell effekt.
NB: Knappen for å vise hele beskrivelsen har kun en visuell effekt.
Salgsoppgaven beskriver vesentlig og lovpålagt informasjon om eiendommen
Se komplett salgsoppgaveNyttige lenker
Nærområdet
EIE eiendomsmegling Larvik & Lågendalen
Annonsene kan være mangelfulle i forhold til lovpålagt opplysningsplikt. Før bindende avtale inngås oppfordres interessenter til å innhente komplett informasjon fra meglerforetaket, selger eller utleier.


















































