Bildegalleri

Boligen er fra 1971 og ble påbygd i 1984 med større stue.
Rauli-Spennende enebolig med garasje på flott utsiktstomt + ekstra parkeringsplass! Flotte turmuligheter rett utenfor!
Prisantydning3 690 000 kr
Nøkkelinfo
- Boligtype
- Enebolig
- Eieform
- Selveier
- Soverom
- 3
- Internt bruksareal
- 208 m² (BRA-i)
- Bruksareal
- 239 m²
- Eksternt bruksareal
- 31 m² (BRA-e)
- Balkong/Terrasse
- 21 m² (TBA)
- Etasje
- 2
- Byggeår
- 1971
- Rom
- 4
- Tomteareal
- 1 214 m² (eiet)
Fasiliteter
Balkong/Terrasse
Barnevennlig
Bredbåndstilknytning
Garasje/P-plass
Hage
Kjæledyr tillatt
Offentlig vann/kloakk
Peis/Ildsted
Rolig
Sentralt
Utsikt
Turterreng
Visning
tirsdag, 07. april
16:00 – 17:00
Påmelding til megler innen dagen før visningsdagen. Velkommen!
VisningspåmeldingOm boligen
Boligen er oppført i 1972 og ble påbygd i 1984 med større stue. I den forbindelse ble tak skiftet. Kjøkkenet er også renovert m/Hamran innredning.
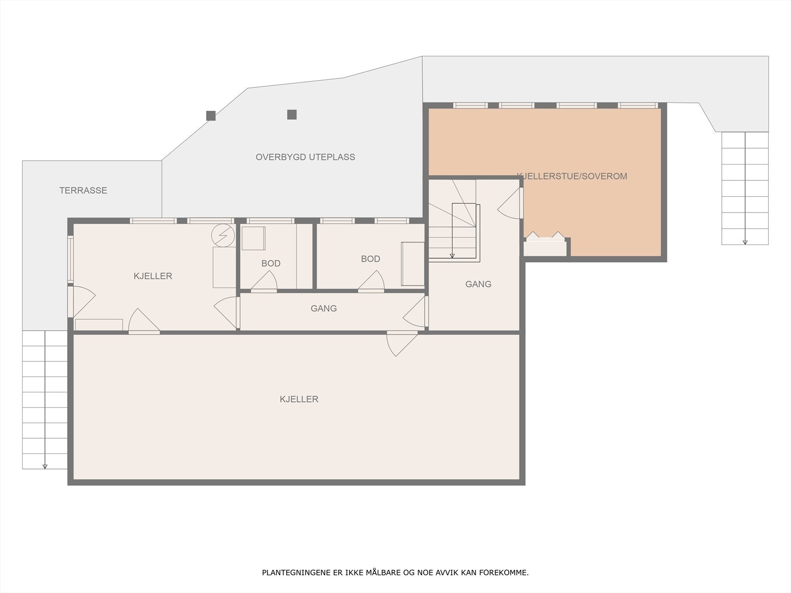
Boligen går over to etasjer og inneholder: Entre/ gang, vaskerom, toalettrom, stor stue, kjøkken m/god spiseplass, bad/ wc, 3 soverom, gang, boder, verksted og grovkjeller med muligheter til flere rom.
Boligen ligger vestvendt i Fløyveien med gode solforhold og nydelig utsikt. Her ser man utover bykjernen, fjorden og Abaldalen. Eiendommen ligger litt for seg selv og har usjenert beliggenhet. Tomten er på 1 213 kvm og er pent opparbeidet og rikt beplantet.
Til boligen er det en stor veranda og en frittstående garasje.
Eiendommen ligger i et attraktivt boligfelt med sentrumsnær beliggenhet.
Velkommen til en flott familiebolig!
Boligen går over to etasjer og inneholder: Entre/ gang, vaskerom, toalettrom, stor stue, kjøkken m/god spiseplass, bad/ wc, 3 soverom, gang, boder, verksted og grovkjeller med muligheter til flere rom.
Boligen ligger vestvendt i Fløyveien med gode solforhold og nydelig utsikt. Her ser man utover bykjernen, fjorden og Abaldalen. Eiendommen ligger litt for seg selv og har usjenert beliggenhet. Tomten er på 1 213 kvm og er pent opparbeidet og rikt beplantet.
Til boligen er det en stor veranda og en frittstående garasje.
Eiendommen ligger i et attraktivt boligfelt med sentrumsnær beliggenhet.
Velkommen til en flott familiebolig!
NB: Knappen for å vise hele beskrivelsen har kun en visuell effekt.
NB: Knappen for å vise hele beskrivelsen har kun en visuell effekt.
Salgsoppgaven beskriver vesentlig og lovpålagt informasjon om eiendommen
Se komplett salgsoppgaveNærområdet
Aktiv Sørlandet
Annonseinformasjon
| FINN-kode | 422534930 |
|---|---|
| Sist endret | 27. mars 2026 11:03 |
| Referanse | 1408240157 |
Annonsene kan være mangelfulle i forhold til lovpålagt opplysningsplikt. Før bindende avtale inngås oppfordres interessenter til å innhente komplett informasjon fra meglerforetaket, selger eller utleier.






















































