Bildegalleri

Privatmegleren ved Morten Liavaag har gleden av å presentere denne nydelige fritidsboligen med hems, tre soverom og to bad beliggende rett ved skiløyper og alpinbakke på Turufjell.
Nydelig fritidsbolig klar til overlevering - Hems med 3 rom - 3 soverom - 2 bad - Skiløyper og alpinbakke rett ved!
- Omkostninger
- 25 840 kr
- Totalpris
- 4 015 840 kr
Nøkkelinfo
- Beliggenhet
- På fjellet
- Boligtype
- Hytte
- Eieform
- Eier (Selveier)
- Internt bruksareal
- 81 m² (BRA-i)
- Bruksareal
- 85 m²
- Eksternt bruksareal
- 4 m² (BRA-e)
- Balkong/Terrasse
- 22 m² (TBA)
- Tomteareal
- 623 m² (eiet)
- Byggeår
- 2025
- Soverom
- 3
- Rom
- 4
Fasiliteter
Om boligen
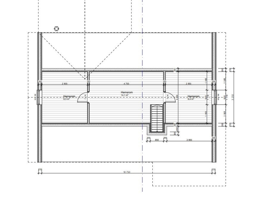
Velkommen til Slåttemyrlie 38 som er en nydelig fritidsbolig beliggende på fantastiske Turufjell. Tomten har en attraktiv og solrik beliggenhet med natur og aktiviteter i nærheten. Med langrennssporene rett utenfor hytteveggen og alpinbakken på andre siden av veien ligger alt til rette for et godt hytteliv. Alpinbakken har syv nedfarter og 2 heiser, samt et barnebånd. Hytta skal bygges på Slåtta Øst tomt 471.
Hytta som er bygd er en Nystølen 3 med hems. Hemsen har et gulvareal på ca. 35 kvm og inneholder tre disponible rom. I tillegg er det tre romslige soverom, hvor hovedsoverommet har eget bad. Stue og kjøkken i åpen løsning med herlig peis som gir rikelig med varme og hygge. Her kan man samle hele familien med andre ord.
Fritidsboligen er klar til overlevering!
Salgsoppgaven beskriver vesentlig og lovpålagt informasjon om eiendommen
Se komplett salgsoppgaveNyttige lenker
Nærområdet
PrivatMegleren Hallingdal
Prisstatistikk
Slåttemyrlie 38
på annonsen
prisantydning per kvadratmeter
Prisfordeling
Pris per m² ligger 2 259 kr over snittet for hytter i Flå.
Grafen viser antall hytter solgt i Flå siste året fordelt på pris per m² - totalt 49 hytter
Antall boliger
Kvadratmeterpris tilsvarer prisantydning pluss fellesgjeld per kvadratmeter (p-rom eller BRA-i). Prisene i grafen er avrundet til nærmeste 1000 kr.
Annonseinformasjon
| FINN-kode | 379525454 |
|---|---|
| Sist endret | 30. aug. 2025 19:24 |
| Referanse | 324240144 |
Annonsene kan være mangelfulle i forhold til lovpålagt opplysningsplikt. Før bindende avtale inngås oppfordres interessenter til å innhente komplett informasjon fra meglerforetaket, selger eller utleier.



























































