Bildegalleri

Velkommen til flotte Glengsgata 20. Togstasjonen og bykjernen er en kort rusletur unna, det samme er vakre friområder langs vannet i Glengshølen.
Sentrum
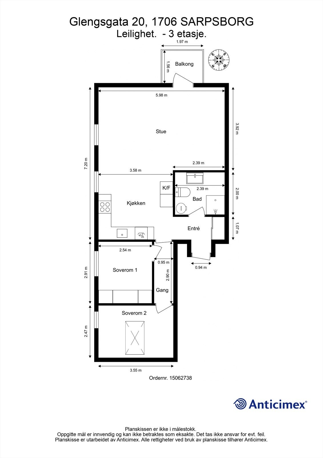
3-roms loftsleilighet med balkong, stor takhøyde og klassisk atmosfære! Flott utsikt. Egen parkeringsplass.
Prisantydning2 790 000 kr
Nøkkelinfo
- Boligtype
- Leilighet
- Eieform
- Eier (Selveier)
- Soverom
- 2
- Internt bruksareal
- 62 m² (BRA-i)
- Bruksareal
- 66 m²
- Eksternt bruksareal
- 4 m² (BRA-e)
- Balkong/Terrasse
- 3 m² (TBA)
- Etasje
- 3
- Byggeår
- 1880
- Energimerking
- G - Rød
- Rom
- 3
- Tomteareal
- 1 252 m² (eiet)
Fasiliteter
Balkong/Terrasse
Bredbåndstilknytning
Garasje/P-plass
Kjæledyr tillatt
Ingen gjenboere
Kabel-TV
Parkett
Sentralt
Utsikt
Turterreng
Lademulighet
Visning
Passer ikke oppsatt visningstid? Kontakt megler for privatvisning. Husk å melde deg på om du skal delta på fellesvisning.
VisningspåmeldingOm boligen
Tre-roms loftsleilighet med stor takhøyde, midt i byen
- Privat balkong, solfylt første del av dagen
- Flott, langstrakt utsikt fra de fleste rom
- Velholdt standard fra den ble etablert rundt 2008
- Stilfullt, klassisk moderne kjøkken med hvitevarer
- Egen parkeringsplass på felles parkeringsområde
- Bod av god størrelse i kjeller
- Oversiktlig sameie i ett av byens vakreste bygg
- Idylliske tur- og aktivitetsområder i nærliggende Glengshølen
- Kun kort gangavstand til togstasjonen og sentrum for øvrig
NB: Knappen for å vise hele beskrivelsen har kun en visuell effekt.
NB: Knappen for å vise hele beskrivelsen har kun en visuell effekt.
Salgsoppgaven beskriver vesentlig og lovpålagt informasjon om eiendommen
Se komplett salgsoppgaveNyttige lenker
Nærområdet
Krogsveen Fredrikstad og Sarpsborg
Verdien av en god megler.
Annonseinformasjon
| FINN-kode | 374780057 |
|---|---|
| Sist endret | 21. jan. 2026 12:35 |
| Referanse | KR67.24344 |
Annonsene kan være mangelfulle i forhold til lovpålagt opplysningsplikt. Før bindende avtale inngås oppfordres interessenter til å innhente komplett informasjon fra meglerforetaket, selger eller utleier.

























