Bildegalleri

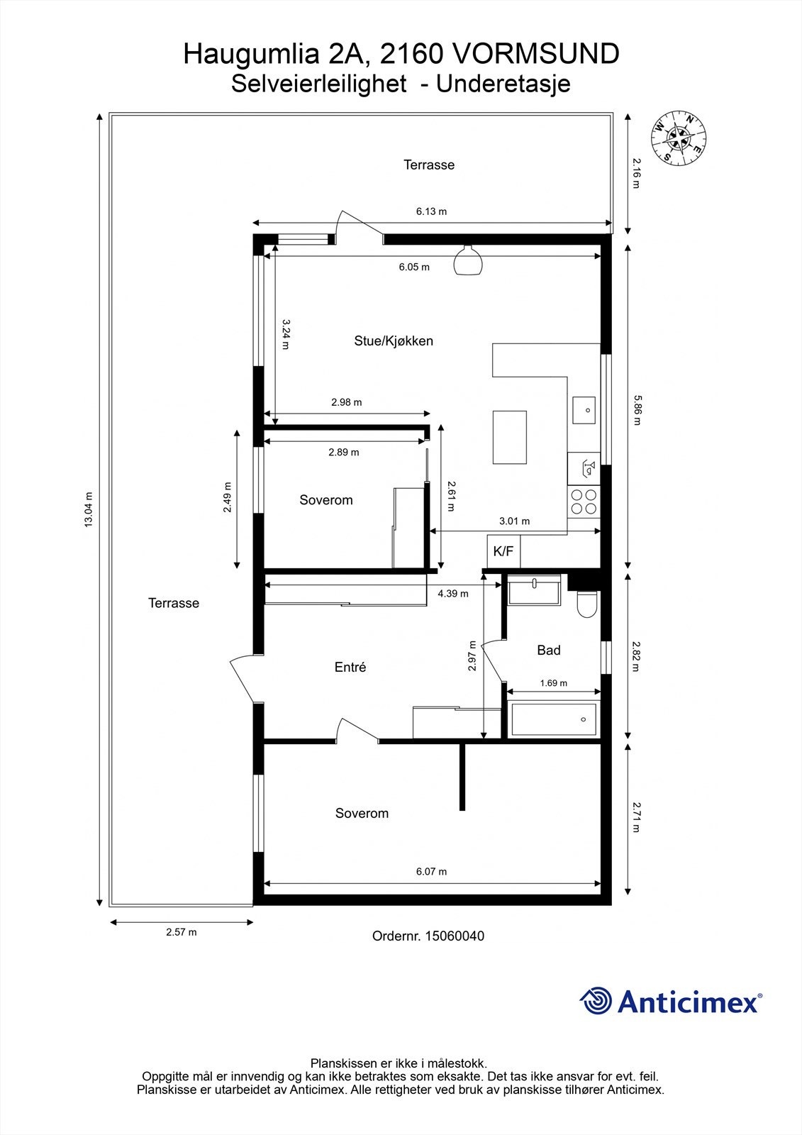
Leiligheten har en åpen kjøkken - stueløsning som gir god plassutnyttelse i leiligheten.
Solgt
Vormsund
Pen 3-roms i landlige omgivelser | lave felleskostnader | carport | solrikt uteområde
Prisantydning2 890 000 kr
Nøkkelinfo
- Boligtype
- Leilighet
- Eieform
- Eier (Selveier)
- Soverom
- 2
- Internt bruksareal
- 72 m² (BRA-i)
- Bruksareal
- 72 m²
- Balkong/Terrasse
- 47 m² (TBA)
- Etasje
- 1
- Byggeår
- 2016
- Energimerking
- C - Rød
- Rom
- 3
- Tomteareal
- 2 m² (eiet)
Fasiliteter
Balkong/Terrasse
Garasje/P-plass
Golfbane
Hage
Offentlig vann/kloakk
Peis/Ildsted
Rolig
Turterreng
Om boligen
Eiendomsmegler Krogsveen v/Marcus Grundy har gleden av å presentere Haugumlia 2a, en flott 3-roms selveierleilighet med umiddelbar nærhet til Nes golfklubb. Fra leiligheten ser du utover det pene parkanlegget.
Uteområdet er solrikt hvor terrassen strekker seg rundt hushjørnet og solen kan nytes store deler av dagen. Terrassen blir også en forlengelse av stuen på fine sommerdager. Leiligheten kan by på 2 soverom, en åpen kjøkken - stueløsning og et pent og innbydende bad. I tiljnytning sameiet har du også egen carport.
Fra leiligheten har du kort vei til Amfi Eurosenteret på Vormsund som kan skilte med matbutikker, apotek, klesbutikker, kafé og frisør.
Velkommen til visning.
Uteområdet er solrikt hvor terrassen strekker seg rundt hushjørnet og solen kan nytes store deler av dagen. Terrassen blir også en forlengelse av stuen på fine sommerdager. Leiligheten kan by på 2 soverom, en åpen kjøkken - stueløsning og et pent og innbydende bad. I tiljnytning sameiet har du også egen carport.
Fra leiligheten har du kort vei til Amfi Eurosenteret på Vormsund som kan skilte med matbutikker, apotek, klesbutikker, kafé og frisør.
Velkommen til visning.
NB: Knappen for å vise hele beskrivelsen har kun en visuell effekt.
NB: Knappen for å vise hele beskrivelsen har kun en visuell effekt.
Salgsoppgaven beskriver vesentlig og lovpålagt informasjon om eiendommen
Se komplett salgsoppgaveNyttige lenker
Nærområdet
Krogsveen Årnes
Verdien av en god megler.
Prisstatistikk
Haugumlia 2A
13 133 klikk
på annonsen
40 295 kr
prisantydning per kvadratmeter
Prisfordeling
Pris per m² ligger 6 705 kr under snittet for leiligheter i Nes.
Grafen viser antall leiligheter solgt i Nes siste året fordelt på pris per m² - totalt 154 leiligheter
Antall boliger
Kvadratmeterpris tilsvarer prisantydning pluss fellesgjeld per kvadratmeter (p-rom eller BRA-i). Prisene i grafen er avrundet til nærmeste 1000 kr.
Lignende boliger til salgs
2 690 000 kr
Årnes
Totalpris: 2 757 250 kr


5 600 000 kr
Vormsund
Enebolig med garasje og utleiemulighet- 2,2 mål tomt - Landlig beliggende kun 1,8 km fra Neskollen
Totalpris: 5 741 350 kr


2 990 000 kr


5 800 000 kr
Vormsund
Oppusset enebolig med godkjent hybel/sokkelleilighet i trygt og rolig nabolag med kort vei til skole og barnehage!
Totalpris: 5 946 090 kr


3 190 000 kr
Årnes
Stor 2-roms selveierleilighet i 3. etg med garasjeplass og romslig balkong -Meget sentral beliggenhet!
Totalpris: 3 271 140 kr


3 750 000 kr
Vormsund
Flott 4-roms selveier i herlige omgivelser på Vormsund brygge | Stor, sydvendt balkong | Heis | Parkering i garasje
Totalpris: 3 844 840 kr
Annonseinformasjon
| FINN-kode | 371023605 |
|---|---|
| Sist endret | 12. des. 2025 06:02 |
| Referanse | KR24.2480 |
Annonsene kan være mangelfulle i forhold til lovpålagt opplysningsplikt. Før bindende avtale inngås oppfordres interessenter til å innhente komplett informasjon fra meglerforetaket, selger eller utleier.



























