Bildegalleri

Velkommen til Ilsåsbakken 15!
Rena - Romslig, sentralt beliggende enebolig med innredet sokkelkjeller. Vannbåren gulvvarme. Garasje med sokkeletasje.
Prisantydning3 790 000 kr
Nøkkelinfo
- Boligtype
- Enebolig
- Eieform
- Selveier
- Soverom
- 4
- Internt bruksareal
- 338 m² (BRA-i)
- Bruksareal
- 440 m²
- Eksternt bruksareal
- 102 m² (BRA-e)
- Balkong/Terrasse
- 132 m² (TBA)
- Byggeår
- 1955
- Energimerking
- Rom
- 6
- Tomteareal
- 5 184 m² (eiet)
Fasiliteter
Balkong/Terrasse
Barnevennlig
Garasje/P-plass
Hage
Offentlig vann/kloakk
Peis/Ildsted
Rolig
Sentralt
Utsikt
Bademulighet
Fiskemulighet
Turterreng
Lademulighet
Visning
mandag, 18. mai
18:00 – 18:30
Alle våre visninger har påmelding. På denne måten sikrer vi at megler har god oversikt og tid til å imøtekomme alle interessenter på beste måte. Skulle ingen være påmeldt til visningen, vil visningen ikke bli gjennomført. Passer ikke annonsert tidspunkt, ta kontakt så finner vi en løsning.
VisningspåmeldingOm boligen
Velkommen til Rena og Ilsåsbakken 15!
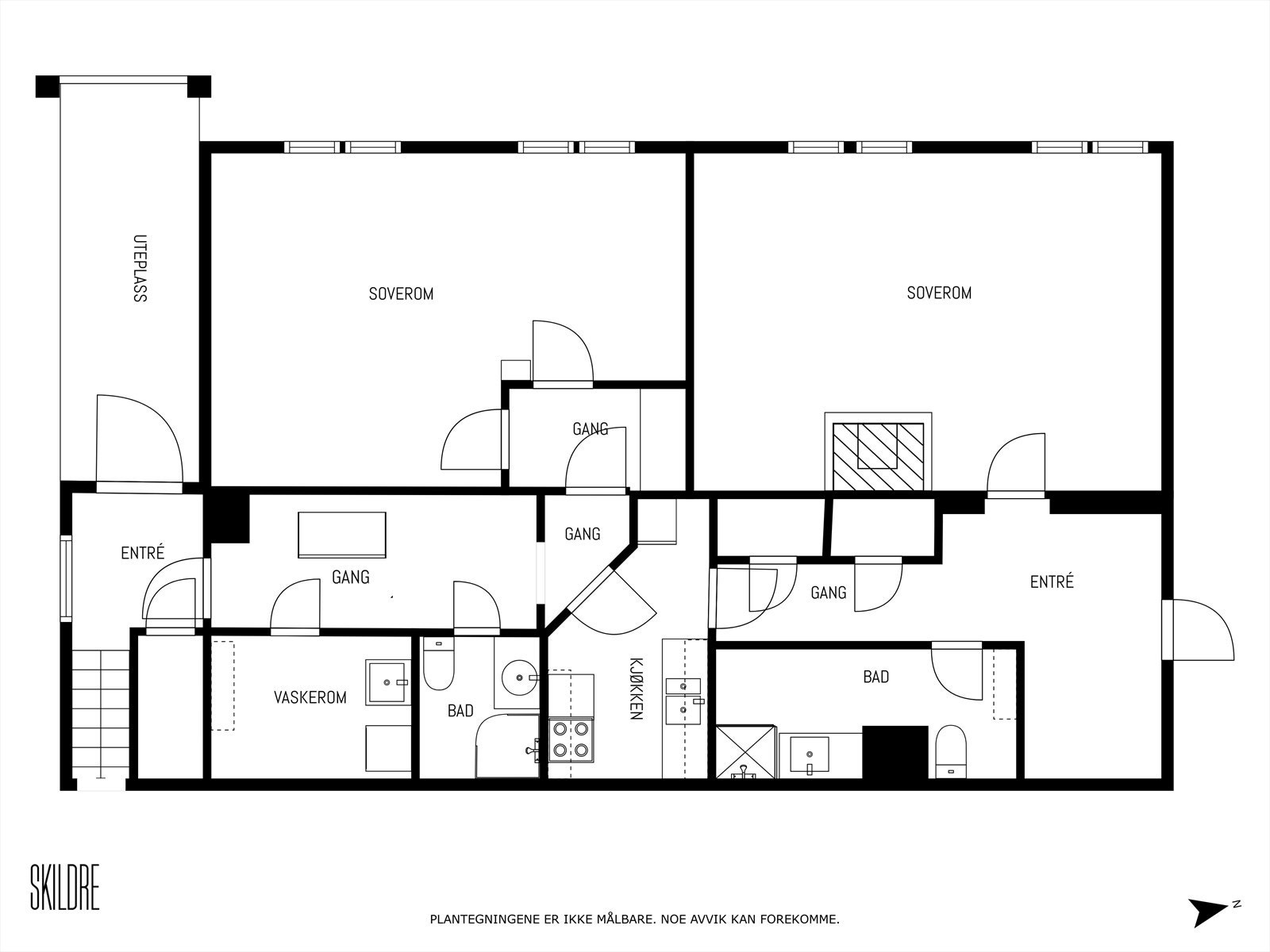
Her har vi gleden av å presentere en romslig enebolig over to plan med innredet sokkelkjeller. Boligen har blant annet to stuer, to kjøkken, 3 bad, vaskerom, toalettrom og fire soverom. Vannbåren gulvvarme. Solrike terrasser i 1.etasje og luftebalkong i 2.etasje. Frittstående garasje med sokkeletasje som har plass til tre biler. Mulighet for lading av el-bil.
Det er kort vei til Glomma fra eiendommen, og inn til Rena sentrum er det ca. 1,5 km. Kort vei til barnehage, skoler og Rena leir.
Link: https://youtu.be/94Tv_EkBk8o
Velkommen til visning!
Meld deg på via påmeldingsknappen eller ta kontakt med Hans Petter Carlsson, eiendomsmegler MNEF på tlf. 911 25 518.
Her har vi gleden av å presentere en romslig enebolig over to plan med innredet sokkelkjeller. Boligen har blant annet to stuer, to kjøkken, 3 bad, vaskerom, toalettrom og fire soverom. Vannbåren gulvvarme. Solrike terrasser i 1.etasje og luftebalkong i 2.etasje. Frittstående garasje med sokkeletasje som har plass til tre biler. Mulighet for lading av el-bil.
Det er kort vei til Glomma fra eiendommen, og inn til Rena sentrum er det ca. 1,5 km. Kort vei til barnehage, skoler og Rena leir.
Link: https://youtu.be/94Tv_EkBk8o
Velkommen til visning!
Meld deg på via påmeldingsknappen eller ta kontakt med Hans Petter Carlsson, eiendomsmegler MNEF på tlf. 911 25 518.
NB: Knappen for å vise hele beskrivelsen har kun en visuell effekt.
NB: Knappen for å vise hele beskrivelsen har kun en visuell effekt.
Salgsoppgaven beskriver vesentlig og lovpålagt informasjon om eiendommen
Se komplett salgsoppgaveNyttige lenker
Nærområdet
Meglerhuset Østlandet AS
Annonseinformasjon
| FINN-kode | 361324472 |
|---|---|
| Sist endret | 13. mai 2026 16:04 |
| Referanse | GAR14.2462 |
Annonsene kan være mangelfulle i forhold til lovpålagt opplysningsplikt. Før bindende avtale inngås oppfordres interessenter til å innhente komplett informasjon fra meglerforetaket, selger eller utleier.













































































