Bildegalleri

Inaktiv
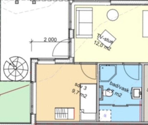
2-roms hybelleilighet på Langhus
- Månedsleie
- 9 500 kr
Nøkkelinfo
- Primærrom
- 30 m²
- Boligtype
- Hybel
- Soverom
- 1
- Etasje
- 1.
- Leieperiode
- 01.06.2025
Fasiliteter
Umøblert
Balkong/Terrasse
Utsikt
Beskrivelse
Hybeldelen er i 1 etasje med egen inngang og minikjøkken i en helt ny tomannsbolig.
Nærme togstasjon. Ta kontakt for ytterligere informasjon.
Er ikke interessert i å leie ut til par eller flere.
Nærme togstasjon. Ta kontakt for ytterligere informasjon.
Er ikke interessert i å leie ut til par eller flere.
NB: Knappen for å vise hele beskrivelsen har kun en visuell effekt.
NB: Knappen for å vise hele beskrivelsen har kun en visuell effekt.
Visning
Ta kontakt for å avtale visning.Trenger du en kontrakt?
- Utfylt kontrakt med opplysninger fra annonsen
- Digital signering
- Gratis tjeneste
- Godkjent av Forbrukerrådet
Nærområdet
Annonsene kan være mangelfulle i forhold til lovpålagt opplysningsplikt. Før bindende avtale inngås oppfordres interessenter til å innhente komplett informasjon fra meglerforetaket, selger eller utleier.







