Bildegalleri

Verksbyen
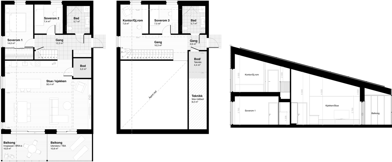
Verket Atrium hus C (Future Living)
SYDVENDT TOPPLEILIGHET OVER TO PLAN. Gjennomgående leilighet. Åpen og innglasset balkong.
Prisantydning12 495 000 kr
Kort om prosjektet
Verksbyen er en grønn bydel, drevet med solenergi. Her bor du sentralt i Fredrikstad, uten støy fra sentrum, og med en av Norges vakreste parker i midten av bydelen. Denne annonsen gjelder hus C i Verket Atrium.
Prosjektets status
Planlegging
Utført
Salgsstart
Lansert.
Byggestart
Igangsatt
Overtakelse
Estimert til oktober-desember i 2026.
Nøkkelinfo
- Boligtype
- Leilighet
- Etasje
- 5
- Soverom
- 4
- Primærrom
- 133 m²
- Bruksareal
- 144 m²
- Energimerking
- A - Lysegrønn
Beskrivelse
C507 SYDVENDT TOPPLEILIGHET OVER TO PLAN
Gjennomgående leilighet. Åpen og innglasset balkong.
Standard
- Solenergi
- Smarthus
- Passivhus
- Vannbåren gulvvarme
- Screens på solutsatte vinduer
- Speilskap med LED belysning
- Vegghengt klosett med soft close
- Takhøy Sigdal Uno kjøkken
- 3 stavs eikeparkett
- 30 x 60 fliser på baderomsvegg
- 30 x 30 fliser på baderomsgulv
- Oppgradert hvitevarepakke
- Valgfrie farger fra Arca Novas fargepalett
- Integrert komfyrvakt
- Parkering i p-kjeller
NB: Knappen for å vise hele beskrivelsen har kun en visuell effekt.
NB: Knappen for å vise hele beskrivelsen har kun en visuell effekt.
Nyttige lenker
Nærområdet
Arca Nova Bolig AS
Arca Nova Bolig AS
Utbygger
Annonsene kan være mangelfulle i forhold til lovpålagt opplysningsplikt. Før bindende avtale inngås oppfordres interessenter til å innhente komplett informasjon fra meglerforetaket, selger eller utleier.



