Bildegalleri
Sett fra forsiden - garasje på bakkenivå, leiligheten ligger i 2 etasje på dette hjørnet.
Utleid
2 ROMS LEILIGHET PÅ RØA
- Månedsleie
- 15 000 kr
- Depositum
- 45 000 kr
Nøkkelinfo
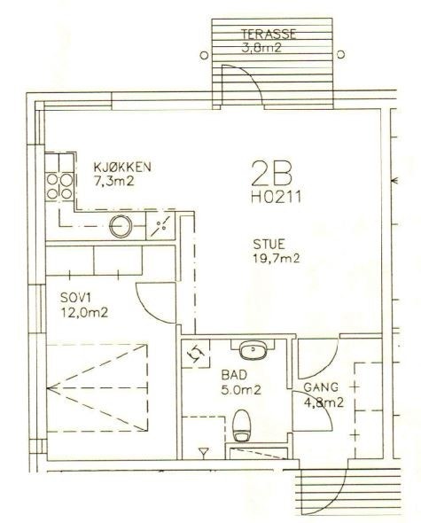
- Primærrom
- 52 m²
- Boligtype
- Leilighet
- Soverom
- 1
- Etasje
- 2.
- Leieperiode
- 15.08.2025 - 01.09.2028
Fasiliteter
Umøblert
Balkong/Terrasse
Bredbåndstilknytning
Heis
Moderne
Parkett
Rolig
Sentralt
Utsikt
Vaktmester-/vektertjeneste
Turterreng
Beskrivelse
2-roms leilighet i Aslak Hage. Leiligheten ligger i 2.etasje i lavblokk med heis bygget i 2006. Leies ut med komfyr, kjøl/frys, vaskemaskin og tørketrommel. Leiligheten inneholder, gang med adgang til stort flislagt bad og stue med adgang til terasse, soverom, og kjøkken med "spisekrok". Eiendommen grenser til Mærradalen, og har utsikt mot Holmenkollåsen.
Leiligheten ligger i rolige omgivelser i gangavstand fra Røa sentrum. Her finner du alle typer butikker og cafeer, samt T-bane. Fra Oslo Sentrum tar man T-bane mot Østerås, alternativt buss, som stopper ca 100 m fra Aslak Hage - se vedlagte kart.
Rema 1000 ligger ca 100 meter fra inngangen.
Garasjeplass og bod i fellesgarasje kan leies ut mot et tillegg.
Tidspunkt for visning av leiligheten må avtales.
Leiligheten ligger i rolige omgivelser i gangavstand fra Røa sentrum. Her finner du alle typer butikker og cafeer, samt T-bane. Fra Oslo Sentrum tar man T-bane mot Østerås, alternativt buss, som stopper ca 100 m fra Aslak Hage - se vedlagte kart.
Rema 1000 ligger ca 100 meter fra inngangen.
Garasjeplass og bod i fellesgarasje kan leies ut mot et tillegg.
Tidspunkt for visning av leiligheten må avtales.
NB: Knappen for å vise hele beskrivelsen har kun en visuell effekt.
NB: Knappen for å vise hele beskrivelsen har kun en visuell effekt.
Trenger du en kontrakt?
- Utfylt kontrakt med opplysninger fra annonsen
- Digital signering
- Gratis tjeneste
- Godkjent av Forbrukerrådet
Nærområdet
Annonsene kan være mangelfulle i forhold til lovpålagt opplysningsplikt. Før bindende avtale inngås oppfordres interessenter til å innhente komplett informasjon fra meglerforetaket, selger eller utleier.











