Eksklusiv hytte på Geilo, m Jacuzzi
Boligtype
Feriehjem
Størrelse
150 m²
Soverom
5
Senger
12
Baderom
2
Trygg og enkel bestilling av feriehjem
Bestill feriehjem på en sikker og fleksibel måte. Du sender først en forespørsel til utleier - og betaler kun dersom utleier godkjenner.
Om boligen
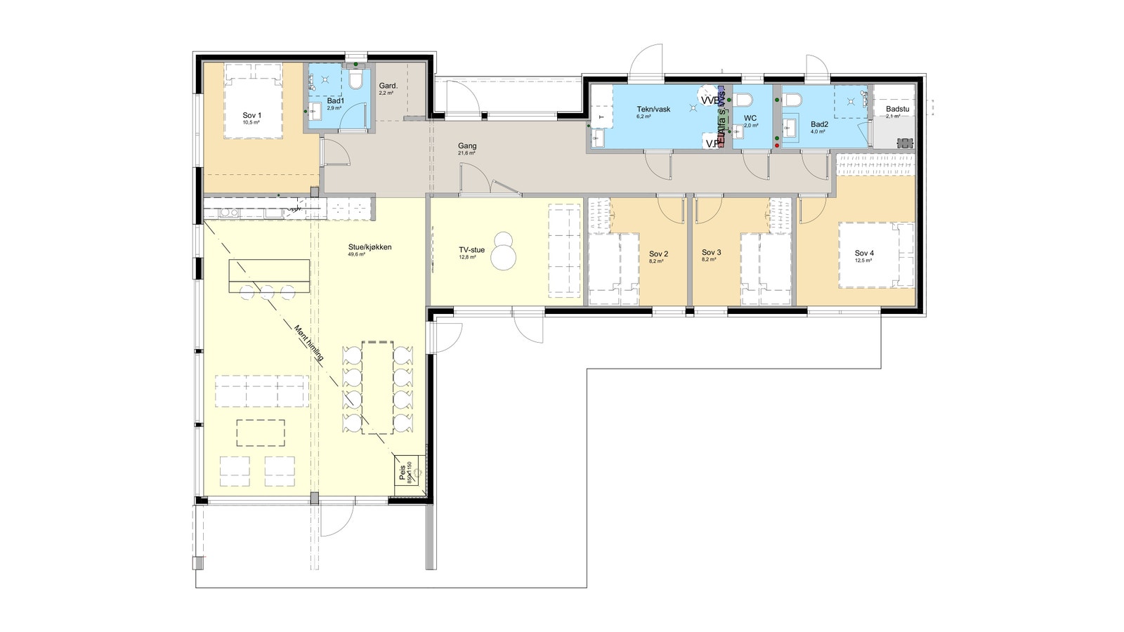
Denne eksklusive hytta er på 150 kvm. Den ligger i Blomsetlie, på Geilos solside med panoramautsikt over Havsdalen og Geilo. Hytta har en god og romslig planløsning som inneholder stue med åpent kjøkken, 5 soverom (da er tv-stua m sovesofa inkl.), 2 bad hvorav ett med badstue, ekstra separat wc-rom, vaskerom og gang med garderobe. Det er totalt 12 sengeplasser (inkl 2 på sovesofa i TV-stua. Denne sofaen er meget god). Hytta er velutstyrt og eksklusivt innredet. Spisebordet er tre meter langt og det er god plass rundt bordet.
Salongen i stua er både praktisk og nydelig, og den åpne planløsningen gjør rommet til et perfekt samlingsted for 12 personer.
En stor romslig terrasse, med stort bord og mange gode sitteplasser. Bålpanne og deilige skinn til utemøblene.
Hytta er ny og den har blitt leid ut jevnt og trutt siden januar 2023. En unik hytte som det ikke finnes maken til i leiemarkedet. Svært høy standard på alt.
Utleier sørger for oppredde senger, og rikelig med håndkleder til gjestene. Svært god kvalitet på sengetøy og håndklær. Det er en grunn til at rengjøringsgebyret er høyt, da dette dekker renhold av både hytte og sengetøy/hånkler.
Dette er en hytte av typen «Sjemmedalhytta Tyri vinkel 150». Med ekte kjærlighet for design og håndverk har ikke Sjemmedalhytta spart på noe her. Mer eksklusive hytte for utleie på Geilo blir vanskelig å finne.
Det er også en stor garasje, med plass til en bil og masse skiutstyr/sykler. Det er også mulig å lade el-bil.
Hytta er innredet med smakfulle møbler og interiør fra bl.a Artwood, Slettvoll og senger fra Englesson. Hvitevarer er av beste kvalitet, og to store Miele kombi kjøle/frys skap gjør det mulig å få plass til all den deilige maten som en tur til en slik hytte innbyr til.
Det er topp kvalitet på alt, servise, bestikk og glass. Det er lagt til rette for ekte kvalitet og eksklusiv hyttekos.
Husdyr er dessverre ikke tillat pga allergi, men ved enkelte anledninger gjøres det unntak.
Hytta leies ut både weekender og på ukesbasis.
Vi unner alle å oppleve stedets magiske evne til å få hvilepuls og sjelefred, for det er nettopp dette du kan oppleve på denne fantastiske hytta.
Salongen i stua er både praktisk og nydelig, og den åpne planløsningen gjør rommet til et perfekt samlingsted for 12 personer.
En stor romslig terrasse, med stort bord og mange gode sitteplasser. Bålpanne og deilige skinn til utemøblene.
Hytta er ny og den har blitt leid ut jevnt og trutt siden januar 2023. En unik hytte som det ikke finnes maken til i leiemarkedet. Svært høy standard på alt.
Utleier sørger for oppredde senger, og rikelig med håndkleder til gjestene. Svært god kvalitet på sengetøy og håndklær. Det er en grunn til at rengjøringsgebyret er høyt, da dette dekker renhold av både hytte og sengetøy/hånkler.
Dette er en hytte av typen «Sjemmedalhytta Tyri vinkel 150». Med ekte kjærlighet for design og håndverk har ikke Sjemmedalhytta spart på noe her. Mer eksklusive hytte for utleie på Geilo blir vanskelig å finne.
Det er også en stor garasje, med plass til en bil og masse skiutstyr/sykler. Det er også mulig å lade el-bil.
Hytta er innredet med smakfulle møbler og interiør fra bl.a Artwood, Slettvoll og senger fra Englesson. Hvitevarer er av beste kvalitet, og to store Miele kombi kjøle/frys skap gjør det mulig å få plass til all den deilige maten som en tur til en slik hytte innbyr til.
Det er topp kvalitet på alt, servise, bestikk og glass. Det er lagt til rette for ekte kvalitet og eksklusiv hyttekos.
Husdyr er dessverre ikke tillat pga allergi, men ved enkelte anledninger gjøres det unntak.
Hytta leies ut både weekender og på ukesbasis.
Vi unner alle å oppleve stedets magiske evne til å få hvilepuls og sjelefred, for det er nettopp dette du kan oppleve på denne fantastiske hytta.
Rom og sengeplasser
Fasiliteter
Husregler og tilgjengelighet
- Rullestolvennlig
- Røyking ikke tillatt
- Kjæledyr ikke tillatt
Regler for avbestilling
- Full refusjon hvis avbestillingen skjer mer enn 30 dager før innsjekksdato.
- 50 % refusjon hvis avbestillingen skjer 14–30 dager før innsjekksdato.
- Ingen refusjon hvis avbestillingen skjer mindre enn 14 dager før innsjekksdato.
Beliggenheten
Hytta ligger høyt og solrikt til i vakre Blomsetlie med fantastisk utsikt mot bl.a. Geilo, alpinbakkene og Havsdalen. I umiddelbar nærhet ligger skiløyper som leder til milevis av skiglede innover i fjellheimen. Det er også kort vei til nærmeste alpinanlegg og ca fire km til Geilo sentrum.
Geilo ‑ en nasjonalparklandsby.
Som en naturlig innfallsport til mektige Hallingskarvet og Nord‑Europas største høyfjellsplatå, Hardangervidda, ligger Geilo nasjonalparklandsby omlag 794 moh. Geilo er det største tettstedet i Hol kommune, og her bor omtrent halvparten av kommunens 4500 innbyggere. Geilo ble i 2008 utpekt som nasjonalparklandsby, og er et av fem tettsteder i Norge som kan smykke seg med denne tittelen.
Fjellbyen Geilo er et av Norges mest komplette reisemål og skidestinasjoner. I Geilo sentrum finner du et bredt utvalg innen spisesteder, service og shopping. Alt ligger sentralt til med kort avstand til Geilos øvrige tilbud. Geilo sentrum har vært under stor utvikling den siste tiden og er nå blitt til et av landets flotteste sentrum.
Geilo og Hol kommune kan by på et langrennsparadis. Med over 550 km oppkjørte og velpreparerte langrennsløyper kan du velge mellom flotte høyfjellsløyper, eller koselige løyper i skjermet skogsterreng. Legg gjerne turen innom et av de hyggelige serveringsstedene som det finnes flere av, noen av disse har også åpent om sommeren. Her er også de perfekte forhold tilrettelagt for både alpinister, jibbere, og snowboard entusiaster. Totalt tilbys 21 heiser og 39 løyper fordelt på to sider av sentrum. Bakkene passer for hele familien ‑ enten du er nybegynner eller ekspert. Geilo skiheiser har også et meget godt servicetilbud med bl.a. skikafèer, skiutleier, skiskole og skishop. Det er også mulighet for barnepass. På Geilo finner du ekte skiglede hvor barna er i fokus.
De nye skibussene går i skytteltrafikk mellom Geiloheisen og Vestlia og sørger for en rask og enkel forflytning mellom dalsidene. Om sommeren er også mulighetene mange i vakre naturomgivelser, her er det uendelige turmuligheter enten du vil gå en kort tur med barna eller ønsker å legge ut på en ukestur i fantastisk fjellterreng. For de som liker å ta en sykkeltur, kan man velge alt fra rolig sykkeltur på en grusvei, en lengre tur på f.eks. Rallarvegen eller downhillsykling for de som ønsker mer fart. Det er muligheter for å fiske i en av mange fjellvann, ridning og stallbesøk, eller man kan teste klatreferdighetene i Geilo høydepark.
En kort kjøretur fra Geilo finner du en av Europas beste raftingelver i Dagali. Her kan man kaste seg ut i ville stryk, eller ta en rolig tur for hele
familien.
Se ellers www.geilo.no for god og utfyllende informasjon.
Geilo ‑ en nasjonalparklandsby.
Som en naturlig innfallsport til mektige Hallingskarvet og Nord‑Europas største høyfjellsplatå, Hardangervidda, ligger Geilo nasjonalparklandsby omlag 794 moh. Geilo er det største tettstedet i Hol kommune, og her bor omtrent halvparten av kommunens 4500 innbyggere. Geilo ble i 2008 utpekt som nasjonalparklandsby, og er et av fem tettsteder i Norge som kan smykke seg med denne tittelen.
Fjellbyen Geilo er et av Norges mest komplette reisemål og skidestinasjoner. I Geilo sentrum finner du et bredt utvalg innen spisesteder, service og shopping. Alt ligger sentralt til med kort avstand til Geilos øvrige tilbud. Geilo sentrum har vært under stor utvikling den siste tiden og er nå blitt til et av landets flotteste sentrum.
Geilo og Hol kommune kan by på et langrennsparadis. Med over 550 km oppkjørte og velpreparerte langrennsløyper kan du velge mellom flotte høyfjellsløyper, eller koselige løyper i skjermet skogsterreng. Legg gjerne turen innom et av de hyggelige serveringsstedene som det finnes flere av, noen av disse har også åpent om sommeren. Her er også de perfekte forhold tilrettelagt for både alpinister, jibbere, og snowboard entusiaster. Totalt tilbys 21 heiser og 39 løyper fordelt på to sider av sentrum. Bakkene passer for hele familien ‑ enten du er nybegynner eller ekspert. Geilo skiheiser har også et meget godt servicetilbud med bl.a. skikafèer, skiutleier, skiskole og skishop. Det er også mulighet for barnepass. På Geilo finner du ekte skiglede hvor barna er i fokus.
De nye skibussene går i skytteltrafikk mellom Geiloheisen og Vestlia og sørger for en rask og enkel forflytning mellom dalsidene. Om sommeren er også mulighetene mange i vakre naturomgivelser, her er det uendelige turmuligheter enten du vil gå en kort tur med barna eller ønsker å legge ut på en ukestur i fantastisk fjellterreng. For de som liker å ta en sykkeltur, kan man velge alt fra rolig sykkeltur på en grusvei, en lengre tur på f.eks. Rallarvegen eller downhillsykling for de som ønsker mer fart. Det er muligheter for å fiske i en av mange fjellvann, ridning og stallbesøk, eller man kan teste klatreferdighetene i Geilo høydepark.
En kort kjøretur fra Geilo finner du en av Europas beste raftingelver i Dagali. Her kan man kaste seg ut i ville stryk, eller ta en rolig tur for hele
familien.
Se ellers www.geilo.no for god og utfyllende informasjon.
I nærheten
Geilo, Hol, Buskerud, Norge
Nabolagsprofil
Vurderinger fra gjester
| FINN-kode | 282575755 |
|---|---|
| Sist endret | 30. mars 2025, 19:58 |















































