Bildegalleri
Containerhus - Mikrohus / minihus / hytte
Til salgs
120 000 kr
Beskrivelse av varen
Tilstand: Må fikses - Noen mangler/ødelagte deler
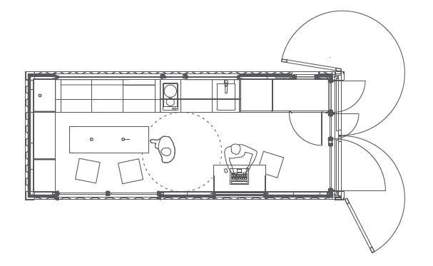
En stk EcoCube Mini+, arkitekttegnet mobilt mikrohus til salgs. Dette er en gammel 20' fraktcontainer som gjennom nitidig arbeid har blitt bygget om til en smart mikrobolig.
Boenheten er utstyrt med hybelkjøkken og lite wc med tørrtoalett, og en utfyllende liste med smart teknologi. Sofaen blir til seng ved å trekke ut skuffene, man får da en 120cm seng. Plate til å legge oppå skuffene må fikses av kjøper da den har blitt borte.
Vi vil gjøre oppmerksom på følgende, som er grunnen til at vi selger for 120.000 og ikke 600.000:
1) Elektriker må skjøte på innvendig hovedledning (en enkel jobb).
2) Det er en utetthet i et vindu som har ført til vanninntrenging ved sofa. Vi har satt inn avfukter for å fjerne fukt, men vi har ikke utbedret skaden og overlater det til kjøper.
Enheten er svært godt isolert med vakuumisolasjon og 50mm glava i et sjikt med stålstendere for kabeltrekking på innsiden av vakuumpanelene. Det er ingen organiske materialer i veggen annet enn innvendig platekledning/møbler i mdf.
Enheten er delvis rigget for standard VA med sommervanntilkobling og 50mm avløp for gråvann. Tørrtoalett med pose.
NB, vindmølle/solceller inngår ikke. Høydejusterbare føtter medfølger, så den kan vatres opp på ujevnt underlag.
Kun seriøse henvendelser. Selges som den er. Kjøper må hente med lastebil med kran, vekt ca 5,5 tonn.
Se www.ecocube.no for mer informasjon.
Mikrohus, minihus, tiny house, tinyhouse mikrobolig, mobil hytte
Brukerprofil
Du må være logget inn for å se brukerprofiler og sende meldinger.
Logg innAnnonsens metadata
Sist endret: 5.8.2025 kl. 18:16 ・ FINN-kode: 73672012










