
Bildegalleri
Mannskapsbrakke 6 mann med bod/toalett – Scanvogn 420 – til leie
Til salgs
3 500 kr
Beskrivelse av varen
Tilstand: Pent brukt - I god stand
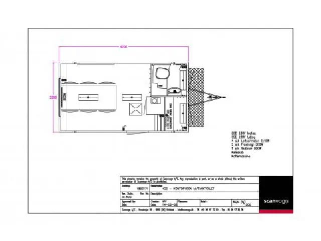
Mannskapsbrakke til leie – plass til 6 personer + bod/toalett med tank
Praktisk og funksjonell mannskapsbrakke for 6 personer, med separat bod for lagring av verktøy og utstyr. Passer godt til byggeplass, anlegg, rehabilitering eller midlertidige prosjekter.
Innhold:
Sitteplasser for 6 mann
Bord og benker
kjøleskap
Oppvarming
God ventilasjon
Egen bod for lagring
Brakken er godt egnet som pauserom/spiserom og gir en ryddig og komfortabel løsning på arbeidsplassen.
Fakta:
Type: Mannskapsbrakke
Kapasitet: 6 personer
Bod inkludert
toalett med tank
Klar til bruk
Leie:
utleie periode kan avtales 3500kr pr måned.
📍 Leveres / hentes etter avtale
📞 Rask respons på FINN
Brukerprofil
Du må være logget inn for å se brukerprofiler og sende meldinger.
Logg innAnnonsens metadata
Sist endret: 21.2.2026 kl. 18:49 ・ FINN-kode: 452110429

