Bildegalleri
Pent brukt og godt vedlikeholdt benkeplate i Silestone
(1/4)
Silestone kjøkkenbenk i svart med hvite årringer og integrert vask
Til salgs
5 000 kr
Be om at selgeren sender med Fiks ferdig! Det er trygt, raskt, og du får varen levert til adressen din. Les mer
Beskrivelse av varen
Tilstand: Pent brukt - I god stand
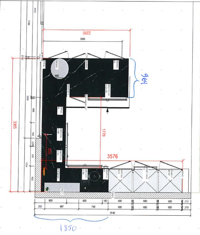
Silestone Eternal Marquina kjøkkenbenk med sort overflate og hvite årringer. Benken har integrert vask og er utformet i L-form og har en kjøkkenøy på 2,20 x 1 m med endeplate. Passer til kjøkken med moderne design og gir funksjonell arbeidsplass. Silestone er en kvartsplate laget av over 90 % naturlig kvarts som tåler høye temperaturer.
Nøyaktige mål følger av vedlagte måltegning.
Platen skal demonteres første uka i februar og må hentes til avtalt tidspunkt, mest sannsynlig blir dette tirsdag 3. februar.
NB: Knappen for å vise hele beskrivelsen har kun en visuell effekt.
Brukerprofil
Du må være logget inn for å se brukerprofiler og sende meldinger.
Logg innAnnonsens metadata
Sist endret: 30.1.2026 kl. 13:49 ・ FINN-kode: 447191294