Bildegalleri
🏗️ 130 fabrikkproduserte boligmoduler – ubrukt og klar for levering
Til salgs
1 kr
Beskrivelse av varen
Tilstand: Helt ny - Uåpnet/med lapp
🏗️ 130 fabrikkproduserte boligmoduler – ubrukt og klar for levering
Perfekt for utbyggere, kommuner og investorer som ønsker rask realisering av nye boliger
🔹 Kort beskrivelse
Vi har fått tilgang til 130 ferdige boligmoduler, produsert i 2022 og aldri tatt i bruk.
Dette er et meget godt kjøp, ettersom modulene kommer fra to fallerte prosjekter i Sverige – og selges nå til en brøkdel av nyproduksjonskost (ca. 1/3 kontra verdien).
Modulene passer perfekt for utvikling av leilighetsbygg, personalboliger, studentboliger eller komplette boligfelt, og kan leveres umiddelbart.
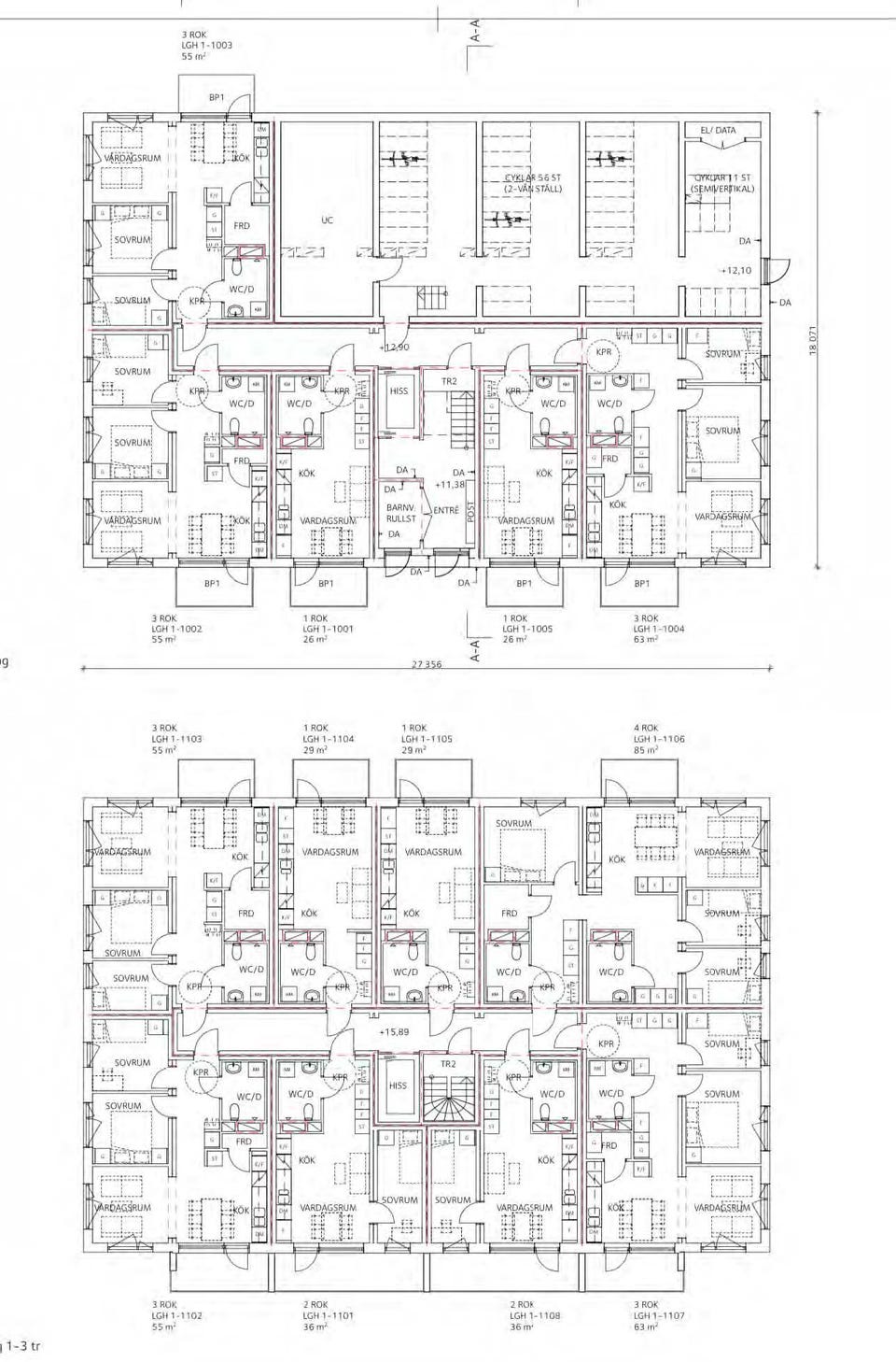
Alt er fabrikkprodusert, ferdig klargjort for montering og leveres med full dokumentasjon, DWG-tegninger og plantegninger.
🏢 Objekt 1 – Dobbeltbygg
* Antall: 59 moduler
* Utførelse: Leilighetsmoduler med høy standard
* Antall leiligheter: ca. 45 stk
* Byggeår: 2022
🏙️ Objekt 2 – Høyhus (enkel stamme)
* Antall: 71 moduler
* Antall leiligheter: ca. 50 stk
* Byggeår: 2022
📦 Total oversikt
* Totalt antall moduler: 130 stk
* Totalt antall leiligheter: ca. 95 stk
Leveringstid: Umiddelbart – ingen produksjonsventetid
⚙️ Innhold og leveranse
Leveres som byggklare moduler med:
✅ Rominndeling og bærende vegger
✅ Vinduer og dører montert fra fabrikk
✅ Grunninstallasjoner for elektro og rør
✅ Full dokumentasjon og plantegninger
Følgende inngår ikke i leveransen:
* Balkonger
* Trapper
* Heis
* Hvitevarer
* FTX-ventilasjonssystem
* Ytrefasade/panel
* Takstoler og yttertak
💡 Hvorfor dette er en god investering
Å produsere tilsvarende moduler i dag ville innebære:
* Betydelig høyere materialkostnader
* Lange leveringstider
* Begrenset produksjonskapasitet
Her får du et komplett modulkonsept tilgjengelig nå, uten risiko eller ventetid – ideelt for prosjekter med behov for rask realisering og forutsigbare kostnader.
🧾 Dokumentasjon
* Komplette DWG-tegninger etter signering av NDA
* Plantegninger for alle leiligheter
* Byggteknisk dokumentasjon
🚛 Logistikk
* Transport kan organiseres
* Lasting håndteres av selger
* Levering i hele Norden
* Lossing håndteres av kjøper
💰 Pris
Pris på forespørsel – ta kontakt for komplett spesifikasjon.
🏡 Oppsummert
✔️ 130 nyproduserte boligmoduler fra 2022
✔️ Ideelt for utvikling av boligprosjekter og utleie
✔️ Klart for montering – uten produksjonsventetid
✔️ Full dokumentasjon og tegninger
✔️ Meget gunstig prisnivå
🔍 Søkeord
boligmoduler, ferdighus, modulbygg, leilighetsbygg, personalbolig, boligprosjekt, utleieboliger, entreprenør, eiendomsutvikling, modulhus, ferdigbygg, nøkkelferdig, utviklingstomt, investeringsprosjekt, boligfelt, kommunal bolig, byggesett, boligcontainer, studentboliger, modulsystem, prosjektbolig, fleksibelt bygg, rask levering, ferdig modul
Brukerprofil
Du må være logget inn for å se brukerprofiler og sende meldinger.
Logg innAnnonsens metadata
Sist endret: 9.11.2025 kl. 10:18 ・ FINN-kode: 435876988



