Bildegalleri
(1/5)
KVIK PRATO GREY
Til salgs
85 200 kr
Be om at selgeren sender med Fiks ferdig! Det er trygt, raskt, og du får varen levert til adressen din. Les mer
Beskrivelse av varen
Tilstand: Som ny - Ikke synlig brukt
Kvik Prato utstillingskjøkken
Til salgs
Beskrivelse
utstillingskjøkken i modellen Prato Grey
Kjøkkenet selges inkl. en flott benkeplate i kompaktlaminat med en underlimt krommet kjøkkenvask.
Avfallssystem under vask
Kjempefint grått kjøkken, med sorte detaljer. Frontene er med integrert grep. På utsiden av kjøkkenøya er det Prato x-modul, med skuffer i mørk eik.
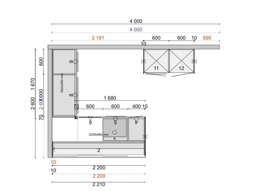
Se plantegning og benkeplatetegning for spesifiserte mål.
Medfølger ikke hvitevarer.
Ny pris 141200
NB: Knappen for å vise hele beskrivelsen har kun en visuell effekt.
Brukerprofil
Du må være logget inn for å se brukerprofiler og sende meldinger.
Logg innAnnonsens metadata
Sist endret: 16.11.2025 kl. 13:55 ・ FINN-kode: 427457481





