Bildegalleri
(1/17)
Nesten nytt kjøkken fra HTH/ med kjøkkenøy! NB Må hentes før 10. september!!!
Solgt
Til salgs
60 000 kr
Beskrivelse av varen
Tilstand: Pent brukt - I god stand
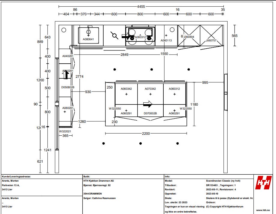
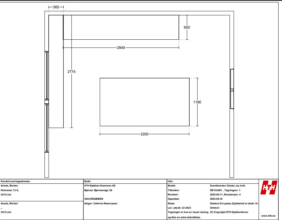
Selger et nesten nytt kjøkken. Vi har ikke så mange bilder tilgengelig da kjøkkenet er demontert. Derfor har jeg lagt ved tekniske tegninger med mål og innhold.
Kjøkkenet fremstår som nytt har kun vært i bruk i noen få mnd. Hvite fronter i klassisk stil. Godt med plass. Benkeplaten i kompositt er inkludert i prisen. Stor øy med sitteplass til 6, og masse lagring i øya.
Blandebatteri, stikk i benkeplate og vannstopper følger med.
Inkluderer:
Hvitevarer fra Miele og virte fra Røros.
Kan hentes omgående. Jeg besvarer kun seriøse henvendelser!
NB: Knappen for å vise hele beskrivelsen har kun en visuell effekt.
Brukerprofil
Du må være logget inn for å se brukerprofiler og sende meldinger.
Logg innAnnonsens metadata
Sist endret: 6.4.2026 kl. 13:09 ・ FINN-kode: 423088487
Utforsk våre nye sider for klær og mote
Ta en titt
