Bildegalleri
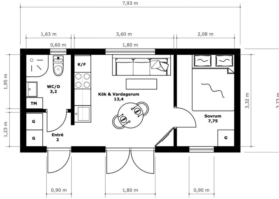
Mikrohus / Attefallshus 30kvm
Til salgs
640 000 kr
Beskrivelse av varen
Tilstand: Helt ny - Uåpnet/med lapp
Nybyggt attefallhus i mycket hög standard med mycket tillval, bland annat golvvärme i badrum, FTX-ventilation och Svenska SP-treglas fönster.
195mm bjälklag
Klick-Fallsplåt på taket (råspont och papp under)
Led-Spotlights (smart dimmer, telefonstyrd från plejd).
Svenska SP-fönster, 3-glas.
Ytterväggarna består av ytterpanel, läkt, vindduk, 95mm stomme (rockwool stenull), ångspärr, korslagd 45mm (rockwool stenull) 9mm plywood och slutligen en 15mm träpanel.
Normcentral med automatsäkringar jordfelsbrytare. ansluts nu med 3-fas handske.
Förberedd för enkel anslutning till VA-anläggning.
FTX ventilation (värmeåtervinning för god energieffektivitet och bästa möjliga inomhus klimat, systemet tar varm luft från badrummet, blåser ut den genom en värmeväxlare, som sen tar in frisk luft, värme upp den och blåser ut den i sovrum och allrum). Huset är även förberett för element i sovrum och allrum, vid behov i kallare klimat,
Badrummet är helt komplett med bland annat en IFÖ spira toalett, varmvattenberedare, Dusch och kommod/spegelskåp. Digitalt styrd golvvärme. Förberett för toppmatad tvättmaskin.
Stort Marbodal kök med inbyggd kyl och frys, kolfilterfläkt, induktionshäll och ugn med airfryer funktion.
Sovrum med plats för dubbelsäng och garderober.
Dubbel altandörr där båda dörrbladen är öppningsbara för att skapa ett öppet rum mot en eventuell framtida altan?
Huset väger ca 8 -ton och fraktas enkelt med kranbil, jag kan förmedla kontakt till en bra firma.
Det finns flera olika alternativ till grund, plintar, albabalkar, eller så gjuter man en sula och murar upp några varv med Leca sten. Det kanske enklaste alternativet är skruvade plintar, i närområdet kostar det 18000kr, kontakt kan förmedlas.
Välkommen till Sverige och Sunne, ett par mil från Norska gränsen! Jag kan visa upp det på dagar, kvällar och helger, ring gärna för mer info!
Önskas annan modell eller planlösning så hittar vi en lösning för det!
Pris, 640 000kr sek ink moms. 512 000kr sek ex moms.
Mvh Emil +46 72 238 05 22
Brukerprofil
Du må være logget inn for å se brukerprofiler og sende meldinger.
Logg innAnnonsens metadata
Sist endret: 15.12.2025 kl. 10:52 ・ FINN-kode: 416112458





