Bildegalleri
Enebolig
(1/8)
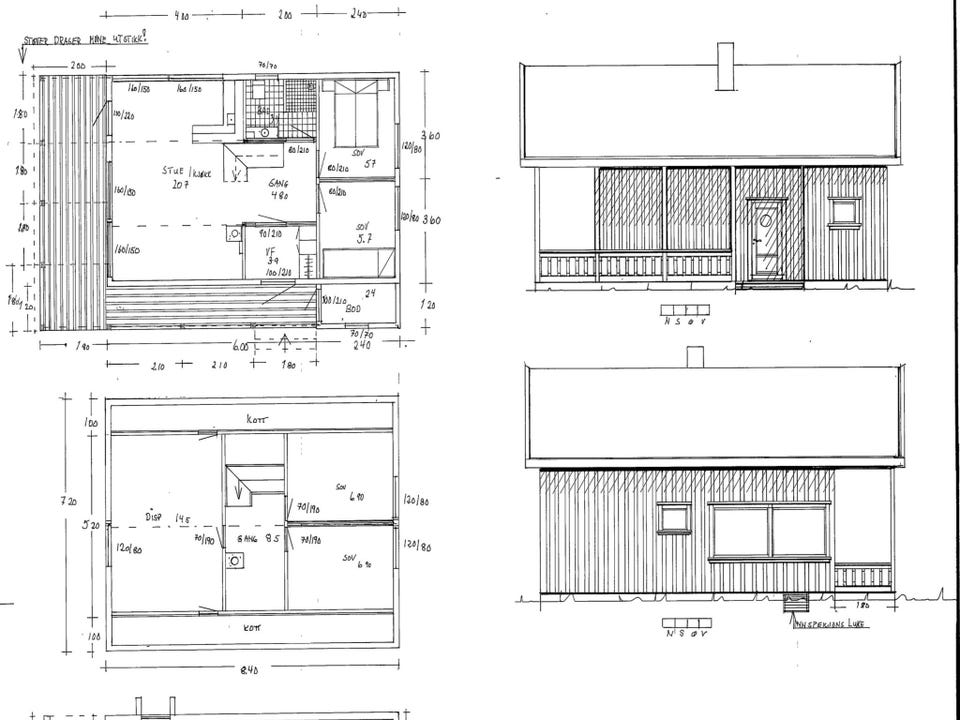
Pensjonert byggmester / arkitekt tegner det meste, Hele landet via Mail.
Til salgs
1 000 kr
Be om at selgeren sender med Fiks ferdig! Det er trygt, raskt, og du får varen levert til adressen din. Les mer
Beskrivelse av varen
Tilstand: Helt ny - Uåpnet/med lapp
Alt tegnes i 1:50 klar for søknad.
NB: Knappen for å vise hele beskrivelsen har kun en visuell effekt.
Brukerprofil
Du må være logget inn for å se brukerprofiler og sende meldinger.
Logg innAnnonsens metadata
Sist endret: 31.10.2025 kl. 18:46 ・ FINN-kode: 415393504