Bildegalleri
Pumpestarsjon
Til salgs
+ frakt og Trygg betaling
Trygg handel med Fiks ferdig
Varen sendes til deg, og du har 24 timer til å inspisere den før pengene overføres til selgeren.
Beskrivelse av varen
Tilstand: Pent brukt - I god stand
Den er bruk i 4 uker er som ny 1 fas
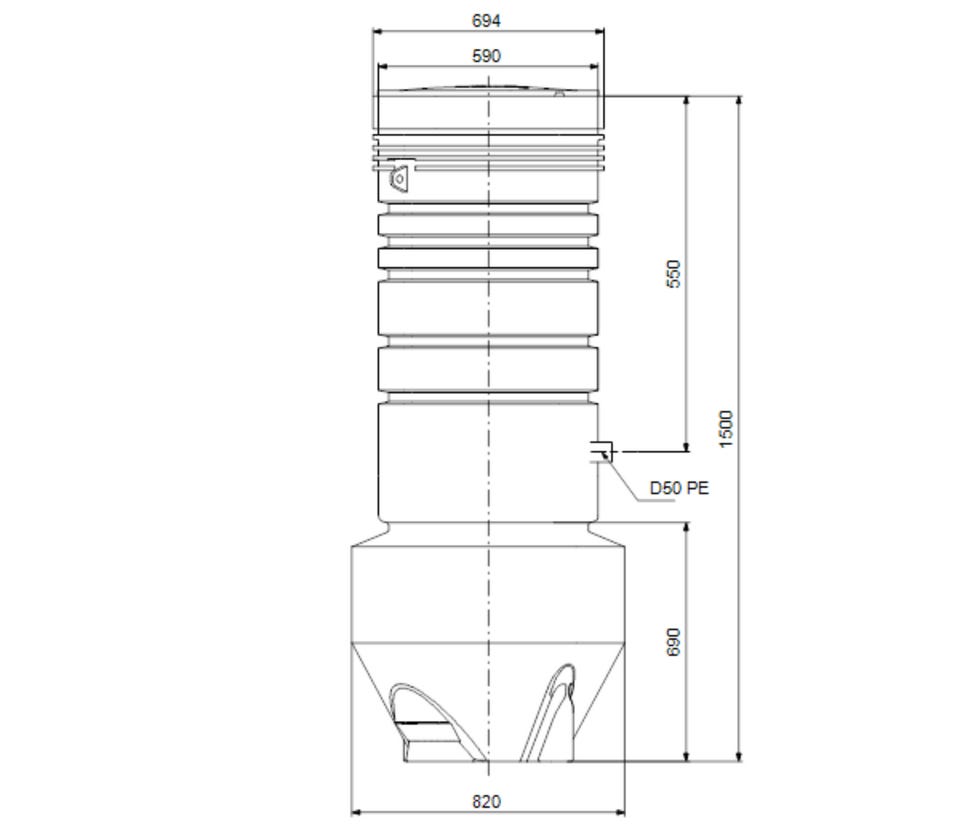
PS: bilde fraviker, Høyde er 1,5 meter
Røropplegg materiale AISI 304,
Materiale kjetting Rustfritt stål, Sumpvolum 0.28 m³, Kumdiameter 800/600 mm, Grundfos pumpestasjon for oppsamling og overføring av avløpsvann, overflatevann og avløp.
Enkel installasjon på utilgjengelige steder.
Prefabrikkerte med rør, ventiler og koplingstyper for Grundfos-pumper og nivåsensorer.
Innløp, kabelinnføring og ventilasjon kan monteres etter behov under installasjonen.
Enkel tilgang til ventiler.
Låsbart polyetylendeksel.
Brukerprofil
Du må være logget inn for å se brukerprofiler og sende meldinger.
Logg innAnnonsens metadata
Sist endret: 26.4.2025 kl. 10:35 ・ FINN-kode: 394274901



