Bildegalleri
Benkeplater til kjøkken inkl. vask – quartz og laminat (kan brukes separat)
Til salgs
17 000 kr
Beskrivelse av varen
Tilstand: Pent brukt - I god stand
I forbindelse med ombygging av kjøkken ble benkeplaten for stor og er derfor byttet ut. Benkeplatene er pent brukt og selges videre.
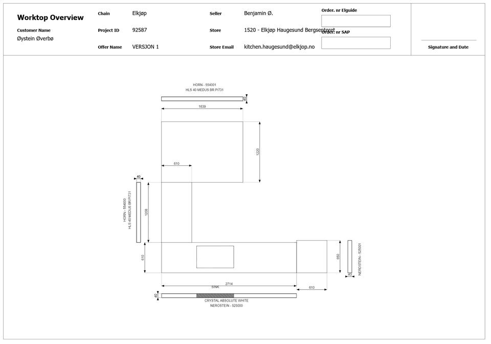
🔹 Quartz benkeplate (2-delt)
Leveres i to deler, slik vist i plantegningen
Underlimt vask
Blandebatteri med uttrekk
Hel og pen, uten kjente skader
🔹 Laminat benkeplate (2-delt)
Består av én ren arbeidsstasjon og én del til kjøkkenøy
Utskjæring for platetopp
Noen normale bruksmerker på øydelen
Benkeplatene i laminat og quartz kan brukes uavhengig av hverandre, men selges fortrinnsvis samlet.
Nypris (2020): 38 500 kr
Ta kontakt ved spørsmål eller for mer informasjon - fortrinnsvis på Finn.no
Brukerprofil
Du må være logget inn for å se brukerprofiler og sende meldinger.
Logg innAnnonsens metadata
Sist endret: 29.3.2026 kl. 14:10 ・ FINN-kode: 391234741
Utforsk våre nye sider for klær og mote
Ta en titt
